Five double bedrooms with huge garden and development potential, close to Frimley station..
Five double bedrooms and separate en suite to principal bedroom
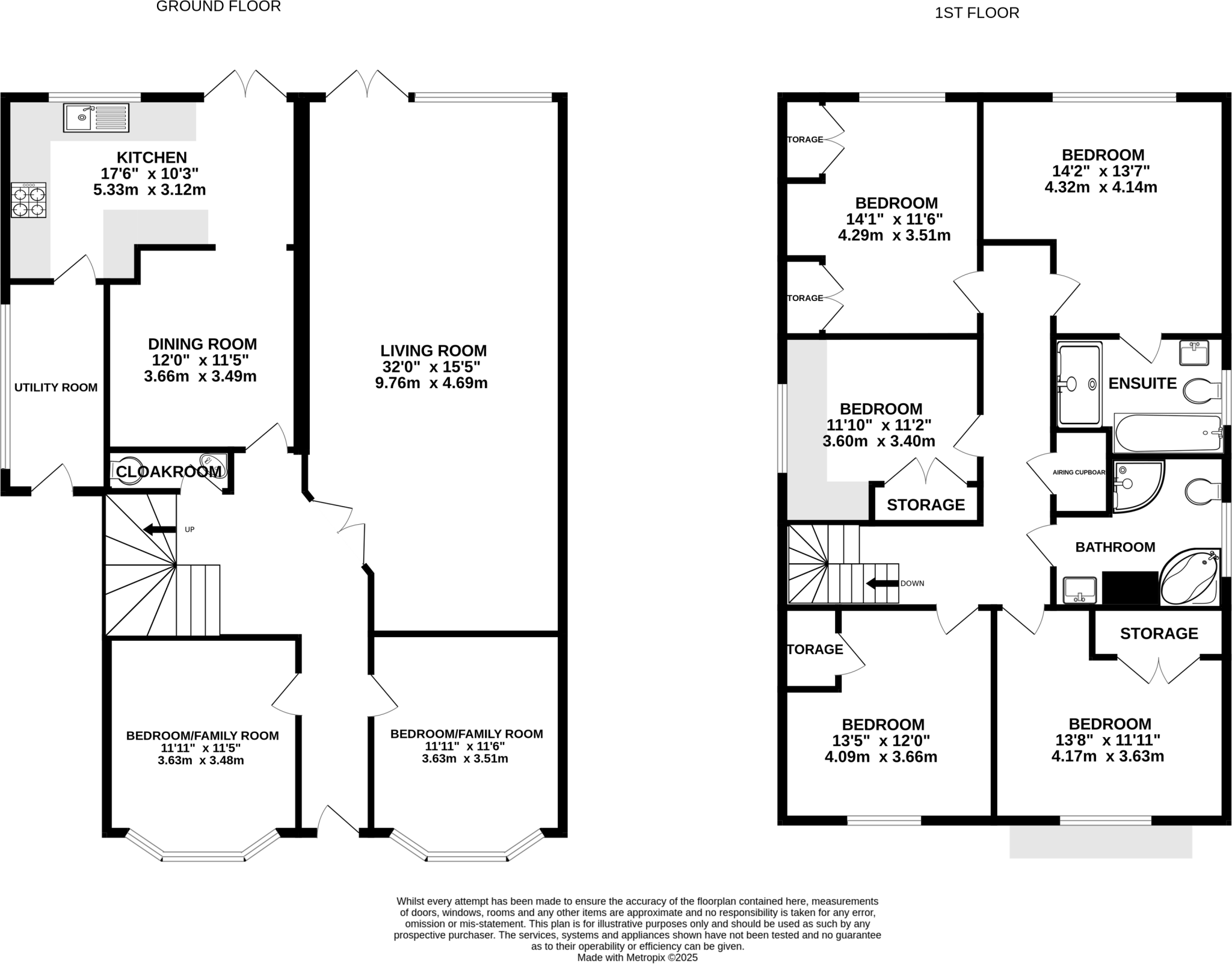
Four reception rooms offering flexible family or multi-let layout
Largest plot on the road with potential to extend (STPP)
Walking distance to Frimley train station and local amenities
Off-street parking; rear lawn and substantial patio area
EPC E (52) — energy upgrades likely needed
Owners splitting title; part of the plot/garage to be retained
Council Tax Band F and local crime above average
This substantial five-double-bedroom detached house sits on the largest plot in the road, offering flexible family living and clear scope for further development (subject to planning). Ground floor accommodation includes four reception rooms, a kitchen/breakfast room, utility and cloakroom; two front reception rooms could serve as additional bedrooms or rental rooms. The rear garden is generous with a large patio, and off-street parking is provided to the front.
The property will suit a growing family who need space and versatility or an investor looking at HMO conversion or extension potential (STPP). The first floor has five double bedrooms, a family bathroom and an en suite to the principal bedroom, plus a fully boarded loft. Walking distance to Frimley train station and local amenities adds practical commuter appeal.
Buyers should note material considerations: the EPC is E (52), suggesting energy-efficiency improvements are likely required; the house dates from the 1930s–40s and may benefit from insulation and modernisation. Council Tax is Band F and local crime is above average, which may influence running costs and security decisions. The current owners are in the process of splitting the title and intend to retain part of the land and the garage — purchasers must obtain solicitor confirmation of the title split and exact plot boundaries before exchange.
Overall this is a roomy, versatile property with significant upside from refurbishment or redevelopment, but it requires informed due diligence on title boundaries, energy upgrades and local safety considerations before purchase.
5 bedroom detached house for sale in Mulgrave Road, Frimley, GU16 — £625,000 • 5 bed • 3 bath • 1878 ft²
6 bedroom detached house for sale in Bramble Bank, Frimley Green, Surrey, GU16 — £750,000 • 6 bed • 3 bath • 2300 ft²
6 bedroom detached house for sale in Maybury Close, Frimley, Surrey, GU16 — £675,000 • 6 bed • 3 bath • 2028 ft²
4 bedroom semi-detached house for sale in Bailey Close, Frimley, Camberley, Surrey, GU16 — £500,000 • 4 bed • 2 bath • 1112 ft²
3 bedroom semi-detached house for sale in Middlemoor Road, Frimley, Camberley, Surrey, GU16 — £425,000 • 3 bed • 2 bath • 967 ft²
5 bedroom detached house for sale in Frimley Green Road, Frimley, GU16 — £999,950 • 5 bed • 4 bath • 2500 ft²










































































