Spacious garden, strong school links and clear extension potential for families.
Detached four-bedroom family home with garage and driveway parking
Generous east-facing rear garden, good for kids and landscaping
Chain free sale with sellers' illustrative extension plans (STPP)
EPC rating E (48) — likely needs insulation/heating improvements
Single family bathroom; potential to add/upgrade facilities
Total internal area about 911 sq ft — compact for four bedrooms
Within catchment for several highly rated schools including Tomlinscote
Council Tax Band F — higher running costs to budget for
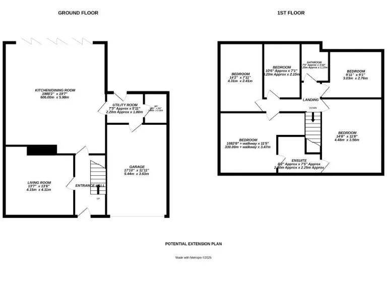
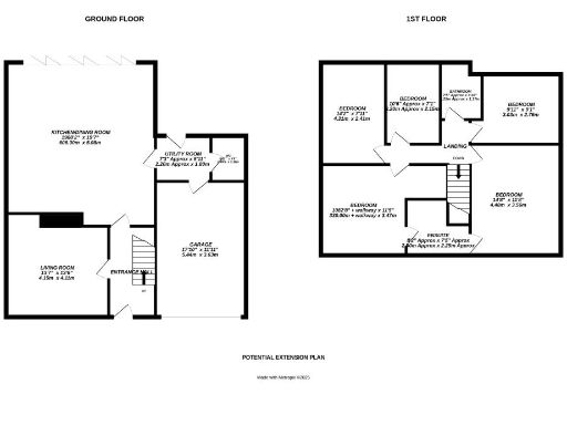
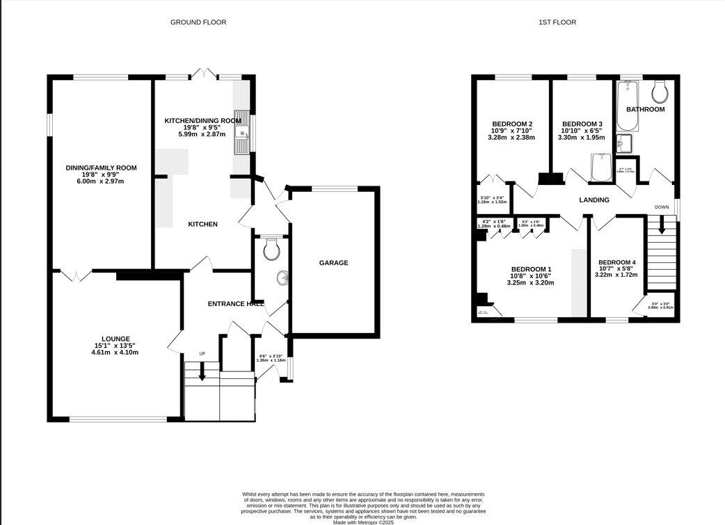
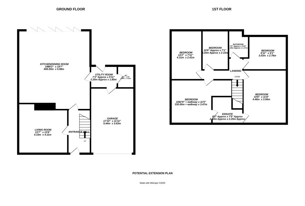
Set on a quiet cul-de-sac in Frimley, this detached four-bedroom house suits growing families seeking space to adapt. Ground-floor living includes a living room, separate dining/family room and kitchen/breakfast area opening onto a generous east-facing garden that catches morning sun and offers scope for play and landscaping.
The property is offered chain free and includes a garage plus driveway parking. Sellers have provided illustrative plans showing realistic extension potential (subject to planning), so there’s clear scope to increase living space or reconfigure the layout to suit modern family life.
Buyers should note the home has an EPC rating of E (48) and a single family bathroom; some updating to heating, insulation and finishes is likely. Council Tax is Band F. For buyers willing to invest, the combination of good local schools, fast broadband and low local crime make this a practical family purchase with future value uplift potential.
4 bedroom detached house for sale in Buckingham Way, Frimley, Camberley, Surrey, GU16 — £600,000 • 4 bed • 3 bath • 1089 ft²
5 bedroom detached house for sale in Westerdale Drive, Frimley, Camberley, Surrey, GU16 — £735,000 • 5 bed • 2 bath • 1476 ft²
4 bedroom detached house for sale in Rideway Close, Camberley, Surrey, GU15 — £525,000 • 4 bed • 1 bath • 846 ft²
4 bedroom detached house for sale in Merrywood Park, Camberley, Surrey, GU15 — £775,000 • 4 bed • 2 bath • 1631 ft²
4 bedroom detached house for sale in Cumberland Road, Camberley, Surrey, GU15 — £650,000 • 4 bed • 1 bath • 1381 ft²
4 bedroom semi-detached house for sale in Mulgrave Road, Frimley, Surrey, GU16 — £675,000 • 4 bed • 2 bath • 944 ft²






































































































