Deliver four modern flats above a busy High Road location for commuter demand.
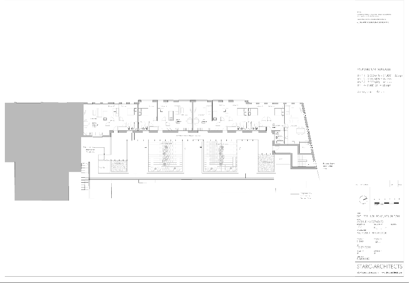
Consent granted for 4 x 2-bed apartments (planning ref EPF/3294/21)
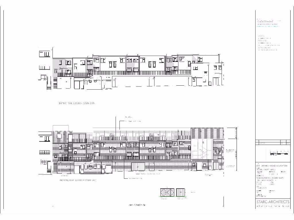
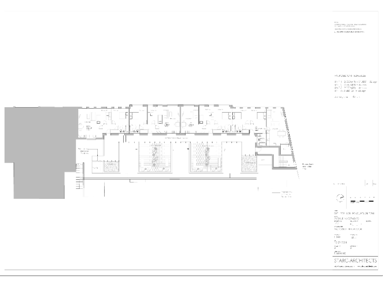
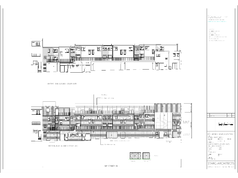
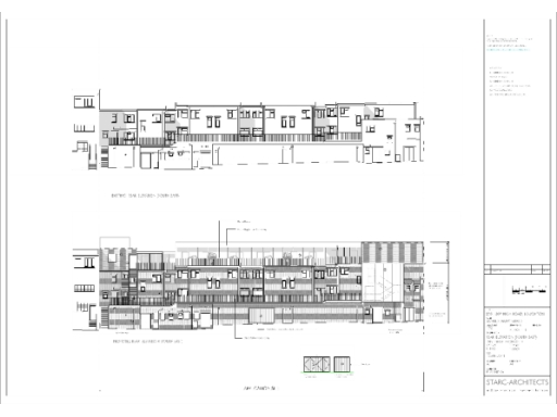
An uncommon airspace opportunity in central Loughton with consent for four two-bedroom apartments across 3,002 sq ft. Permission (EPF/3294/21) for a roof extension, new stair cores and amenity space has been granted, so the site is ready for delivery subject to building works and discharge of any conditions.
The location is a key selling point: about 0.5 miles from Loughton Central Line station and close to the M25/M11, placing completed flats firmly in commuter demand. The High Road setting provides immediate retail amenity and footfall, useful for apartment marketing and long-term rental appeal. Broadband speeds and mobile signal are strong; the local area is affluent with highly qualified professionals.
This is a development-for-construction sale rather than a completed investment — purchasers should allow budget for construction, internal fit-out, and S106 liability (£8,736). There is medium flood risk and crime levels are above average for the area; both factors should be considered for insurance, design mitigation and pricing. Offers are invited in excess of £400,000, subject to contract.
2 bedroom flat for sale in High Road, Loughton, IG10 — £375,000 • 2 bed • 1 bath • 653 ft²
Land for sale in Essex Road South, London, E11 — £500,000 • 1 bed • 1 bath • 3701 ft²
Plot for sale in Plot 2, 52 Traps Hill, Loughton, IG10 — £1,000,000 • 3 bed • 3 bath • 1582 ft²
Plot for sale in Hedgemoor Court, 24 Castle Avenue, London, E4 — £600,000 • 1 bed • 1 bath
2 bedroom apartment for sale in Lower Park Road, Loughton, IG10 — £500,000 • 2 bed • 2 bath • 862 ft²
2 bedroom apartment for sale in Academy Way, Loughton, IG10 — £425,000 • 2 bed • 2 bath • 764 ft²


























