Contemporary second-floor flat with balcony, parking and excellent commute links.
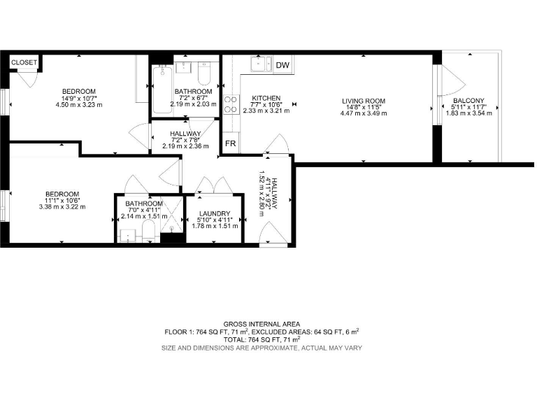
Second-floor two-bed apartment with en-suite principal bedroom
Open-plan kitchen/living room leading to private balcony with views
Allocated gated parking space included
Built in 2023 — modern finishes throughout, minimal immediate works
Long lease: 995 years remaining (LEASEHOLD)
Total size 764 sq ft — average-sized apartment
Council tax band above average — higher annual running costs
Wider local area classified as deprived — affects local comparables
This modern two-bedroom apartment on Academy Way offers bright, practical living for first-time buyers or commuting professionals. Built in 2023, the second-floor flat features an open-plan kitchen/living area that leads onto a private balcony with notable views and an en-suite to the principal bedroom.
Practical benefits include an allocated gated parking space, access to communal gardens, and a very long lease (995 years). The property’s 764 sq ft layout includes two bathrooms and contemporary finishes throughout, making it ready to occupy with minimal immediate work.
Be aware of a few material points: the property is leasehold, council tax is above average for the area, and the wider local area is classified as deprived. These factors will affect running costs and local comparisons when valuing the home.
Overall this is a low-maintenance, recently built apartment well suited to buyers prioritising a short commute to the Central Line, modern living space, and secure parking, while accepting higher local tax levels and leasehold status.
2 bedroom apartment for sale in Academy Way, Loughton, IG10 — £445,000 • 2 bed • 1 bath • 786 ft²
1 bedroom apartment for sale in Kingsley Road, Loughton, IG10 — £275,000 • 1 bed • 1 bath • 526 ft²
1 bedroom flat for sale in Luctons Close, Loughton, IG10 — £300,000 • 1 bed • 1 bath • 436 ft²
2 bedroom apartment for sale in Lower Park Road, Loughton, IG10 — £500,000 • 2 bed • 2 bath • 862 ft²
2 bedroom flat for sale in The Broadway, LOUGHTON, Essex, IG10 — £375,000 • 2 bed • 1 bath • 805 ft²
2 bedroom flat for sale in High Road, Loughton, IG10 — £375,000 • 2 bed • 1 bath • 653 ft²


















































