Rare private south-facing garden and versatile living close to Turnpike Lane.
Private south-facing garden with direct access
Flexible 1–2 bedroom Victorian layout, high ceilings
Generous kitchen-diner-reception — versatile living space
Modern bathroom; well maintained throughout
Long lease: over 150 years remaining
Solid brick walls likely uninsulated — retrofit may be needed
Turnpike Lane Tube ~0.4 miles; good transport links
Area has above-average crime and signs of local deprivation
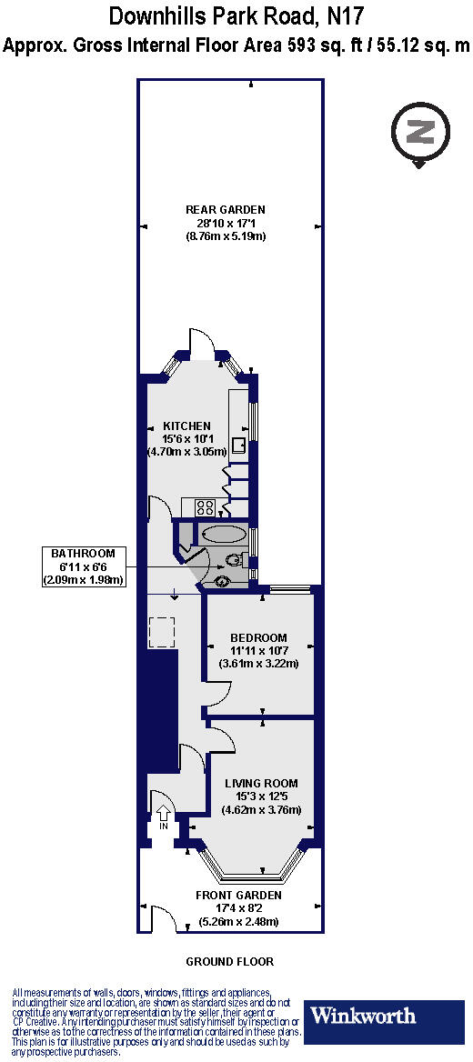
This bright Victorian garden flat combines period proportions with a versatile one-to-two bedroom layout, making it an appealing option for first-time buyers or buy-to-let investors. High ceilings and large windows create a sense of space, and the generous kitchen-diner-reception opens directly onto a rare private south-facing garden — a standout feature in this part of London.
The interior is well maintained with a modern bathroom and wooden flooring to the rear reception. At the front, the large reception could serve as a formal living room or be used as a principal bedroom, giving genuine flexibility to suit changing needs. A long lease of over 150 years removes immediate lease concerns and supports mortgageability and resale.
Location is a strong selling point: Turnpike Lane Tube (Piccadilly Line) is about 0.4 miles away, Seven Sisters (Victoria Line) and Hornsey rail links are easily reached, and local independent cafés, pubs and parks add everyday convenience. Fast broadband and excellent mobile signal support home working and connectivity.
Buyers should note material considerations: the building’s solid brick walls are presumed uninsulated, so adding insulation or other energy-efficiency work may be advisable. The property sits in an area with above-average crime and some local deprivation, which may affect buyer priorities or rental appeal. Council tax band information is not provided. Overall, this is a well-presented, adaptable flat with rare outdoor space and strong transport links, best suited to buyers who value a garden and Victorian character but are mindful of local area issues and potential retrofit work.
2 bedroom flat for sale in Cobham Road, Wood Green, London, N22 — £475,000 • 2 bed • 1 bath • 550 ft²
1 bedroom apartment for sale in Woodlands Park Road, London, N15 — £395,000 • 1 bed • 1 bath • 510 ft²
2 bedroom apartment for sale in Willingdon Road, London, N22 — £565,000 • 2 bed • 1 bath • 712 ft²
2 bedroom apartment for sale in Belmont Avenue, London, N17 — £450,000 • 2 bed • 1 bath • 558 ft²
2 bedroom ground floor flat for sale in Hampden Road, London, N8 — £570,000 • 2 bed • 1 bath • 591 ft²
1 bedroom apartment for sale in Vale Road, London, N4 — £475,000 • 1 bed • 1 bath • 560 ft²






















































































