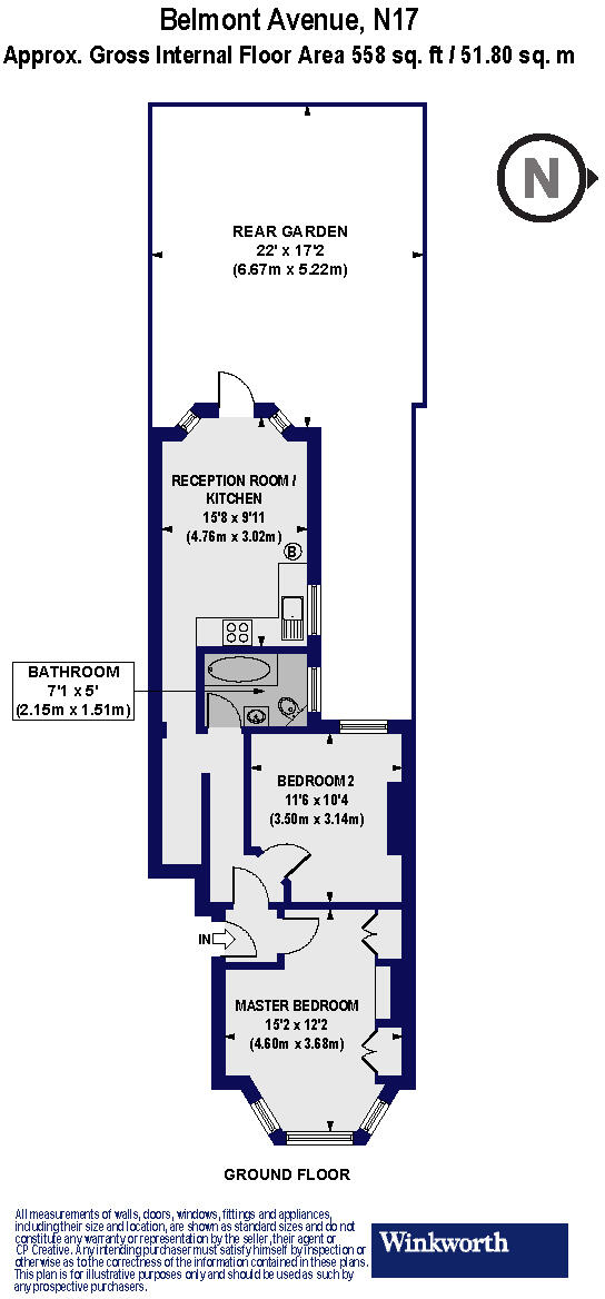
**Standout Features:**
- Two spacious double bedrooms with original wooden floors
- Open-plan reception area, ideal for entertaining
- Modern kitchen with ample worktop space
- Private, enclosed garden with mature shrubs and flowering borders
- Strong transport links to Crouch End, Alexandra Palace, and Green Lanes
- Share of Freehold, offering value and flexibility for future renovations
**Overview:**
Discover this charming two-bedroom ground floor flat, nestled in a vibrant area conducive to young families and professionals, just moments from Downhills Park Road. This property features an inviting open-plan kitchen, living, and dining area, perfect for hosting or enjoying cozy nights in. The principal bedroom boasts a large bay window and built-in wardrobes, while the second bedroom offers a serene garden view.
Step outside to your low-maintenance private garden—an ideal space for summer gatherings or personal relaxation. The flat, with its creative potential for expansion, is a sound investment for first-time buyers or investors. Although located in a neighborhood with above-average crime and fewer amenities, the charm of surrounding green spaces, coupled with excellent schools and favorable transport links, makes it a hidden gem worth exploring. Positioned at an attractive price of £450,000, this property won’t last long. Embrace the opportunity to call this lovely flat home and enjoy the best of inner-city living!
2 bedroom apartment for sale in Belmont Road, London, N17 — £535,000 • 2 bed • 1 bath • 605 ft²
1 bedroom apartment for sale in Downhills Park Road, London, N17 — £445,000 • 1 bed • 1 bath • 593 ft²
2 bedroom apartment for sale in Willingdon Road, London, N22 — £565,000 • 2 bed • 1 bath • 712 ft²
2 bedroom flat for sale in St John's Road, South Tottenham, London, N15 — £500,000 • 2 bed • 1 bath • 694 ft²
2 bedroom ground floor flat for sale in Drayton Road, London, N17 — £450,000 • 2 bed • 1 bath • 603 ft²
2 bedroom flat for sale in Imperial Road, Alexandra Park, N22 — £495,000 • 2 bed • 1 bath • 689 ft²














































































