Rare central location offering substantial internal space and three private car parking spaces.
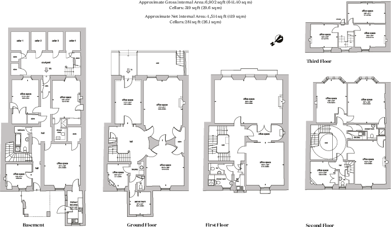
• Freehold Victorian townhouse, approximately 4,514 sq ft
• Three private off‑street car parking spaces
• High ceilings, period features and large room proportions
• Male and female WCs and tea prep areas on every level
• Currently configured as offices; conversion will require consents
• Area classed as very deprived; careful lettability due diligence needed
• Broadband speeds average; mobile signal excellent
• Offers invited in excess of £1,750,000 for heritable interest
This substantial freehold Victorian townhouse in Edinburgh’s West End presents a rare acquisition for investors and developers. Arranged across multiple levels with generous room proportions and high ceilings, the building totals approximately 4,514 sq ft and includes three private off‑street car parking spaces, full central heating, and male and female WCs plus tea prep areas on every floor.
The property is currently configured as a self-contained office with proven scope for conversion into luxury residences, boutique apartments, or hospitality use, subject to obtaining the necessary planning and listed‑building consents. Its classical facade, tall sash windows and period detailing provide strong character that can add premium value when sensitively redeveloped.
Practical attributes include excellent mobile signal and a central West End location close to shops, cafés and transport links. Important considerations: the building sits in an area classed as very deprived, broadband speeds are average, and any change of use or subdivision will require consent and investment for reconfiguration and fit‑out. Offers are invited in excess of £1,750,000 for the heritable interest.
Town house for sale in Coates Crescent, Edinburgh, EH3 — £1,750,000 • 1 bed • 1 bath • 6902 ft²
Office for sale in 6 Coates Crescent, Edinburgh , EH3 — £2,150,000 • 1 bed • 1 bath • 4628 ft²
Office for sale in 9-12 Drumsheugh Gardens, West End, Edinburgh, EH3 7QJ, EH3 — £7,000,000 • 1 bed • 1 bath
Residential development for sale in 9-12 Drumsheugh Gardens, West End, Edinburgh, EH3 7QJ, EH3 — £7,000,000 • 1 bed • 1 bath
Hotel for sale in 9-12 Drumsheugh Gardens, West End, Edinburgh, EH3 7QJ, EH3 — £7,000,000 • 1 bed • 1 bath
2 bedroom flat for sale in Grosvenor Crescent, Edinburgh, EH12 — £565,000 • 2 bed • 1 bath • 1313 ft²






































































































































































