EH3 7AF - Town house for sale in Coates Crescent, Edinburgh, EH3

View on Property Piper

Town house for sale in Coates Crescent, Edinburgh, EH3

Summary - 13-14, COATES CRESCENT EH3 7AF

1 bed 1 bath Town House

**Standout Features:**
- Impressive Georgian townhouse with substantial character
- Prime West End location in Edinburgh
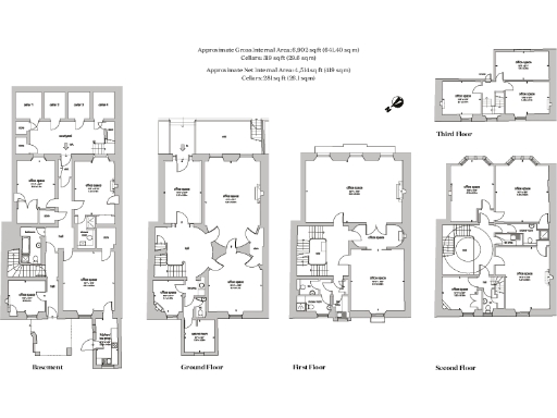
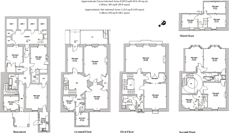
- Approximately 6,902 sq ft across multiple levels
- Potential for redevelopment or change of use (subject to planning consent)
- Three private car parking spaces
- High ceilings and ornate period features
- Vibrant urban environment with rich cultural amenities

**Potential Concerns:**
- Listed status may complicate renovation plans
- Currently configured as an office; reconfiguration will be necessary
- Exceptional size and layout may require a significant investment for conversion

Discover a unique investment opportunity in the heart of Edinburgh's prestigious West End with this grand Georgian townhouse, featuring an impressive footprint of approximately 6,902 square feet. With its elegant sandstone façade, high ceilings, and original period details, the property exudes historical charm while providing flexible space for conversion into luxury residential accommodation, boutique apartments, or high-end hospitality venues—subject to the necessary planning consents.

The home boasts three private car parking spaces and excellent connectivity via public transport, including a tram stop and Haymarket Station nearby. Enjoy picturesque views of Edinburgh Castle and the vibrant urban landscape from upper floors. While this property is currently configured as an office, its spacious layout offers remarkable potential for transformation. This is a rare chance to invest in a prime location, surrounded by a dynamic mix of amenities and cultural attractions, appealing to developers and investors eager to capitalize on this flourishing area. Act swiftly—properties like this one are few and far between!

Property Details

Brochure Descriptions

Image Descriptions

Floorplan Description

Rooms

Textual Property Features

Detected Visual Features

Nearest Bars And Restaurants

,,,,}

Nearest General Shops

,,}

Nearest Grocery shops

,,}

Nearest Supermarkets

,,}

Nearest Religious buildings

,,}

Nearest Medical buildings

,,,}

Nearest Airports

}

Nearest Leisure Facilities

,,,,}

Nearest Tourist attractions

,,}

Nearest Train stations

,,,,}

Nearest Bus stations and stops

,,,,}

Nearest Hotels

,,}

Tags

Local Market Stats

AirBnB Data

Similar Properties

Meta

High Res Images

Compatible Images

Low res Images

Thumbnails

Raw Images

High Res Floorplan Images

Compatible Floorplan Images

Low res Floorplan Images

FloorplanImages Thumbnail

Raw Floorplan Images