Single-level modern living near coast and countryside.
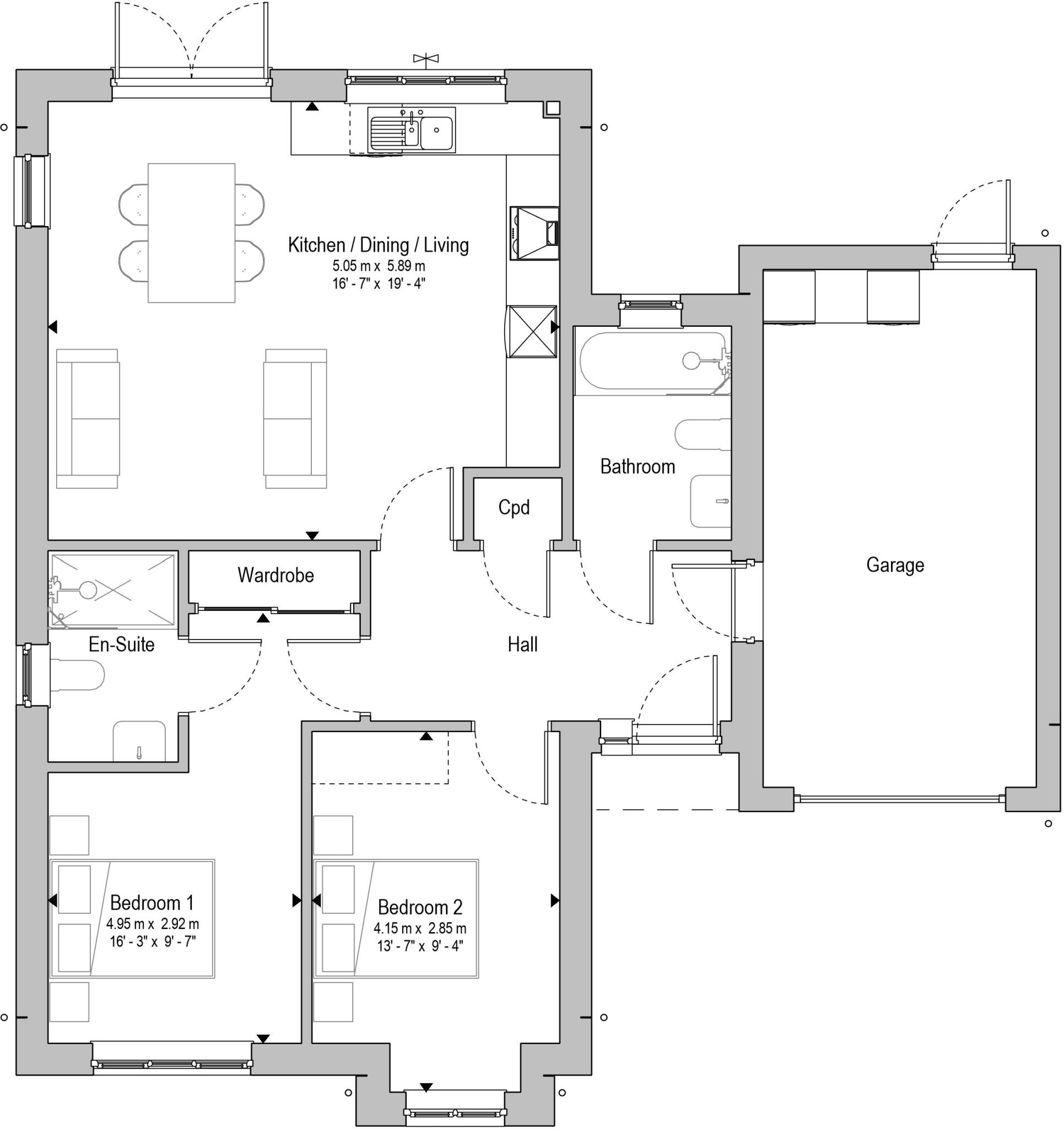
Two double bedrooms, one with en-suite shower room
Open-plan living with French doors onto enclosed garden
Single garage, block-paved driveway and generous private plot
Underfloor heating, air source heat pump, double glazing
1.5 kW solar PV and EV charging point included
High-spec fitted kitchen by local firm Home Sweet Home
Completion expected August 2025; some finishes subject to change
Illustrative images used; exact plot fittings may differ
A bright, single-storey home designed for low-maintenance living, The Weaver delivers two double bedrooms (one en-suite), an open-plan living area and French doors opening onto a private garden. The property is part of Phase 2 at Highfields, a small exclusive development backing onto open fields and offering garages, parking and generous private plots. High-spec finishes include a Home Sweet Home fitted kitchen, Porcelanosa tiling options and underfloor heating throughout the ground floor.
Energy and running costs are reduced by an air source heat pump, underfloor heating, double glazing, a 1.5 kW solar PV array and an EV charging point. The layout and finish will suit buyers seeking an easier, single-level lifestyle close to Barnstaple’s amenities, coastal walks and the Tarka Trail. Each plot includes a single garage, block-paved driveway and fully turfed garden.
Buyers should note this is a new-build release with completion expected August 2025; final finishes and some fittings may vary and some images are for illustration only. The development contains a mix of detached and semi‑detached homes. Practical details such as council tax banding are not yet confirmed. The asking price is £435,000.
2 bedroom bungalow for sale in Woolmers Lane, Bickington, Barnstaple, Devon, EX31 — £465,000 • 2 bed • 2 bath • 709 ft²
3 bedroom detached house for sale in Woolmers Lane, Bickington, Barnstaple, Devon, EX31 — £425,000 • 3 bed • 2 bath • 700 ft²
3 bedroom semi-detached house for sale in Woolmers Lane, Bickington, Barnstaple, Devon, EX31 — £350,000 • 3 bed • 2 bath • 661 ft²
4 bedroom detached house for sale in Woolmers Lane, Bickington, Barnstaple, Devon, EX31 — £560,000 • 4 bed • 2 bath • 468 ft²
3 bedroom detached house for sale in Barnstaple,
North Devon,
EX31 2JL, EX31 — £422,500 • 3 bed • 2 bath • 981 ft²
3 bedroom detached house for sale in Barnstaple,
North Devon,
EX31 2JL, EX31 — £422,500 • 3 bed • 2 bath • 981 ft²


























































