**Standout Features:**
- Exclusive new development in Bickington, Barnstaple.
- Phase 2 release with 10 high-quality properties.
- Completion date set for August 2025.
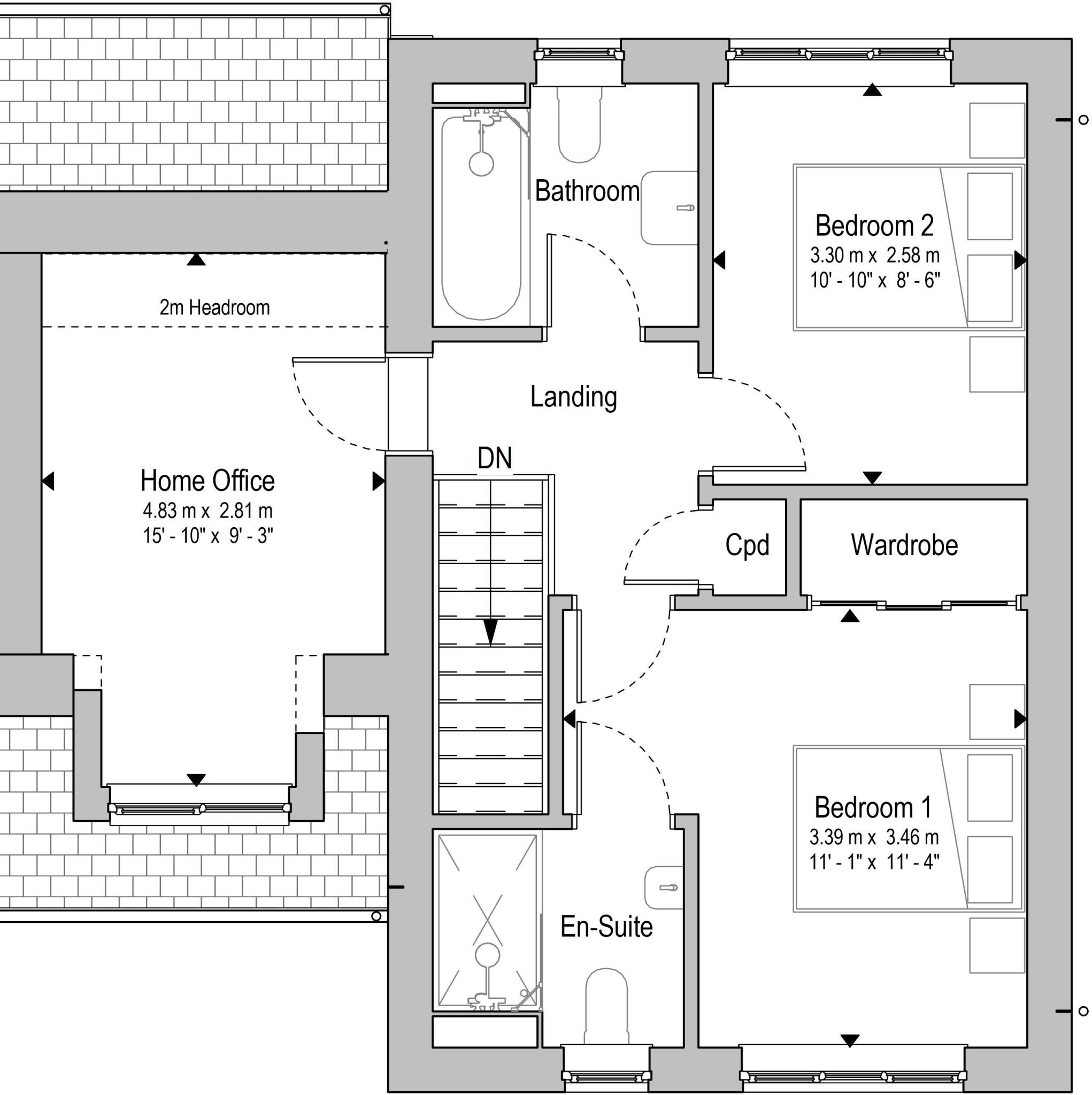
- Semi-detached design with 3 bedrooms, 2 bathrooms, and garage.
- High specification finishes and energy-efficient features including solar panels and a car charge point.
- Beautiful surroundings with proximity to nature trails and coastal paths.
- Well-respected local developer "Home Sweet Home".
**Summary:**
Discover the exclusivity of Highfields, a modern semi-detached home in the charming village of Bickington, just moments from the picturesque Devon countryside. This newly built gem features three spacious bedrooms and two stylish bathrooms, complete with a garage and off-road parking. With its contemporary kitchen designed by the acclaimed firm 'Home Sweet Home', every corner of this property radiates quality. Enjoy energy efficiency with solar panels and underfloor heating, enhancing comfort and sustainability.
Nestled in a serene location yet conveniently close to local amenities, this home is perfect for families seeking community and adventure. The notable nearby Tarka Trail offers myriad opportunities for walking and cycling, while the stunning North Devon beaches are merely a stone's throw away for sea lovers. As a new development with limited availability, this property presents a fantastic opportunity to invest in a lifestyle characterized by comfort, beauty, and future potential. Don't miss out—explore the exclusive charm of Highfields today!
2 bedroom bungalow for sale in Woolmers Lane, Bickington, Barnstaple, Devon, EX31 — £465,000 • 2 bed • 2 bath • 709 ft²
4 bedroom detached house for sale in Woolmers Lane, Bickington, Barnstaple, Devon, EX31 — £560,000 • 4 bed • 2 bath • 468 ft²
3 bedroom detached house for sale in Woolmers Lane, Bickington, Barnstaple, Devon, EX31 — £425,000 • 3 bed • 2 bath • 700 ft²
2 bedroom bungalow for sale in Woolmers Lane, Bickington, Barnstaple, Devon, EX31 — £435,000 • 2 bed • 2 bath • 602 ft²
2 bedroom bungalow for sale in Woolmers Lane, Bickington, Barnstaple, Devon, EX31 — £435,000 • 2 bed • 2 bath • 603 ft²
3 bedroom detached house for sale in Woolmers Lane, Bickington, Barnstaple, Devon, EX31 — £395,000 • 3 bed • 2 bath • 1110 ft²






























