Large-scale conversion or hotel reopening potential on Bridlington promenade.
44 en suite bedrooms plus 15 apartments across the same site
Iconic Art Deco seafront position with wide panoramic sea views
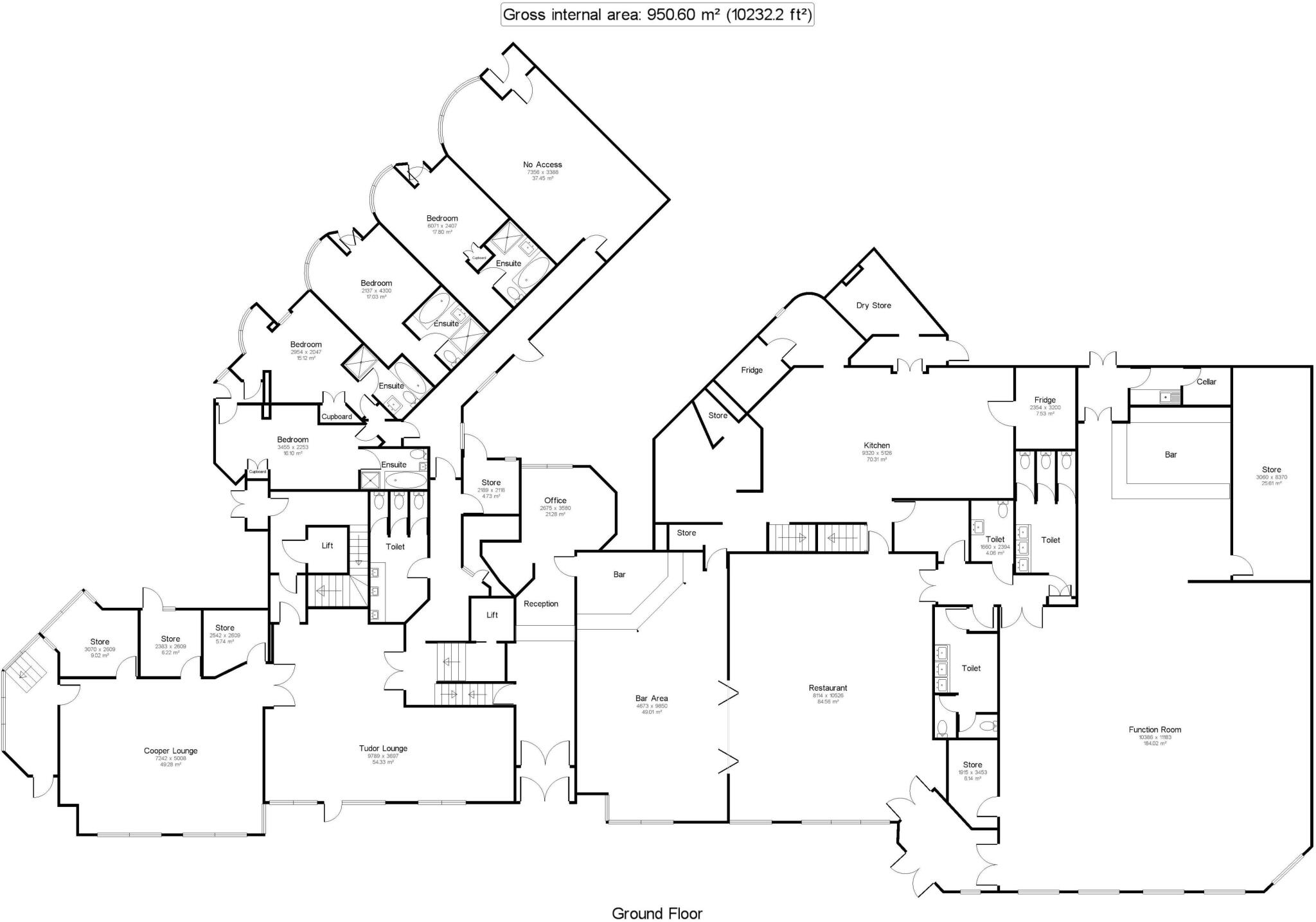
Large public rooms: restaurant, bars, function suites and rooftop terrace
Freehold on ~0.61 acre; total area ~23,650 sq ft (very large)
Property closed; requires recommissioning and likely refurbishment
Limited on-site parking (about 10 spaces) despite promenade parking nearby
Potential for alternative uses subject to planning permission (STPP)
Energy Rating C; built 1937 — period features and maintenance considerations
Standing prominently on Bridlington’s North Marine Drive, The Expanse Hotel is a substantial Art Deco seafront property with 44 en suite bedrooms, 15 apartments in total and extensive public event spaces. Its rooftop terrace, panoramic bay views and large function rooms create obvious appeal for hospitality use or a conversion project subject to planning permission (STPP).
The building closed recently and will require recommissioning before re-opening as a hotel; the extent of refurbishment is not specified. The freehold includes car parking for about 10 vehicles, additional public promenade parking, and a site of approximately 0.61 acres — rare scale on this part of the Yorkshire coast.
This is a clear opportunity for an investor or developer: the property’s size, location and multiple income streams (holiday lets, AST apartments and hotel accommodation) offer flexibility. Buyers should factor in refurbishment costs, compliance upgrades and planning processes if pursuing alternative uses.
Practical points: the property was built in 1937, holds an energy rating of C and sits outside flood risk. It occupies a high-profile seaside position in a town reliant on tourism, with local amenities, public transport and nearby schools.
Hotel for sale in The Expanse Hotel, North Marine Drive, Bridlington, YO15 2LS, YO15 — £1,700,000 • 1 bed • 1 bath
16 bedroom detached house for sale in Summerfield Road, Bridlington, East Yorkshire, YO15 — £439,950 • 16 bed • 1 bath • 3426 ft²
Land for sale in Hilderthorpe Road, Bridlington, East Yorkshire, YO15 — £395,000 • 22 bed • 1 bath • 12000 ft²
14 bedroom terraced house for sale in Belgrave Road, Bridlington, East Riding of Yorkshire, YO15 — £440,000 • 14 bed • 1 bath • 4301 ft²
11 bedroom semi-detached house for sale in Summerfield Road, Bridlington, East Yorkshire, YO15 — £330,000 • 11 bed • 1 bath • 2750 ft²
Hospitality facility for sale in Flamborough Road, Bridlington, YO15 — £1,750,000 • 1 bed • 1 bath • 11840 ft²


























































































































































