**Standout Features:**
- **Turn-key Business**: Profitable hotel, bar, and restaurant with a turnover of £1.1m and ANP over £225,000.
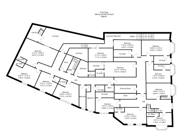
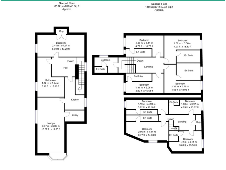
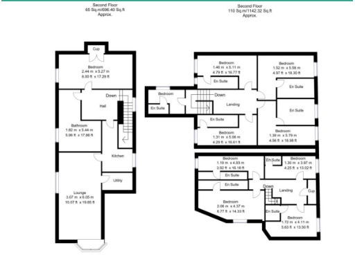
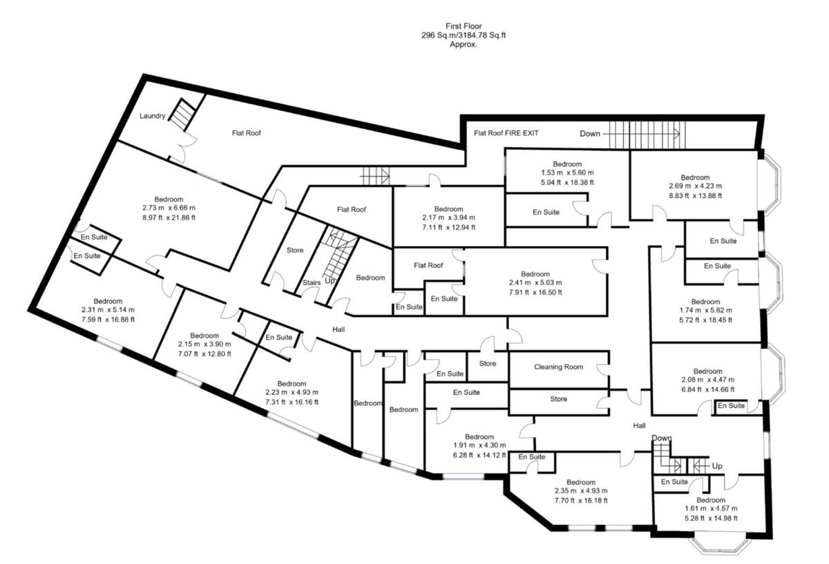
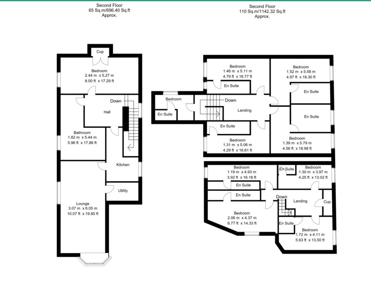
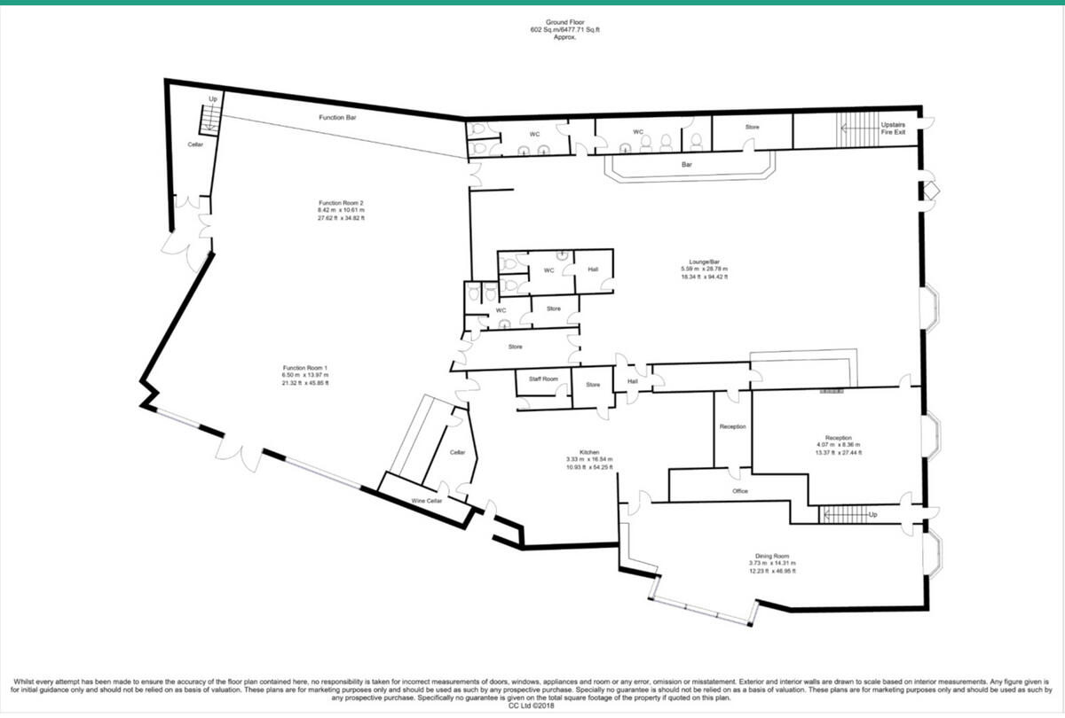
- **Extensive Space**: Over 1,000 sq/m, includes 25 bedrooms and a manager's flat.
- **Development Potential**: Opportunities for conversion into holiday apartments or expanded residential accommodation.
- **Prime Location**: Just half a mile from Bridlington's North Beach, within a popular seaside town.
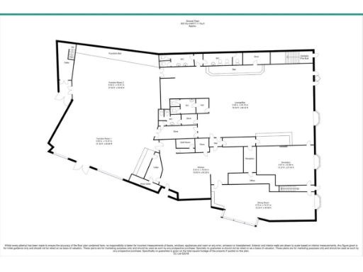
- **External Features**: Outdoor seating for up to 80 people and off-street parking for eight cars.
**Summary:**
Presenting an exceptional investment opportunity in Bridlington, the Revelstoke Hotel is a fully managed, turn-key business boasting a strong annual turnover of £1.1m. This expansive property features 25 comfortable letting rooms alongside a well-appointed manager’s flat, making it perfect for those seeking a hospitality venture with minimal setup required.
Located on Flamborough Road, only a half-mile from the picturesque North Beach, the hotel's strategic positioning in a thriving seaside town makes it a solid choice for attracting tourists year-round. The property also includes a vibrant pub and restaurant, two spacious function rooms, and versatile internal areas offering over 1,000 sq/m of usable space.
With existing development options allowing conversion into holiday apartments or expanded residential units, you can capitalize on the potential for increased value. The venue already boasts an established customer base, evidenced by its strong online ratings and significant social media following, ensuring that you step into a poised business ready for continued success. Don’t miss this rare opportunity—act quickly before it slips away!
Commercial property for sale in Trinity Road, Bridlington, YO15 — £425,000 • 1 bed • 1 bath • 4491 ft²
44 bedroom detached house for sale in The Expanse Hotel, North Marine Drive, Bridlington, YO15 2LS, YO15 — £2,000,000 • 44 bed • 1 bath • 23650 ft²
Hotel for sale in The Expanse Hotel, North Marine Drive, Bridlington, YO15 2LS, YO15 — £1,700,000 • 1 bed • 1 bath
Restaurant for sale in Hot Food Take Away, East Yorkshire, YO15 — £69,950 • 5 bed • 1 bath • 1690 ft²
16 bedroom detached house for sale in Summerfield Road, Bridlington, East Riding of Yorkshi, YO15 — £439,950 • 16 bed • 1 bath • 3426 ft²
Commercial property for sale in Trinity Road, Bridlington, YO15 — £565,000 • 1 bed • 1 bath • 4491 ft²






























































































































