**Standout Features:**
- Extensive plot size of 0.25 acres with full planning permission for a contemporary four-bedroom residence (Ref: DMPA/2021/0406)
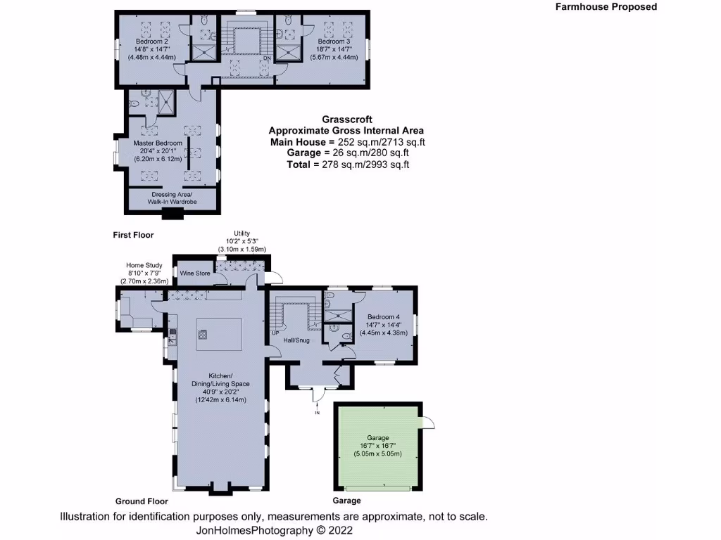
- Total accommodation size of approximately 2,713 sq ft
- Located in the tranquil village of Osleton with easy access to commuter routes (A38, A50, A52)
- Good potential for resale or as a family home with ample outdoor space for gardens or recreational activities
- Off-street parking and opportunity for detached garaging
- Variety of nearby schools with acceptable ratings
- Nearby amenities within charming rural communities, only 6 miles from Derby and 9.5 miles from Ashbourne, near the Peak District National Park
**Summary:**
Introducing Grass Croft, an exceptional development opportunity located in the picturesque village of Osleton, Derbyshire. This vast 0.25-acre plot offers full planning permission for the construction of a contemporary four-bedroom detached home, spanning approximately 2,713 sq ft. Ideal for first-time buyers or investors, this property blends tradition with modern design and features spacious living areas, four en-suite bedrooms, and off-street parking amidst serene gardens.
The area boasts stunning countryside views and is surrounded by outdoor pursuits, making it a perfect retreat for nature enthusiasts. With convenient access to local amenities, schools, and main road networks, this property is a unique opportunity that won't last long. Don't miss your chance to create your dream home in a tranquil setting, with the flexibility for expansion and the potential to design your oasis in the heart of Derbyshire's rural charm.
Land for sale in Development Site, Barns at Top House Farm, Dalbury Lees, DE6 — £550,000 • 1 bed • 1 bath • 24829 ft²
Land for sale in Derby, Derbyshire, DE65 — £3,400,000 • 1 bed • 1 bath
3 bedroom house for sale in Ashbourne, Derbyshire, DE6 — £1,700,000 • 3 bed • 1 bath • 3302 ft²
3 bedroom house for sale in Ashbourne, Derbyshire, DE6 — £1,000,000 • 3 bed • 1 bath • 3302 ft²
Land for sale in Land off Etwall Road, Egginton, DE65 — £150,000 • 1 bed • 1 bath
Land for sale in Land on the north side of Sallyfield Lane, Stanton, Ashbourne Derbyshire DE6 2DA, DE6 — £450,000 • 1 bed • 1 bath • 7000 ft²






































