**Standout Features:**
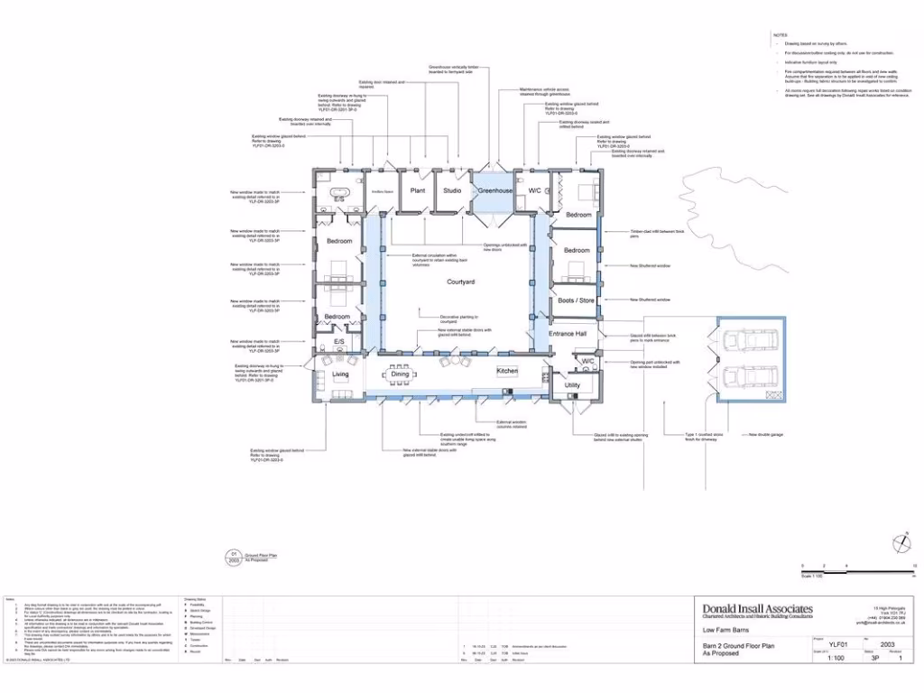
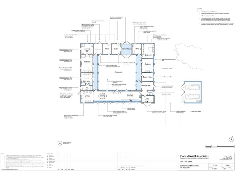
- Substantial Grade II listed barn with planning permission for residential conversion
- Large footprint (1,361 sq ft) on a picturesque rural plot
- Situated in a tranquil location just north of Thorpe Underwood village
- Close proximity to major towns like Boroughbridge, Knaresborough, and York
- Access to essential amenities and transport routes (A59 and A1(M))
**Potential Concerns:**
- Requires extensive renovation and modernization
- Listed status may complicate certain design modifications
- Mains electricity and water must be connected 
This outstanding development opportunity is centered around a remarkable Grade II listed barn, nestled in a serene countryside setting. With planning permission granted in March 2024 for conversion into two residential dwellings, this is a rare chance to merge the charm of historic architecture with modern living. The barn's ample space offers the potential for creating a spacious family home, complete with a large garden that encourages outdoor enjoyment and relaxation. 
Positioned conveniently near essential amenities in larger towns, yet offering the tranquility of rural life, this property suits buyers seeking both comfort and accessibility. Local schools are rated well, making it an ideal choice for families. However, be prepared for renovation as the barn requires significant work to bring it to its full potential. Experience the unique blend of country allure and development potential—opportunities like this don't last long!
 House for sale in Barn 1, Low Farm Barns, Thorpe Underwood, North Yorkshire, YO26 — £575,000 • 1 bed • 1 bath
 House for sale in Barn 1, Low Farm Barns, Thorpe Underwood, North Yorkshire, YO26 — £575,000 • 1 bed • 1 bath House for sale in Residential Development Opportunity, Low Farm Barns, Thorpe Underwood, North Yorkshire, YO26 — £950,000 • 1 bed • 1 bath • 2000 ft²
 House for sale in Residential Development Opportunity, Low Farm Barns, Thorpe Underwood, North Yorkshire, YO26 — £950,000 • 1 bed • 1 bath • 2000 ft² Barn conversion for sale in Sutton On The Forest, York, YO61 — £350,000 • 1 bed • 1 bath • 2830 ft²
 Barn conversion for sale in Sutton On The Forest, York, YO61 — £350,000 • 1 bed • 1 bath • 2830 ft² Barn conversion for sale in Easingwold Road, Huby, YO61 — £375,000 • 1 bed • 1 bath • 4907 ft²
 Barn conversion for sale in Easingwold Road, Huby, YO61 — £375,000 • 1 bed • 1 bath • 4907 ft² Residential development for sale in Off Sparington Lane, Sutton On The Forest, YO61 — £350,000 • 1 bed • 1 bath • 2160 ft²
 Residential development for sale in Off Sparington Lane, Sutton On The Forest, YO61 — £350,000 • 1 bed • 1 bath • 2160 ft² Residential development for sale in Easingwold Road, Huby, YO61 — £375,000 • 1 bed • 1 bath • 4907 ft²
 Residential development for sale in Easingwold Road, Huby, YO61 — £375,000 • 1 bed • 1 bath • 4907 ft²














































