Convert a large portal-framed barn into a bespoke country residence near Huby.
- Prior approval granted for change of use to one dwelling (Decision ZB25/00801/MBN)
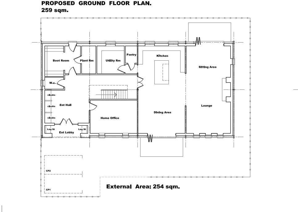
- Existing barn footprint c.259 sq m (2,787 sq ft); potential finished 456 sq m
- Main plot c.1 acre; optional adjoining 1.67-acre paddock available
- Mains water and electricity not connected; power quote ~£16,985 received
- Development liable for Community Infrastructure Levy (CIL)
- Approved works must be completed within three years of approval
- Rural setting with extensive countryside views and low crime
- Broadband reported fast; mobile signal average
A rare rural development opportunity on the edge of Huby: a modern portal-framed agricultural barn set within c.1 acre with prior approval to convert to a single substantial dwelling. The decision (North Yorkshire Council, 20 June 2025, Application ZB25/00801/MBN) confirms permitted development for change of use to one house — approved work must be completed within three years from the decision date.
The existing barn footprint is approximately 259 sq m (2,787 sq ft) with approved plans indicating a potential finished home of around 456 sq m (4,907 sq ft). The site offers extensive open countryside views, high internal heights and scope for a flexible layout including living, utility, office and plant spaces. An adjoining paddock of about 1.67 acres is available separately, useful for equestrian, amenity or extra privacy.
Important practical facts: mains water and electricity are not yet connected — a Northern Power Grid quote for connection has been received (approx. £16,984.53) and a water quote is pending. The development is liable for Community Infrastructure Levy and buyers should budget for connection, build costs and compliance with the approved conditions. Broadband speeds are reported as fast; mobile signal is average.
This will suit a buyer seeking a bespoke country home or an investor/developer comfortable with a barn conversion project. The site is in an affluent, low-crime village setting with good local schools nearby. Be aware of the three-year completion timescale, utility connection costs, CIL liability and that the approval is for a single dwelling only.
Barn conversion for sale in Easingwold Road, Huby, YO61 — £375,000 • 1 bed • 1 bath • 4907 ft²
Barn conversion for sale in Sutton On The Forest, York, YO61 — £350,000 • 1 bed • 1 bath • 2830 ft²
Residential development for sale in Off Sparington Lane, Sutton On The Forest, YO61 — £350,000 • 1 bed • 1 bath • 2160 ft²
House for sale in Barn 1, Low Farm Barns, Thorpe Underwood, North Yorkshire, YO26 — £575,000 • 1 bed • 1 bath
House for sale in Barn 2, Low Farm Barns, Thorpe Underwood, YO26 9SR, YO26 — £375,000 • 1 bed • 1 bath • 1361 ft²
House for sale in Residential Development Opportunity, Low Farm Barns, Thorpe Underwood, North Yorkshire, YO26 — £950,000 • 1 bed • 1 bath • 2000 ft²


















































