**Standout Features:**
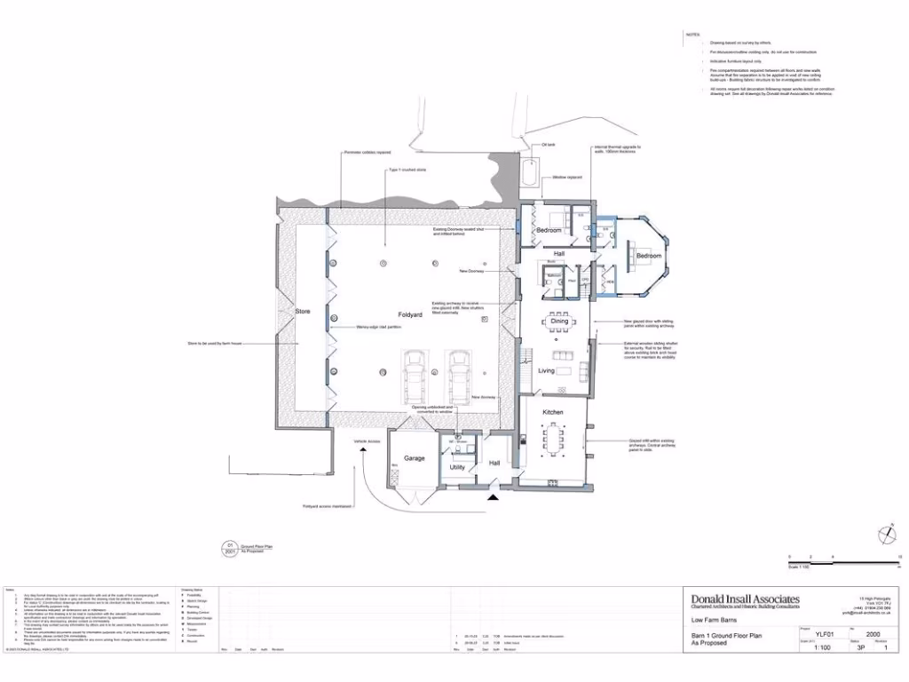
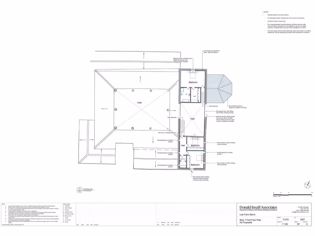
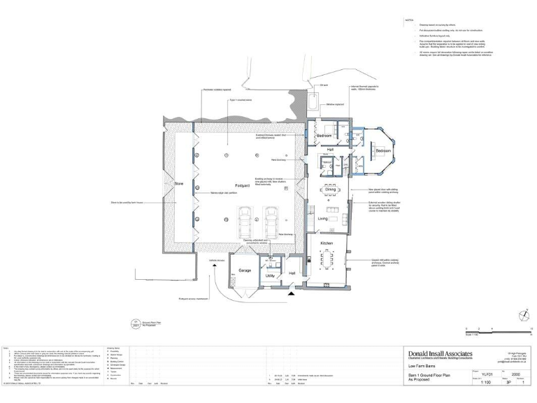
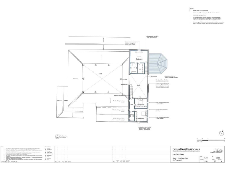
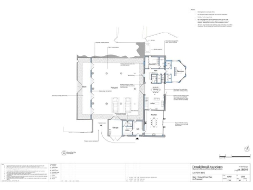
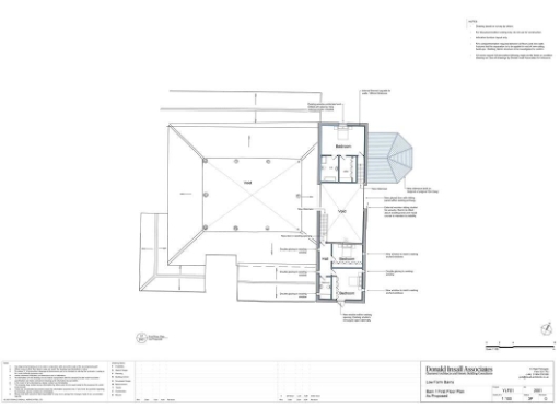
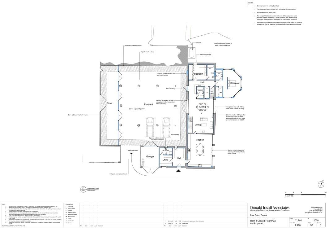
- Substantial Grade II listed barn with potential for conversion
- Planning permission and listed building consent granted in March 2024 for conversion into two residential dwellings
- Idyllic countryside location, just north of Thorpe Underwood village
- Excellent access to A59 and A1(M) and nearby towns of Boroughbridge, Knaresborough, and York
- Ample outdoor space with significant development potential
- Low crime rates and fast broadband availability
**Concerns:**
- Listed status may pose challenges during renovation
- Requires installation of sewerage treatment plants
- Responsibility for removing an additional barn
**Summary:**
Discover a rare opportunity to transform a substantial Grade II listed barn into your dream home in a serene country setting. With planning permission and listed building consent recently granted for the conversion into two residential dwellings, this property offers both residential charm and future potential. Nestled just north of Thorpe Underwood, enjoy the beauty of rolling fields and mature woodlands, coupled with excellent access to nearby urban amenities and transport links.
Ideal for families or investors, this property not only features a spacious indoor layout yet to be realized but also offers vast outdoor areas ripe for landscaping and gardening. Experience the tranquility of rural living, where low crime and fast broadband signify a peaceful lifestyle without sacrificing convenience. With the unique opportunity to reshape your future home, this property is poised to generate strong interest—act now to secure your quintessential countryside escape!
House for sale in Barn 2, Low Farm Barns, Thorpe Underwood, YO26 9SR, YO26 — £375,000 • 1 bed • 1 bath • 1361 ft²
House for sale in Residential Development Opportunity, Low Farm Barns, Thorpe Underwood, North Yorkshire, YO26 — £950,000 • 1 bed • 1 bath • 2000 ft²
Barn conversion for sale in Sutton On The Forest, York, YO61 — £350,000 • 1 bed • 1 bath • 2830 ft²
Barn conversion for sale in Easingwold Road, Huby, YO61 — £375,000 • 1 bed • 1 bath • 4907 ft²
Residential development for sale in Off Sparington Lane, Sutton On The Forest, YO61 — £350,000 • 1 bed • 1 bath • 2160 ft²
Residential development for sale in Easingwold Road, Huby, YO61 — £375,000 • 1 bed • 1 bath • 4907 ft²


































