Characterful three-bed period house, chain-free, close to Tube and Overground stations.
Three double bedrooms with high ceilings and bay windows
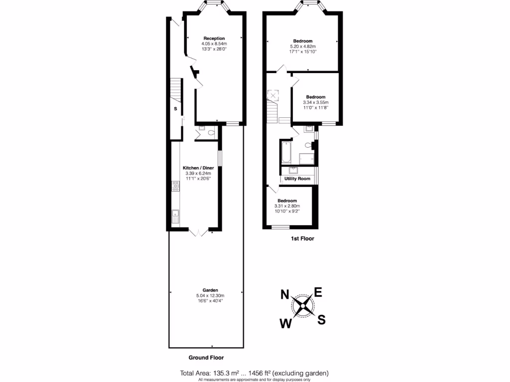
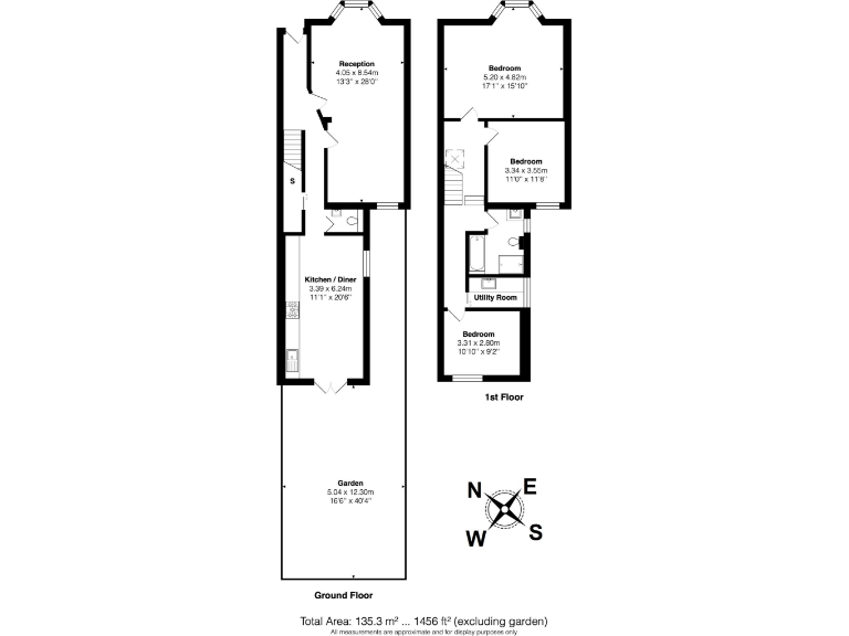
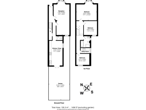
This recently redecorated three-double-bedroom Victorian terraced house on Wendover Road offers spacious living across approximately 1,456 sq ft, presented chain-free and ready to move into. High ceilings, bay windows and period fireplaces give strong character throughout the large through-reception and dining room. The ground floor also includes a well-equipped kitchen with breakfast area, separate utility room and a convenient guest WC. French doors open to a north-east facing garden with decked patio and lawn.
The property is well placed for transport: Willesden Junction and Harlesden stations (Bakerloo Line and London Overground) are a short walk away, and Old Oak Common is easily reachable. There is realistic scope to increase living space and future value — loft conversion and side-return extensions have been suggested (STPP). Offered freehold with no upper chain, the house suits buyers seeking a family home with immediate use and future development potential.
Be candid about local context: the council tax band is above average and the area records higher crime levels and relative deprivation compared with neighbouring districts. The plot is small, so any garden expansion is limited. Overall, this is a roomy, characterful family home in an inner-city location where transport links and extension potential are the main value drivers.
3 bedroom terraced house for sale in Buckingham Road, London, NW10 — £725,000 • 3 bed • 1 bath • 1147 ft²
4 bedroom end of terrace house for sale in Wrottesley Road, Kensal Rise (Borders), NW10 5YL, NW10 — £1,290,000 • 4 bed • 1 bath • 1529 ft²
3 bedroom house for sale in High Street, Harlesden, London, NW10 — £740,000 • 3 bed • 1 bath • 1398 ft²
3 bedroom terraced house for sale in Wendover Road, London, NW10 — £710,000 • 3 bed • 2 bath • 1217 ft²
2 bedroom terraced house for sale in Rucklidge Avenue, London, NW10 — £450,000 • 2 bed • 1 bath • 770 ft²
4 bedroom terraced house for sale in Ranelagh Road, Willesden Junction, NW10 — £875,000 • 4 bed • 2 bath • 1605 ft²










































