Spacious three-bedroom family home with long paved garden and excellent transport links.
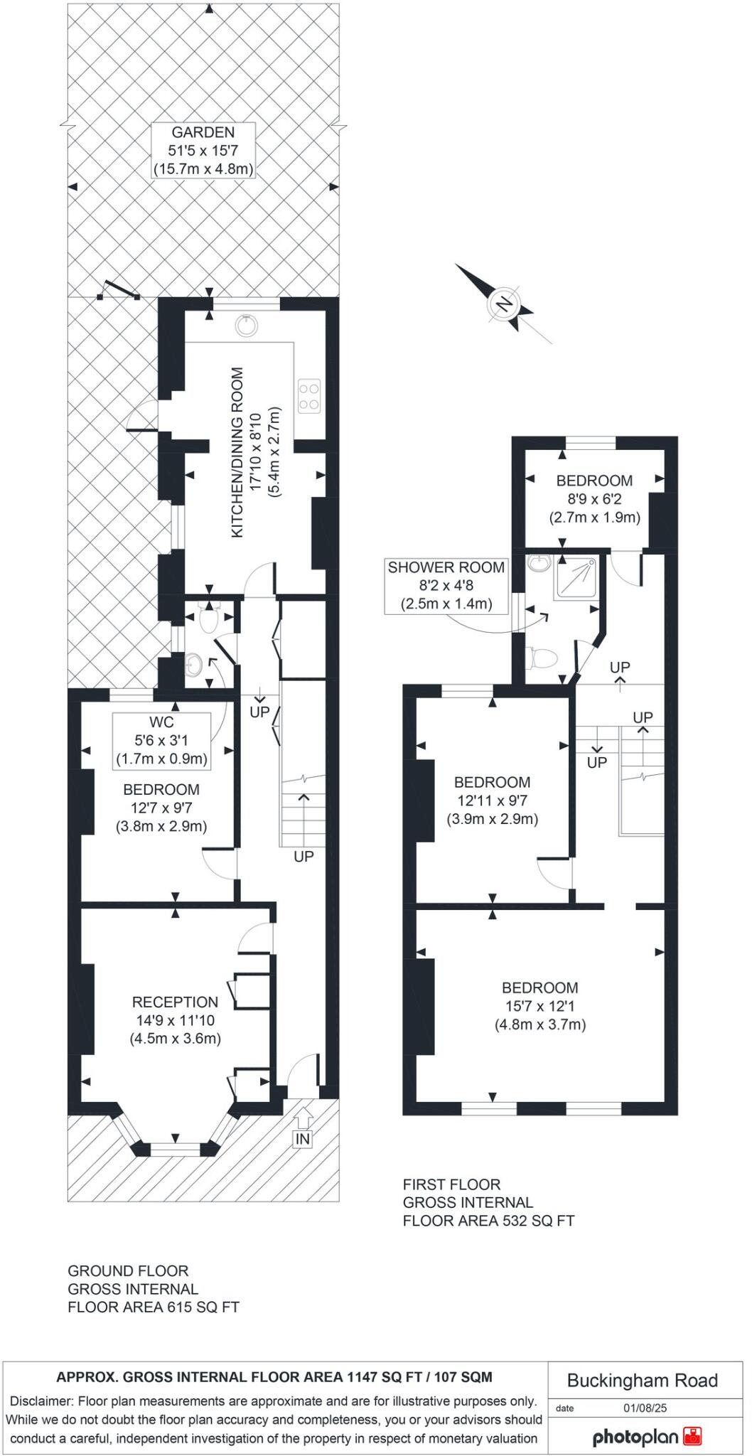
- 1,147 sq ft period mid-terrace with high ceilings
- Three bedrooms, two reception rooms, two WCs
- Long rear garden approx 52 feet, mainly paved
- Chain free sale with vacant possession
- Short walk to Willesden Junction (Bakerloo/Overground)
- Solid brick walls likely lack insulation; upgrade advisable
- Area shows higher crime and relative deprivation
- Some interior rooms and finishes dated, renovation potential
A spacious three-bedroom period mid-terraced house offering 1,147 sq ft of flexible living over two floors. The property features two reception rooms, double glazing and gas central heating, plus a substantial rear garden of about 52 feet — rare for nearby terraces. It is sold freehold, chain free and with vacant possession, and is within a short 0.3-mile walk of Willesden Junction (Bakerloo and Overground), making commuting straightforward.
The house retains classic Victorian features and generous ceiling heights but also shows signs that basic updating would improve comfort and energy performance. The solid brick walls are assumed uninsulated and some interior areas and finishes are dated, so buyers should expect investment to modernise heating, electrics, or decoration if required. There is one main shower room and two WCs across the layout.
This home will suit families seeking space near good local schools and amenities, or investors targeting rental demand from young families and students. Note the local area has higher-than-average crime and relative deprivation; prospective buyers should weigh neighbourhood factors against the strong transport links and the property’s renovation potential.
3 bedroom terraced house for sale in Wendover Road, London, NW10 — £699,000 • 3 bed • 2 bath • 1217 ft²
3 bedroom terraced house for sale in West Ella Road, London, NW10 — £550,000 • 3 bed • 1 bath • 1259 ft²
4 bedroom end of terrace house for sale in Buckingham Road, Harlesden, NW10 — £1,000,000 • 4 bed • 1 bath • 1647 ft²
4 bedroom end of terrace house for sale in Wrottesley Road, Kensal Rise (Borders), NW10 5YL, NW10 — £1,290,000 • 4 bed • 1 bath • 1529 ft²
3 bedroom terraced house for sale in Wendover Road, London, NW10 — £750,000 • 3 bed • 1 bath • 1456 ft²
3 bedroom terraced house for sale in Rucklidge Avenue, Willesden junction, London, NW10 — £525,000 • 3 bed • 1 bath • 786 ft²


























































