Move-in-ready two-bedroom home with high ceilings and shared garden near amenities.
Newly renovated, walk-in condition throughout
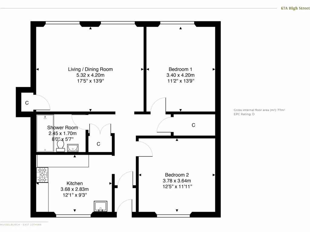
Presented in immaculate, walk-in condition, this newly renovated two-bedroom first-floor flat combines period character with contemporary finishes. High ceilings and large sash-style windows flood the main living area with light, where a wood-burning stove provides a focal point and cosy heating option. The engineered wood flooring and neutral palette make the apartment ready to move into with minimal immediate work.
The kitchen uses a free-standing layout aside from the gas range and sink, offering scope to personalise with freestanding units or bespoke storage. Both double bedrooms are well proportioned for a town-centre property, and the modern three-piece bathroom completes the accommodation. A lift provides direct, step-free access to the flat.
Externally, residents share access to a communal garden. Practical amenities include on-street parking and excellent mobile signal. The property is freehold and offers 828 sq ft of usable space, making it a compact but comfortable option for first-time buyers or those downsizing who want central town living.
Buyers should note a couple of material limitations: broadband speeds are reported as slow, which may affect heavy remote-working households, and parking is limited to on-street spaces. The surrounding area is described as very deprived, though the immediate High Street location provides extensive local amenities and public transport links.
2 bedroom flat for sale in 146B North High Street, Musselburgh, East Lothian, EH21 6AS, EH21 — £180,000 • 2 bed • 1 bath • 606 ft²
2 bedroom flat for sale in 203a North High Street, Musselburgh, East Lothian, EH21 6AP, EH21 — £175,000 • 2 bed • 1 bath • 614 ft²
2 bedroom flat for sale in 126B High Street, Musselburgh, East Lothian, EH21 7EA, EH21 — £205,000 • 2 bed • 1 bath • 776 ft²
2 bedroom ground floor flat for sale in 5 Hercus Loan, Musselburgh, East Lothian, EH21 6AU, EH21 — £190,000 • 2 bed • 1 bath • 710 ft²
2 bedroom apartment for sale in Mansfield Place, Musselburgh, East Lothian, EH21 — £171,500 • 2 bed • 1 bath • 669 ft²
2 bedroom ground floor flat for sale in 31 Kerr's Wynd, Musselburgh, EH21 7RB, EH21 — £180,000 • 2 bed • 1 bath • 861 ft²


























































































