Chain-free one-bedroom close to Elizabeth Line, ready to personalise and occupy.
Private rear garden with direct kitchen access
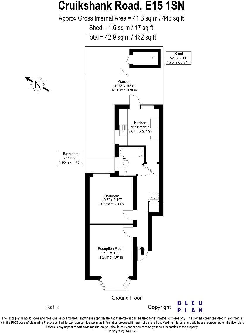
Set on a quiet residential street in Stratford, this ground-floor one-bedroom garden flat is offered chain-free and vacant, making it ideal for a first purchase or buy-to-let acquisition. The flat benefits from a private rear garden and a bright front reception with a large bay window, giving a sense of space despite an overall average footprint (approx. 441 sq ft).
The accommodation includes a well-proportioned double bedroom, a modern-looking kitchen with garden access, and a bathroom that is functional but ready to be reimagined. The property already has some contemporary fittings and double glazing, yet it also offers clear scope to personalise and add value — there is potential to extend subject to planning (STPP).
Practical positives include a long lease (150 years), mains gas central heating with boiler and radiators, fast broadband and excellent mobile signal, and superb transport links with Stratford and Maryland stations nearby (Elizabeth Line access). These features make commuting or renting straightforward and attractive.
Buyers should note material drawbacks plainly: the area records above-average crime levels, and parts of the property and exterior need attention — images indicate areas requiring modernisation, exterior painting and flat roof works. Walls are original solid brick (assumed uninsulated), so additional insulation or improvement works may be needed. The home is best suited to someone prepared to undertake light to moderate refurbishment to unlock its full potential.
1 bedroom flat for sale in St Pauls Drive E15, Stratford, London, E15 — £250,000 • 1 bed • 1 bath • 483 ft²
1 bedroom flat for sale in Stork Road, London, E7 — £350,000 • 1 bed • 1 bath • 574 ft²
1 bedroom flat for sale in GURNEY ROAD, Maryland, London, E15 — £265,000 • 1 bed • 1 bath • 484 ft²
1 bedroom flat for sale in Keogh Road, Maryland, London, E15 — £315,000 • 1 bed • 1 bath • 533 ft²
1 bedroom flat for sale in Harcourt Road, Stratford, E15 — £350,000 • 1 bed • 1 bath • 603 ft²
1 bedroom apartment for sale in Heyworth Road, London, E15 — £325,000 • 1 bed • 1 bath • 537 ft²






























































