Bright one-bedroom near Stratford station and Westfield, ideal for first-time buyers.
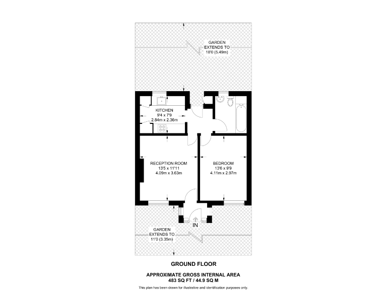
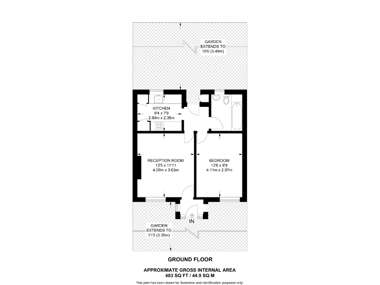
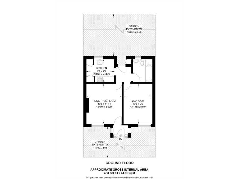
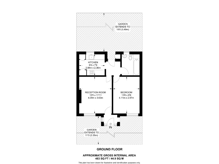
- Private ground-floor entrance with front and rear paved gardens
- Generous reception room with dining space, 483 sq ft overall
- Separate kitchen with modern fixtures, bright galley layout
- Double glazing present; install date unknown
- Cavity walls likely uninsulated — energy improvements advised
- Leasehold tenure; price £250,000
- Area classified as deprived with above-average crime
- Excellent transport links, fast broadband and strong local amenities
This ground-floor one-bedroom flat offers a private entrance, front and rear paved gardens and generous reception space — a rare find at 483 sq ft in Stratford. The apartment feels bright throughout, with a separate kitchen fitted with modern fixtures and a straightforward white-suite bathroom. Its location places daily amenities, Stratford station and Westfield within easy reach, making commuting and shopping simple.
Practical buyers will appreciate fast broadband and excellent mobile signal, plus nearby outstanding schools for young families. The building dates from the late 1960s/early 1970s; the property has double glazing (install date unknown) and cavity walls with assumed no insulation, so there is clear scope to improve energy performance and reduce bills. Boiler and radiators run on mains gas.
Notable negatives are factual: the flat is leasehold, the area is classified as deprived with above-average crime statistics, and ground-floor living brings usual security and privacy considerations. These factors are balanced by good transport links and strong regeneration in Stratford, which support rental demand and owner-occupier convenience.
This property suits a first-time buyer or investor who wants a well-presented, move-in-ready flat with immediate access to Stratford’s amenities, while allowing for modest energy upgrades and security improvements to boost long-term value.
1 bedroom flat for sale in GURNEY ROAD, Maryland, London, E15 — £265,000 • 1 bed • 1 bath • 484 ft²
1 bedroom apartment for sale in Cruikshank Road, Stratford, E15 — £325,000 • 1 bed • 1 bath • 441 ft²
2 bedroom flat for sale in Park Road, Stratford, London, E15 — £375,000 • 2 bed • 1 bath • 648 ft²
1 bedroom flat for sale in Stork Road, London, E7 — £350,000 • 1 bed • 1 bath • 574 ft²
1 bedroom flat for sale in Vicarage Lane, Stratford, London, E15 — £250,000 • 1 bed • 1 bath • 476 ft²
1 bedroom flat for sale in Keogh Road, Maryland, London, E15 — £315,000 • 1 bed • 1 bath • 533 ft²










































































































































































































































