Compact, chain-free flat with loft potential near transport and amenities.
Chain free one-bedroom first-floor flat with share of freehold
A chain-free, first-floor one-bedroom apartment in Forest Gate offering a practical entry into London ownership. The property sits within a mid-terrace building dating from 1900–1929 and comes with a very long lease and share of freehold, which reduces long-term ownership costs and uncertainty.
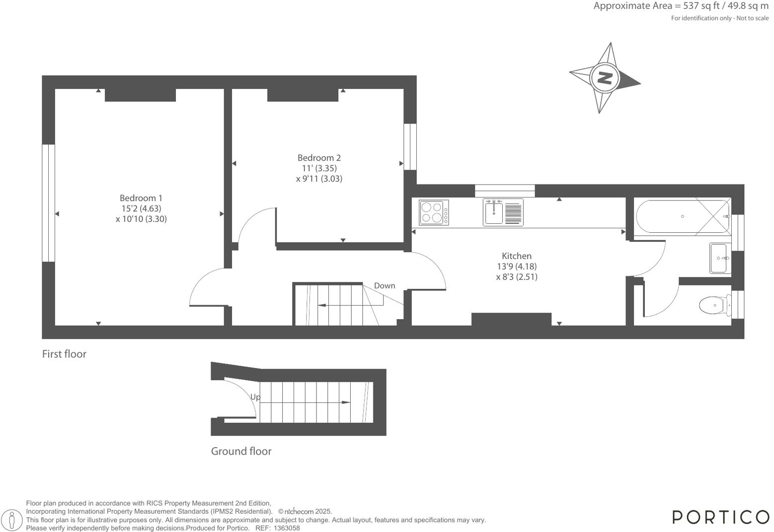
The flat measures about 537 sq ft and includes a bedroom, bathroom, and a living space currently used as a second bedroom. There is potential to extend into the loft subject to planning permission, which could add valuable space or increase rental yield. The compact kitchen and general finish are functional but show signs of wear, so modest updating would add immediate value.
Notable positives: excellent mobile signal, fast broadband, nearby shops, restaurants and several good local primary and secondary schools. Also offered separately is the ground-floor garden flat; buying both together could create a combined rental yield or allow conversion back to a house.
Material considerations: the area records above-average crime and the building is solid-brick with assumed no cavity insulation, so buyers should factor possible insulation or energy-efficiency improvements into budgets. The property is sold chain-free with 948 years remaining on the lease, but it will suit buyers who are comfortable with some updating rather than a turnkey move-in.
1 bedroom flat for sale in Romford Road, Forest Gate, London, E7 — £280,000 • 1 bed • 1 bath • 510 ft²
1 bedroom apartment for sale in Odessa Road, Forest Gate, E7 — £265,000 • 1 bed • 1 bath • 485 ft²
1 bedroom flat for sale in Cann Hall Road, London, E11 — £259,950 • 1 bed • 1 bath
1 bedroom flat for sale in Cemetery Road, London, E7 — £275,000 • 1 bed • 1 bath • 401 ft²
1 bedroom apartment for sale in Heyworth Road, Stratford, E15 — £350,000 • 1 bed • 1 bath • 468 ft²
1 bedroom flat for sale in Shirley Road, LONDON, London, E15 — £250,000 • 1 bed • 1 bath • 508 ft²






















































