Ready-to-build 0.25 acre plot with planning and phosphate credits paid.
Full planning permission for a detached two‑storey home (Ref: 24/00666/FUL)
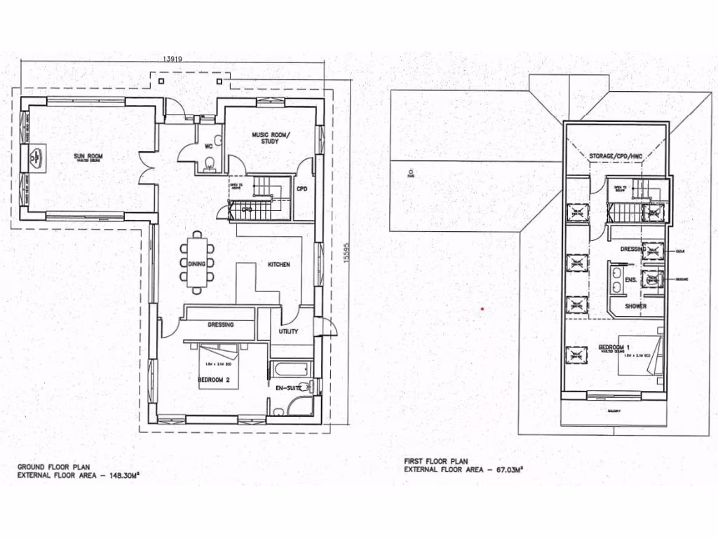
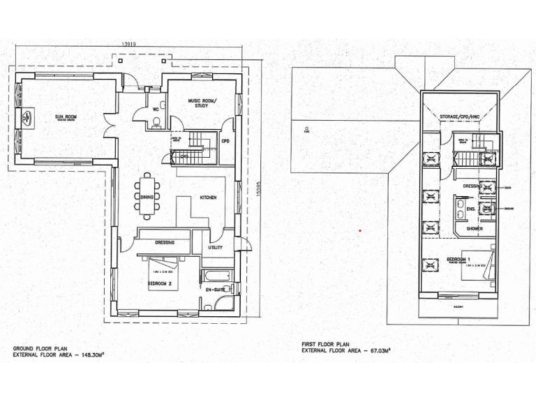
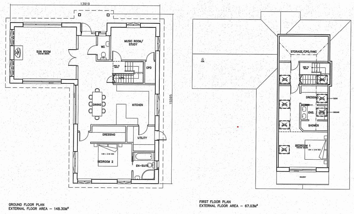
A rare ready-to-build residential plot on the southern edge of West Camel, offered with full planning permission (Ref: 24/00666/FUL) for a detached two‑storey dwelling (2,318 sq ft GEA) plus a substantial garage/store (820 sq ft). The 0.25‑acre freehold site is largely prepared for development: phosphate credits have been purchased and certified (27 Jan 2025), an initial entrance is in place and electricity, mains drainage and BT ducting are on or adjacent to the site.
This location will suit self‑builders, small developers or an owner‑builder seeking a large, quiet plot in a village setting with good regional links. The A303 is 0.5 miles away for fast road access; Yeovil, Sherborne and mainline rail stations are within reasonable driving distance. The plot sits in an area of very low crime and very low flood risk, with fast broadband nearby and an established local community.
Buyers should note practical conditions: the Community Infrastructure Levy (CIL) is payable if built by a developer (self‑build exemption applies); the buyer must enter a Deed of Covenant with West Camel Parish Council to comply with the Section 106 agreement. Water mains are close by but not confirmed as on‑site. Planning is for one dwelling only — any alternative schemes would require fresh consent.
Overall this is a substantial, well‑served plot with planning cleared and mitigation in place, reducing common delays to construction. It presents a straightforward route to build a large bespoke home or a considered small development, subject to the S106 covenant and CIL implications for non self-build purchasers.
Plot for sale in East Coker, Yeovil, BA22 — £400,000 • 1 bed • 1 bath
Plot for sale in East Coker, Yeovil, BA22 — £500,000 • 1 bed • 1 bath
Plot for sale in Little Marston Road, Marston Magna, Yeovil, Somerset, BA22 — £535,000 • 1 bed • 1 bath
Plot for sale in Lot 1 at Summerleaze, Marshalls Elm, Street, BA16 — £400,000 • 1 bed • 1 bath
Plot for sale in Whitechurch Lane, Yenston, Henstridge, BA8 — £400,000 • 1 bed • 1 bath • 3422 ft²
Plot for sale in Bancombe Road, Somerton, Somerset, TA11 — £175,000 • 5 bed • 4 bath • 2805 ft²


























