**Standout Features:**
- Unique development plot of 2.8 acres with Class Q planning permission
- Located on the edge of a village with serene countryside views
- Excellent communication links and services available
- Secluded private drive access
**Potential Concerns:**
- Requires connection to mains water and electricity, as well as drainage
- Planning for a new design may take time to finalize
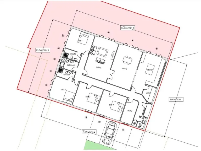
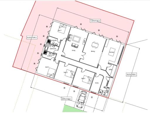
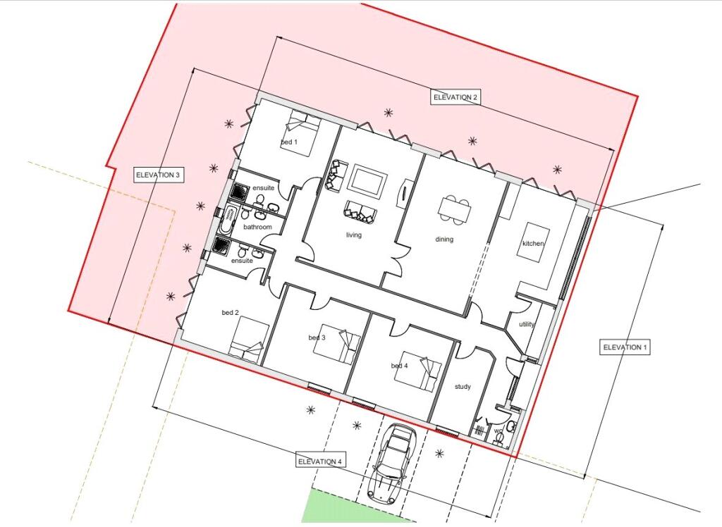
This impressive 2.8-acre development plot at the edge of a picturesque village presents a rare opportunity for potential homebuyers and investors. Class Q planning permission has been granted for the conversion of an existing agricultural barn into a custom-built four-bedroom residence, allowing for modern design elements and personal touches. This is a tranquil setting surrounded by beautiful Somerset countryside, making it ideal for those seeking a peaceful lifestyle while remaining connected to urban amenities.
The property offers excellent access to major road networks, and the nearby villages provide essential amenities, including schools, health services, and recreational areas. With ultrafast broadband and good mobile coverage, this plot caters to both remote and active lifestyles.
Although the land requires connections for water, electricity, and drainage, this presents a chance for prospective buyers to integrate their preferred systems. With its combination of a substantial plot, favorable planning credentials, and a highly desirable location, this property is likely to attract significant interest, so act quickly to secure your rural retreat!
Land for sale in Little Marston Road, Marston Magna, Yeovil, Somerset, BA22 — £535,000 • 1 bed • 1 bath
Land for sale in Newbury, Near Frome - buildings for conversion, BA11 — £550,000 • 1 bed • 1 bath
Plot for sale in Dinnington, TA17 — £350,000 • 1 bed • 1 bath • 4753 ft²
Plot for sale in South Mead, West Camel, Yeovil, BA22 — £195,000 • 1 bed • 1 bath • 3138 ft²
Land for sale in South View, West Camel Road, Queen Camel, Yeovil, BA22 — £650,000 • 1 bed • 1 bath
Land for sale in Ivythorn Lane, Nr. Street, Somerset, BA16 — £225,000 • 1 bed • 1 bath






















