**Standout Features:**
- Large development plot of approximately 1.5 acres.
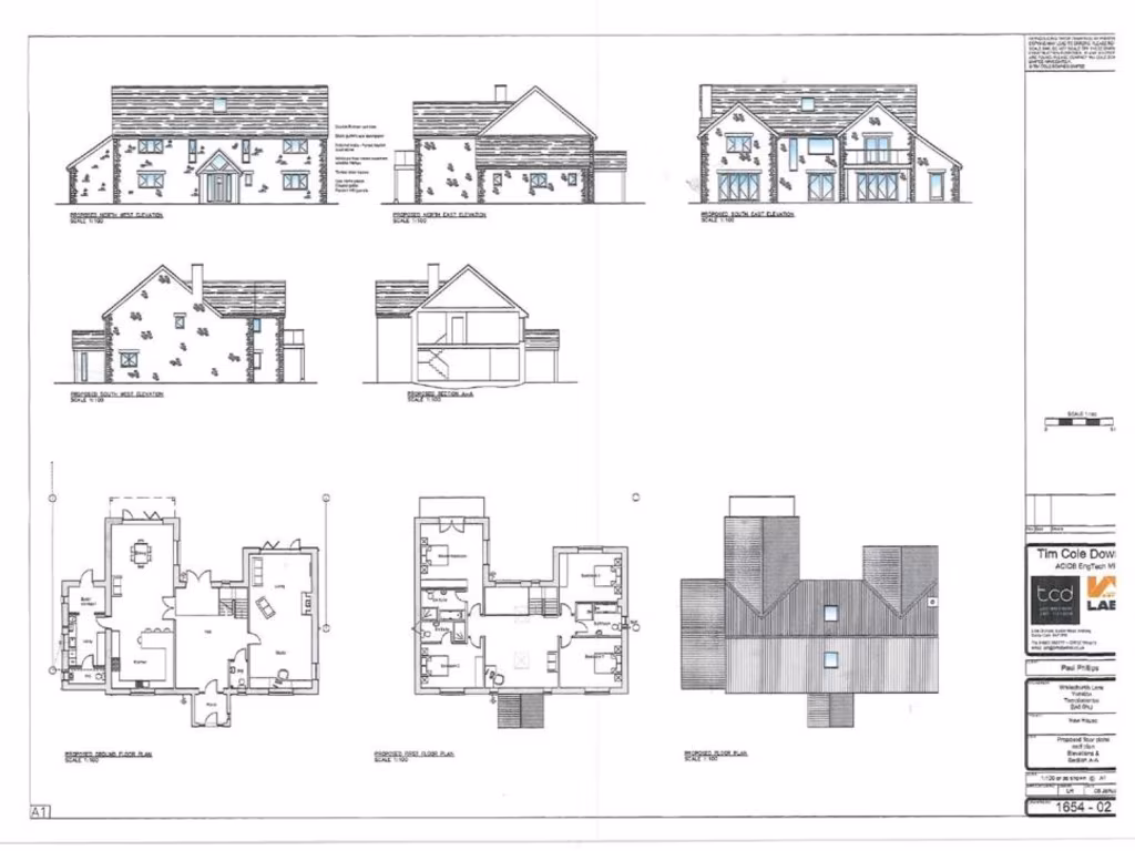
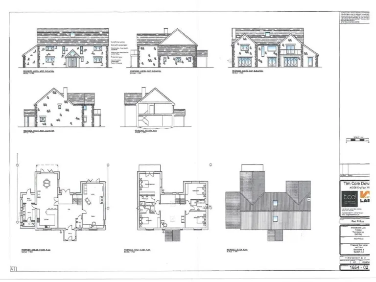
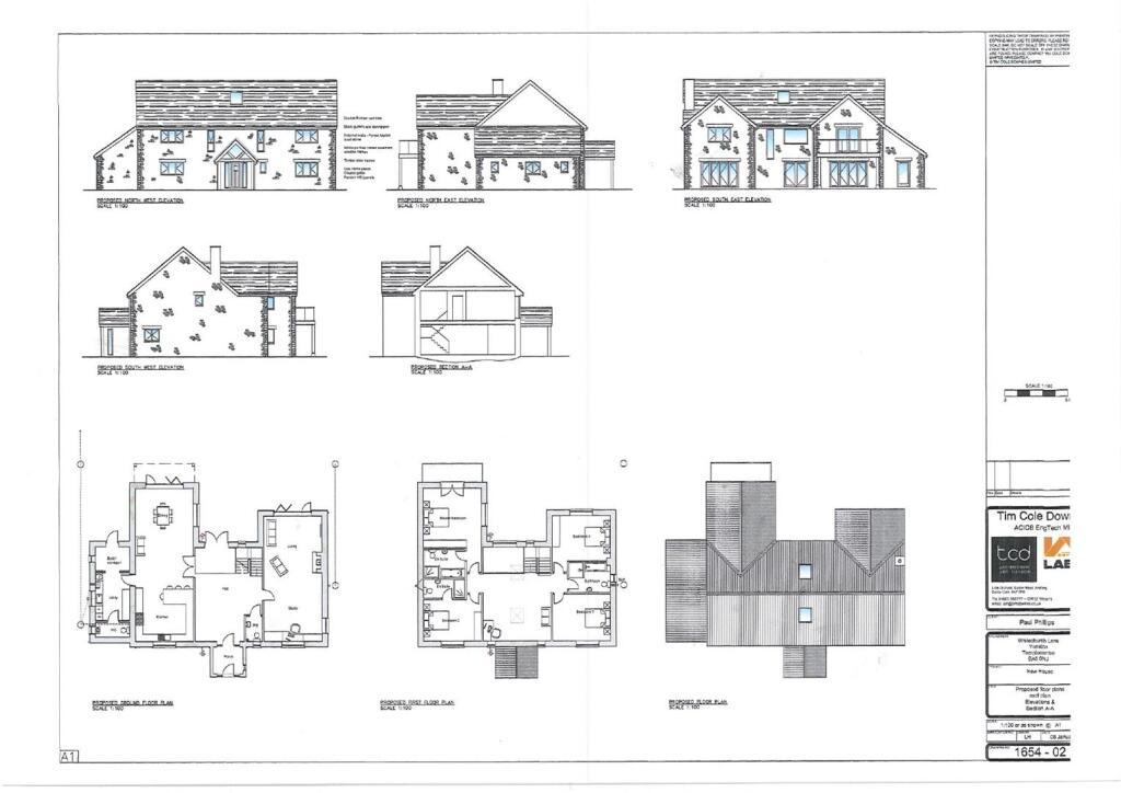
- Planning permission granted for a single detached dwelling (3,422 sq ft).
- Detached garage of around 1,200 sq ft with potential for upstairs storage.
- Rural setting with stunning views over the Blackmore Vale.
- Chain-free opportunity for self-build enthusiasts.
**Summary Description:**
Discover this remarkable building plot located in the peaceful hamlet of Yenston, Somerset. Covering an expansive 1.5 acres, this property offers an incredible canvas for your dream home with outline planning permission already in place for a spacious detached dwelling of over 3,000 sq ft. The proposed design includes a stunning kitchen/dining/living area with bi-fold doors, a master bedroom with ensuite and Juliet balcony, plus three additional bedrooms and bathrooms—perfect for family living.
Set against a backdrop of picturesque countryside, you'll enjoy ample outdoor space they can transform into a beautiful garden or recreational area. The sizeable detached garage adds further value and versatility to this unique opportunity. Ideal for those looking to escape the hustle and bustle of city life, this plot is positioned to offer tranquillity without sacrificing convenience, with nearby excellent schooling options and easy access to major roadways and Sherborne, Wincanton, and Yeovil's amenities. Don’t miss out on the chance to realize your vision in this idyllic location—explore the potential today!
Detached house for sale in Cabbage Lane, Horsington, Somerset, BA8 — £300,000 • 1 bed • 1 bath
Plot for sale in South Mead, West Camel, Yeovil, BA22 — £195,000 • 1 bed • 1 bath • 3138 ft²
Land for sale in Shute Lane, Bruton., BA10 — £295,000 • 1 bed • 1 bath • 2744 ft²
Plot for sale in Little Marston Road, Marston Magna, Yeovil, Somerset, BA22 — £535,000 • 1 bed • 1 bath
Plot for sale in Shute Lane, Bruton, BA10 — £295,000 • 4 bed • 4 bath • 2185 ft²
Plot for sale in Church Street, West Stour, Gillingham, SP8 — £400,000 • 1 bed • 1 bath • 2690 ft²






























