**Standout Features:**
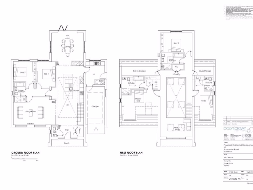
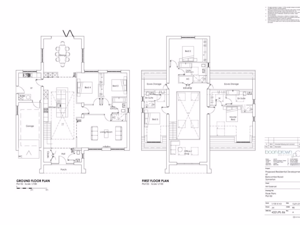
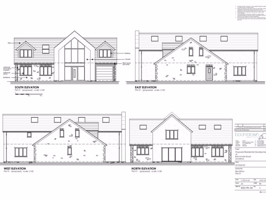
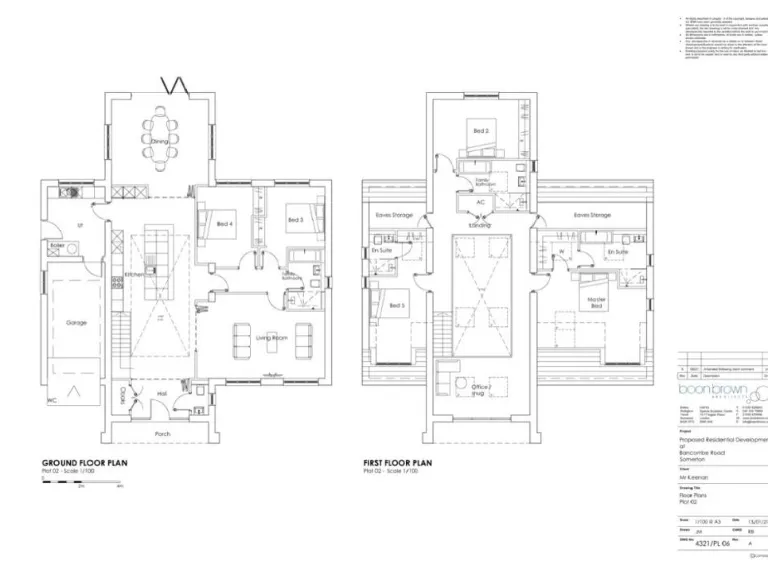
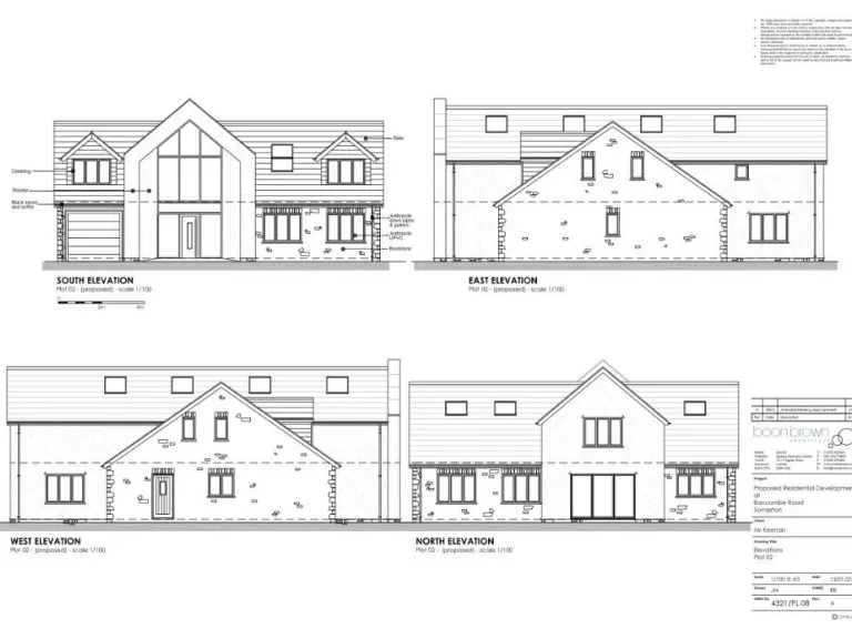
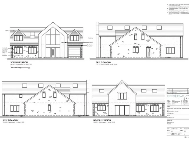
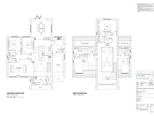
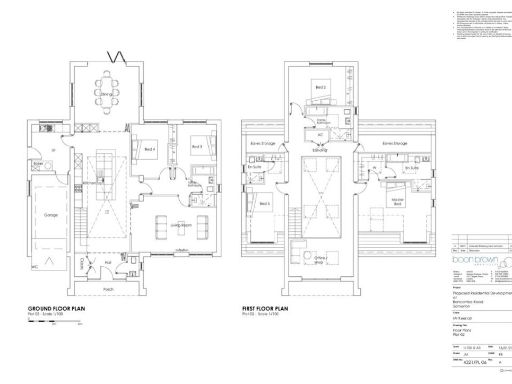
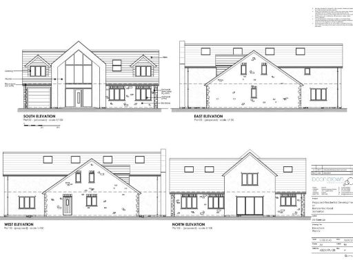
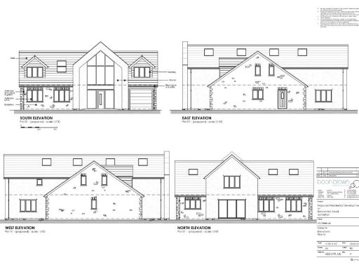
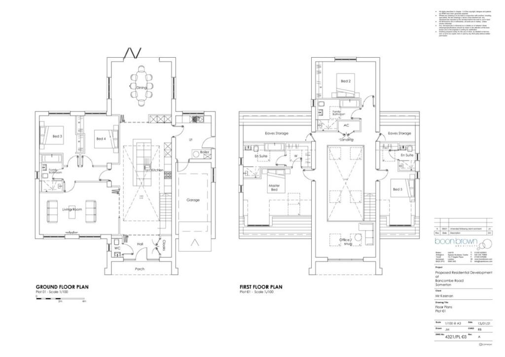
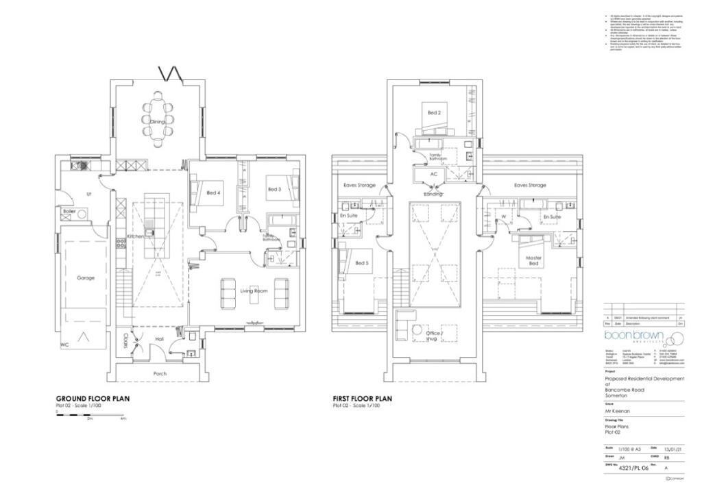
- Large building plot with full planning consent (Ref: 21/02136/REM) for a contemporary five-bedroom detached home.
- Expected Gross Development Value (GDV) of £675,000 - £700,000.
- Located within walking distance to the charming Somerton High Street.
- Excellent mobile signal and average broadband speeds.
- Affluent area with a strong sense of community and excellent local amenities.
**Potential Concerns:**
- As a building plot, there are the typical considerations regarding construction, including potential costs and timeframes.
- No existing structures mean limited immediate onsite features or landscaping.
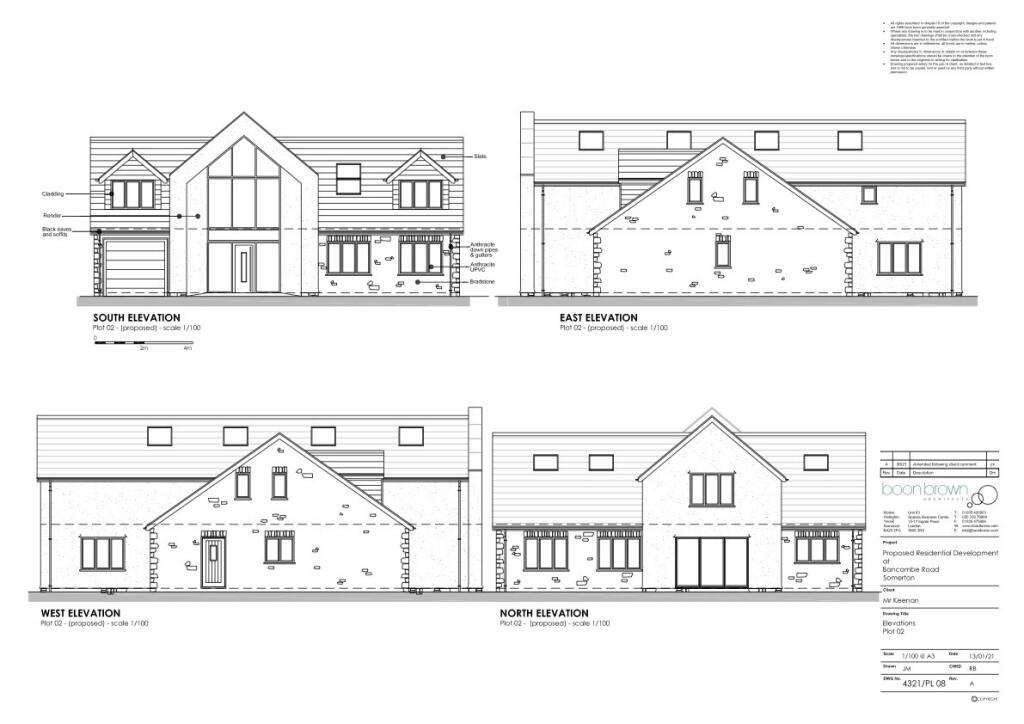
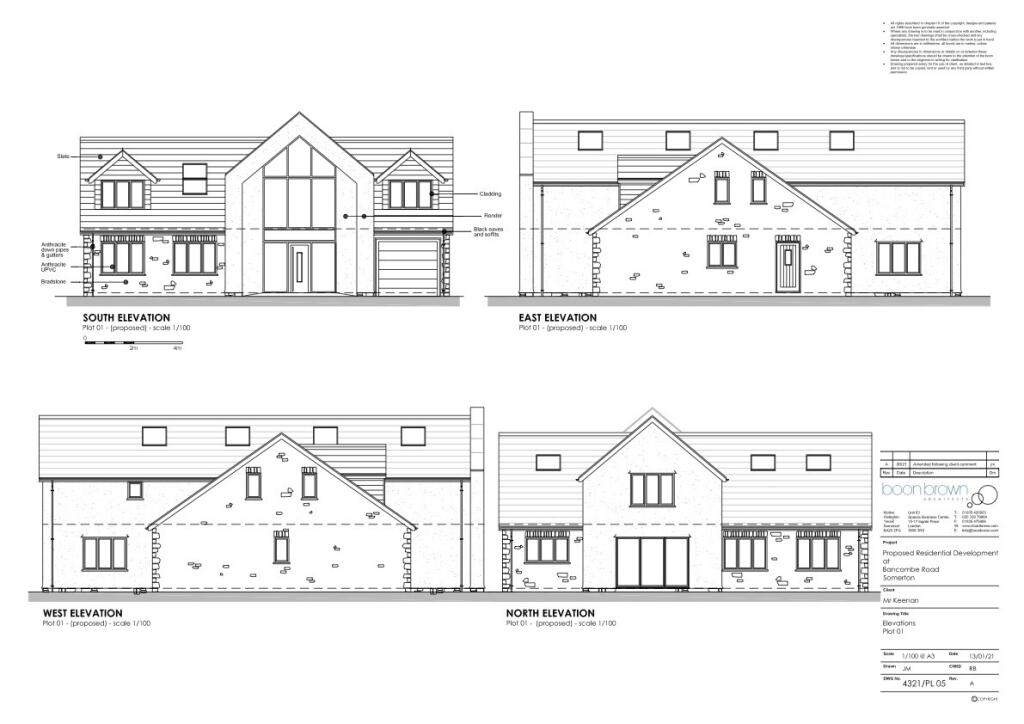
Unlock a bespoke living experience with this prime building plot in the desirable market town of Somerton. With full planning permission in place for a stunning five-bedroom home, this is an exceptional opportunity not to be missed. Located just a short walk from the town center, you’ll enjoy access to a variety of independent shops, cafés, and a vibrant community atmosphere. The thoughtful contemporary design features large windows and a two-story garage, offering a canvas for personalization and unique architecture.
This plot provides an enticing proposition for families or investors alike, with nearby successful development sales reinforcing its appeal in this burgeoning area. The potential Gross Development Value indicates a lucrative return, particularly given the high demand for spacious, quality homes in Somerset. Opportunities like this are rare; act quickly to secure your future home or investment in this thriving location.
Plot for sale in Bancombe Road, Somerton, Somerset, TA11 — £175,000 • 5 bed • 4 bath • 2805 ft²
Land for sale in Somerton Road, Street, BA16 — £105,000 • 3 bed • 2 bath
Bungalow for sale in Northfield, Somerton, TA11 — £100,000 • 1 bed • 1 bath • 1700 ft²
4 bedroom terraced house for sale in Watts Quarry Lane, Somerton, TA11 — £550,000 • 4 bed • 3 bath • 2451 ft²
Land for sale in Over Stratton Road, Over Stratton, TA13 — £250,000 • 1 bed • 1 bath • 2734 ft²
Plot for sale in South Mead, West Camel, Yeovil, BA22 — £195,000 • 1 bed • 1 bath • 3138 ft²






































