**Standout Features:**
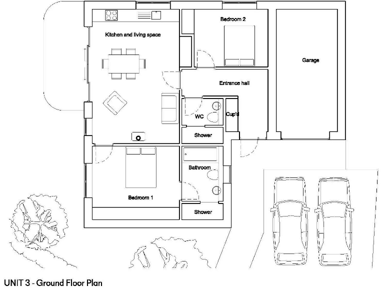
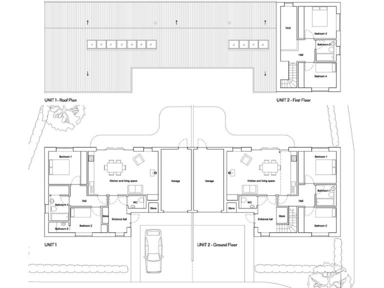
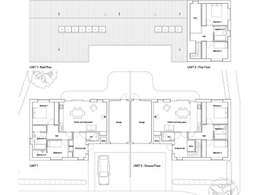
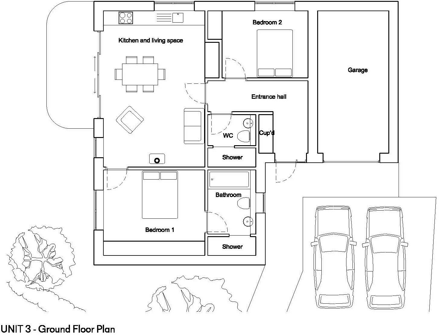
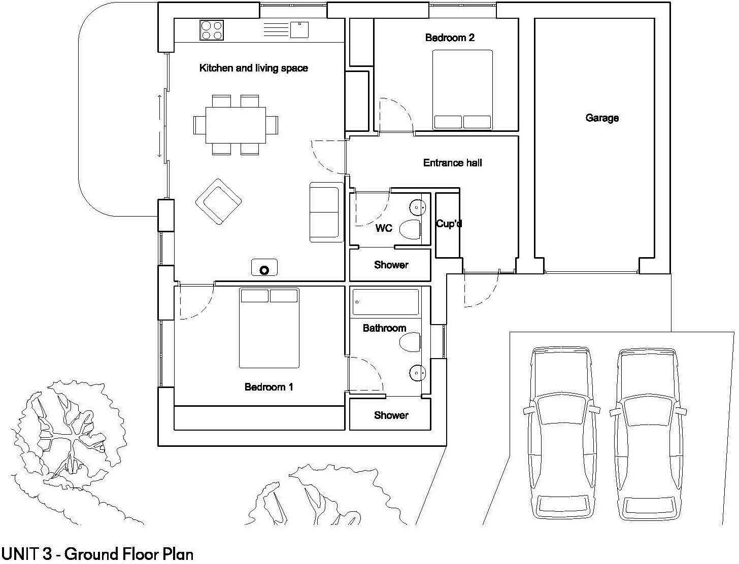
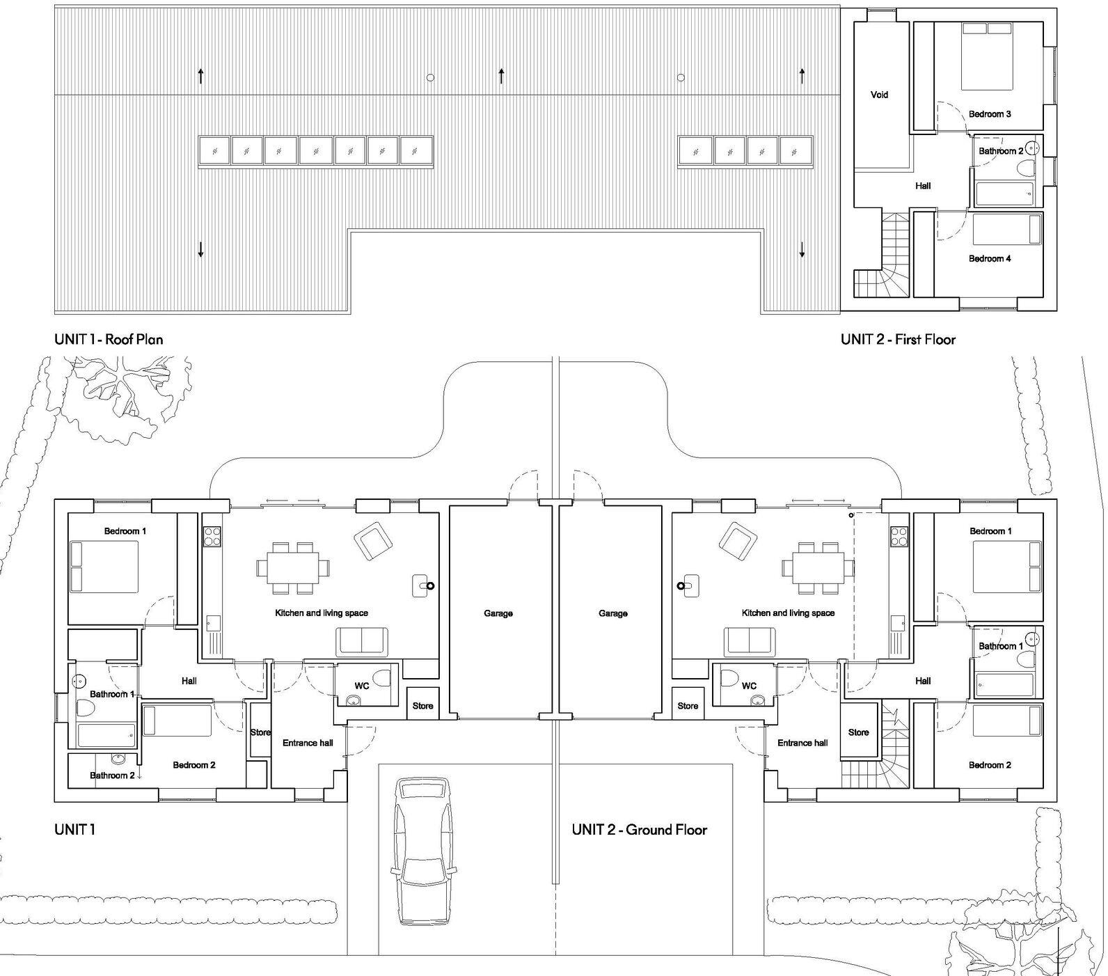
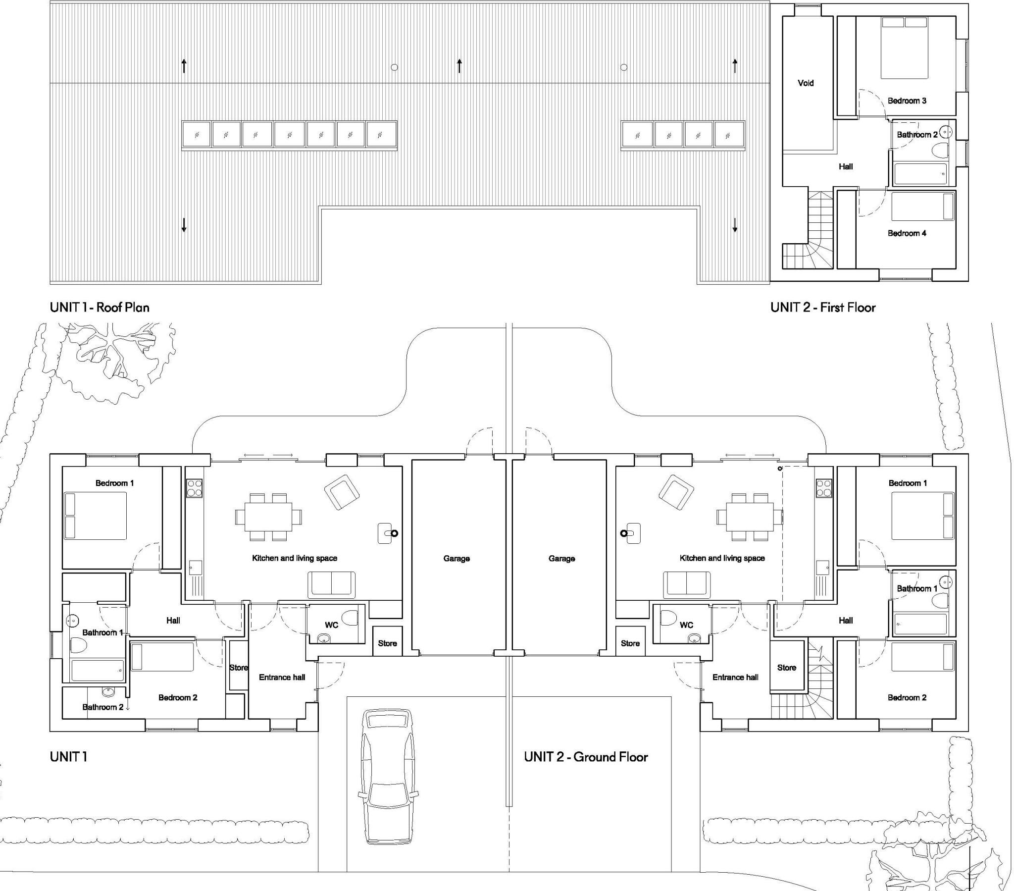
- **Planning Permission**: Granted for three new dwellings—a link-detached bungalow, a link-detached house, and a detached bungalow.
- **Expansive Plot**: Approximately 0.31 acres (0.11 hectares) of land in a serene rural setting.
- **Chain-Free**: Immediate occupancy available without additional delays.
- **Ideal for Investors/Developers**: Great potential for new builds in a growing hamlet area.
**Concise Summary:**
Nestled in the picturesque countryside of Nettlestead, just minutes from Somersham, this expansive development site presents an exciting opportunity for builders and investors. Spanning approximately 0.31 acres, planning permission has been granted for three residences: a link-detached bungalow, a link-detached chalet house, and a detached bungalow—ideal to meet current housing demand.
The site is enveloped by lush pastures and rural tranquility, yet it remains conveniently close to local amenities, including a pub, primary school, and recreational facilities. While the land holds great potential, please note that there is also a redundant underground fuel storage tank on-site, which will require attention. This unique opportunity offers not only a promising investment but also a lifestyle in affluent countryside living. Act quickly, as parcels like this are hard to come by in developing areas!
Residential development for sale in Between Nettlestead & Somersham, Nr Ipswich, Suffolk, IP8 — £250,000 • 1 bed • 1 bath • 2985 ft²
Land for sale in Two Unit Rural Development Site, Martins Lane, Clopton, IP13 — £427,500 • 1 bed • 1 bath • 28314 ft²
Land for sale in Nettlestead, Ipswich, IP8 — £375,000 • 1 bed • 1 bath
Land for sale in 13.57 acres - land at Somersham, Nr Ipswich, Suffolk, IP8 — £195,000 • 1 bed • 1 bath
Land for sale in Old London Road, Copdock, IP8 — £735,000 • 1 bed • 1 bath
Land for sale in 8.00 acres - land at Somersham, Nr Ipswich, Suffolk, IP8 — £100,000 • 1 bed • 1 bath






























































































