Spacious plot with serious renovation and development potential.
- Approximately 1 acre south-west-facing private plot with mature trees
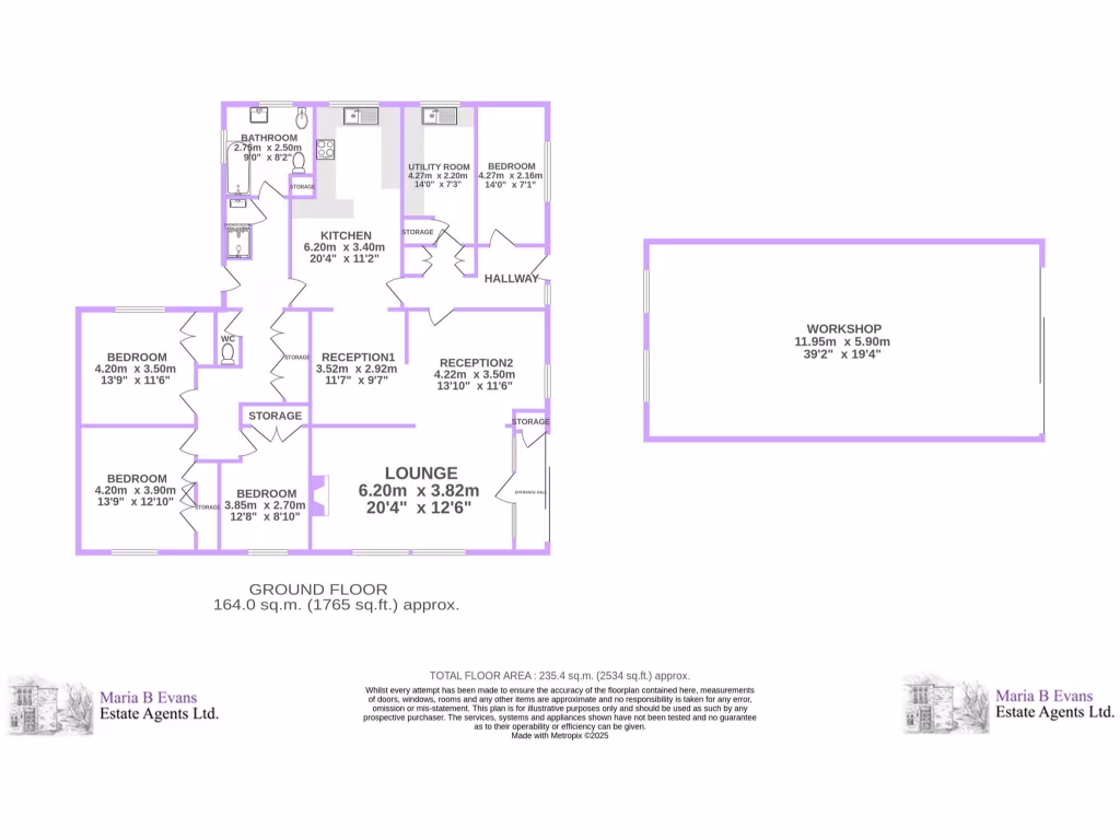
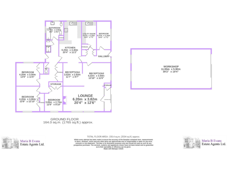
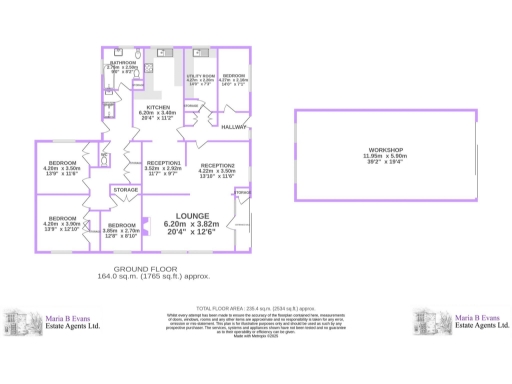
- Large detached bungalow: 2,534 sq ft and four bedrooms
- Workshop with power and light; potential conversion subject to consents
- Development opportunity for 1–2 dwellings, planning required
- Property needs full renovation throughout; significant works likely
- EPC rating F and oil central heating throughout
- Some trees protected by Tree Preservation Orders; restrictions possible
- Council tax Band F (expensive)
A rare one-acre plot in Mawdesley surrounds a substantial 2,534 sq ft detached bungalow offering immediate privacy and long-term potential. The south-west-facing lawns, mature hedges and wooded pathways create a tranquil country setting close to village amenities and good local schools.
The house provides generous living space with a breakfast kitchen, separate utility, living-dining room and four bedrooms, plus a four-piece bathroom, separate shower room and WC. A powered workshop to the rear offers practical storage or conversion potential. The vendor advises the plot could accommodate one to two additional dwellings, subject to planning permission.
Important: the property requires a full renovation throughout, has an EPC rating of F and is warmed by oil heating. Several mature trees are protected by Tree Preservation Orders, which may limit works. Council tax is in a higher band. These material issues mean the home suits a buyer prepared to invest in refurbishment or an investor/developer seeking a project with substantial plot value.
For a purchaser willing to renovate, the site delivers considerable upside — a large, private plot in a prosperous countryside setting with scope to improve energy performance, reconfigure accommodation or pursue planning for additional dwellings.
3 bedroom bungalow for sale in Hall Lane, Mawdesley , L40 — £430,000 • 3 bed • 2 bath • 1905 ft²
3 bedroom house for sale in Weavers Fold Farm, Weavers Folds Bretherton PR26 9AP, PR26 — £450,000 • 3 bed • 1 bath • 1340 ft²
2 bedroom detached house for sale in Plover Green, Bluestone Lane, Mawdesley, L40 — £650,000 • 2 bed • 2 bath • 1475 ft²
6 bedroom detached house for sale in Hall Lane, Mawdesley, Ormskirk, L40 2QY, L40 — £1,400,000 • 6 bed • 4 bath • 3852 ft²
5 bedroom detached bungalow for sale in Church Lane, Lydiate, L31 — £795,000 • 5 bed • 1 bath
4 bedroom detached house for sale in Bradshaw Lane, Mawdesley L40 — £780,000 • 4 bed • 2 bath • 2375 ft²










































