Single-floor living with large garden and modern energy upgrades.
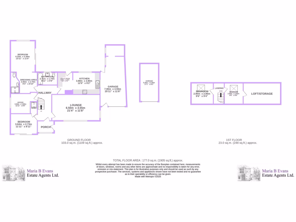
Detached bungalow on approximately 0.3 acre plot
Set on about 0.3 acres in the sought-after village of Mawdesley, this detached three-bedroom bungalow combines single-floor living with useful loft rooms and generous outdoor space. The house is well-equipped for modern life — solar panels, Wi‑Fi controlled TRVs and an EV charging point — which help reduce running costs and add convenience. The layout suits those seeking a comfortable family home or an easy-to-manage country base with ample parking and a separate garage.
Internally the bungalow offers a large reception room to the front, a kitchen-diner with adjoining utility, and a master bedroom with a wet-room style en suite. A second double bedroom has its own shower room and there is a third single bedroom currently used as a study. A loft area is divided into two rooms and an extra storage zone, but access is via a paddle ladder and headroom/finish is basic.
The outdoor space is low-maintenance and east-facing with patio paving, cottage-style borders, a wildlife area and mature trees. A sweeping gravel driveway and separate garage provide extensive parking for several vehicles. The solar panels produce roughly £600 per year and significantly contribute to hot-water heating in summer months.
Buyers should note practical points before viewing: the loft rooms have limited access and basic lighting, the property sits in a medium flood-risk zone, and council tax sits above average. Overall this is a spacious, energy-efficient bungalow on a large plot, suited to families or buyers wanting single-storey living with potential to improve the loft and personalise finishes.
2 bedroom detached house for sale in Plover Green, Bluestone Lane, Mawdesley, L40 — £650,000 • 2 bed • 2 bath • 1475 ft²
5 bedroom detached house for sale in Asland Drive, Mawdesley L40 — £650,000 • 5 bed • 3 bath • 2238 ft²
3 bedroom detached bungalow for sale in Sherford, Blue Stone Lane, L40 2RH, L40 — £489,950 • 3 bed • 1 bath • 1007 ft²
3 bedroom semi-detached bungalow for sale in Moss Lane, Burscough, L40 4BA, L40 — £300,000 • 3 bed • 1 bath • 1329 ft²
3 bedroom detached bungalow for sale in High Barn, Wood Lane, Heskin, PR7 5NU, PR7 — £850,000 • 3 bed • 2 bath • 2500 ft²
4 bedroom detached bungalow for sale in Hillcrest Drive, Scarisbrick, Ormskirk, L40 — £325,000 • 4 bed • 2 bath • 1131 ft²






































































































































