Permissioned, freehold development plot with strong transport links and advertising exposure..
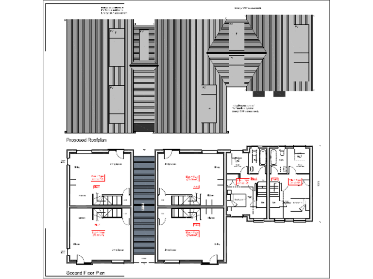
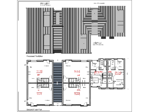
Full Planning Permission for nine units granted (Planning No. 2024/01307/FUL)
Freehold cleared plot, ready to build with no Section 106 obligations
0.2 acre level parcel; compact urban infill footprint
High visibility from A57 Sankey Way — strong advertising exposure
Mixed 1/2/3-bed unit mix; suited to PRS or quick sale strategy
High flood risk — mitigation will affect costs and insurance
Limited private garden space; communal amenity modest in size
VAT applicable to asking price; AML ID and funding checks required
This cleared 0.2-acre freehold plot benefits from Full Planning Permission (2024/01307/FUL) for nine residential units, making it a fast-delivery opportunity for developers or investors. The scheme includes a mix of 1-, 2- and 3-bed homes, landscaped communal space, and allocated off-street parking with direct access from Hood Lane. The site is highly visible from the A57 Sankey Way and sits close to leisure and retail amenities, good road links and rail connections, supporting strong rental or resale demand.
Key selling points include the absence of Section 106 obligations, a ready-to-build cleared site, and a modest asking price relative to a staged development sale. The plot is level and compact, suited to a small urban infill scheme aimed at buy-to-let or quick private-sale units. Local services and several well-rated schools are within easy reach, and the immediate area is described as affluent with low crime rates.
Buyers should note material constraints: the site is in a high flood-risk area, which will influence design, insurance costs and construction specifications. The development footprint is small with limited private garden space for some units, and exposure to high passing traffic means noise mitigation may be required. VAT is applicable to the asking price and standard AML identification and funding verification will be required on completion.
Overall, this is a compact, permissioned development parcel that appeals to builders and investors seeking a short lead-time project in a well-connected Warrington location. Practical considerations around flood mitigation, sound attenuation and limited private amenity should be budgeted into proposals to ensure deliverability and marketability.
House for sale in Land Behind The Rose Inn, Hood Lane, Warrington, WA5 1EJ, WA5 — £350,000 • 1 bed • 1 bath • 6467 ft²
Residential development for sale in Site at, Howley Lane, Warrington, Cheshire, WA1 2DN, WA1 — £750,000 • 1 bed • 1 bath • 6000 ft²
Land for sale in Land at Stockdale Drive, Warrington, WA5 — £250,000 • 1 bed • 1 bath
Residential development for sale in Old Winwick Quay, Off Mill Lane, Warrington, WA2 8RL, WA2 — £500,000 • 1 bed • 1 bath • 6187 ft²
Light industrial facility for sale in Units 1-3 , Meridian 6, Bolton Road, Ashton-in-makerfield, WN4 8AB, WN4 — POA • 1 bed • 1 bath • 990 ft²
Land for sale in Land and Buildings at Chester Road, Warrington, WA4 6BE, WA4 — £500,000 • 1 bed • 1 bath


















