Large site with existing footings and strong transport access for developers.
Freehold parcel in Old Winwick Quay, WA2 8RL
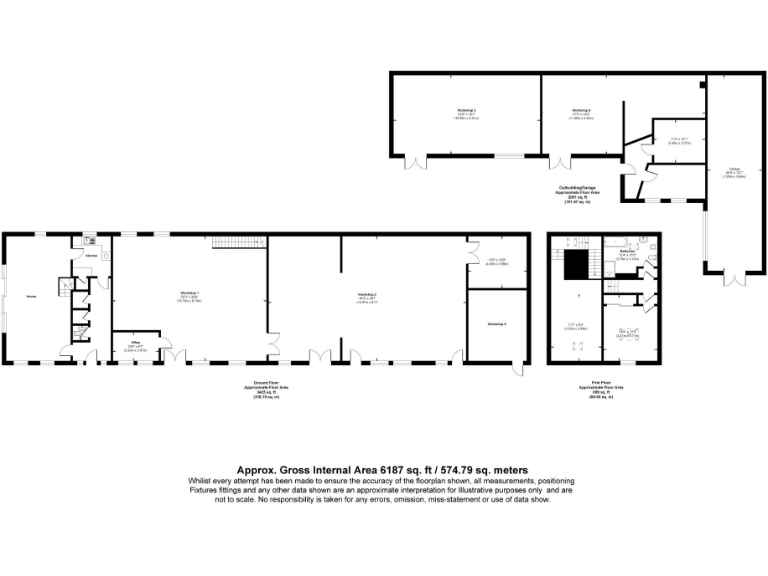
A prominent development parcel north of Warrington town centre, offered freehold with footings in place for a previous scheme. The site sits within Old Winwick Quay, close to J9 of the M62 and major retail parks, providing strong connectivity for future uses subject to planning. Existing features include landscaped communal grounds, private parking, separate garages/outbuildings and barn-conversion character across the terrace.
This opportunity will suit an investor or developer able to secure the relevant planning consents. The plot is very large with a building footprint around 6,187 sq ft and benefits from excellent mobile signal and immediate road links, but broadband speeds are average and the local area scores high on deprivation and crime — factors to consider for residential end-uses or lettings.
Practical advantages include freehold tenure and the presence of footings on site, which could reduce initial build cost and programme. Material considerations: the site requires planning permission for change of use or redevelopment, and an on-site inspection is needed to confirm ground conditions, services and remaining works. Offers are invited in excess of £500,000.
Land for sale in Land and Buildings at Chester Road, Warrington, WA4 6BE, WA4 — £500,000 • 1 bed • 1 bath
Residential development for sale in Site at, Howley Lane, Warrington, Cheshire, WA1 2DN, WA1 — £750,000 • 1 bed • 1 bath • 6000 ft²
Land for sale in Land At South East Of Manchester Road, Warrington, WA3 6JZ, WA3 — £1,050,000 • 1 bed • 1 bath
House for sale in Land Behind The Rose Inn, Hood Lane, Warrington, WA5 1EJ, WA5 — £350,000 • 1 bed • 1 bath • 6467 ft²
5 bedroom detached house for sale in Salisbury Street, Warrington, Cheshire, WA1 3AS, WA1 — £425,000 • 5 bed • 2 bath • 2200 ft²
Land for sale in Land At South East Of Manchester Road, Warrington, WA3 6JZ, WA3 — £1,100,000 • 1 bed • 1 bath


























































































