Spacious restored farmhouse on 1.1 acres with separate two-bed annexe and vaulted kitchen.
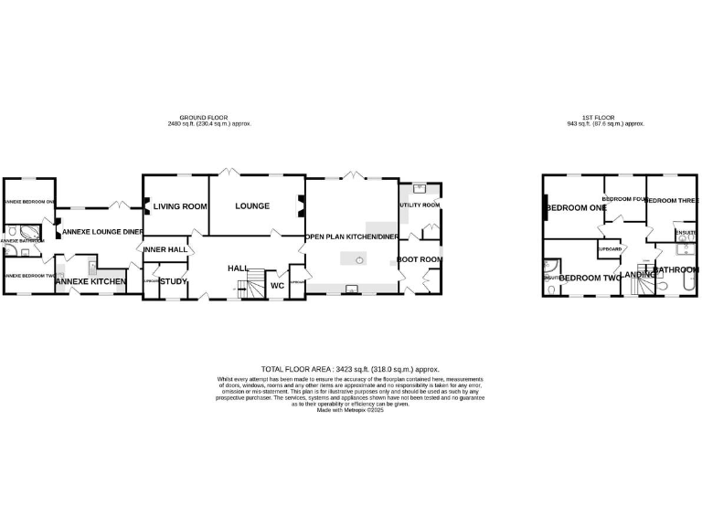
Six bedrooms plus two-bedroom self-contained annexe
Set within about 1.1 acres in a quiet hamlet, this recently restored farmhouse combines generous family living with separate annexe accommodation. The main house provides multiple reception rooms, a vaulted open-plan kitchen/diner and four principal bedrooms, two with en-suites. The adjoining two-bedroom annexe has its own kitchen, lounge/diner and bathroom — ideal for extended family, long-stay guests or lettings.
Practical comforts include underfloor heating, a modern boiler (LPG bulk supply) and fast broadband with excellent mobile signal. Mature lawns, an orchard area and extensive front parking give flexible outdoor space for children, pets and vehicles. The property sits in attractive rural surroundings with field views to front and rear and no flood risk.
Considerations: the home's EPC rating is D and the heating runs on bulk LPG, which may be costlier than mains gas. The location is in a remoter, farming community with limited local services and higher area deprivation indices, so daily amenities and schools require a short drive. The plot and size invite ongoing maintenance despite the recent restoration.
For families seeking space and flexibility, this farmhouse offers substantial living areas and an independent annexe in a peaceful countryside setting. It will suit buyers wanting low immediate renovation need but ready to manage rural running costs and upkeep of a large plot.
5 bedroom farm house for sale in Gayton, PE32 — £1,100,000 • 5 bed • 4 bath • 5895 ft²
3 bedroom country house for sale in County School, North Elmham, NR20 — £850,000 • 3 bed • 2 bath • 812 ft²
6 bedroom detached house for sale in St. Johns Lane, Beachamwell, Swaffham, Norfolk, PE37 — £1,000,000 • 6 bed • 4 bath • 5447 ft²
4 bedroom farm house for sale in Black Horse Road, Clenchwarton, KING'S LYNN, PE34 — £699,000 • 4 bed • 3 bath • 1486 ft²
4 bedroom detached house for sale in Idyllic Four Bedroom, Victorian Farm House, NR19 — £600,000 • 4 bed • 3 bath • 2641 ft²
5 bedroom character property for sale in Hill Farm, Oxwick, Fakenham, NR21 — £750,000 • 5 bed • 2 bath • 1669 ft²






























































































































































































































































































































