EX22 7TL - 4 bed village corner family home in Tuckers Park, EX22 7TL

View on Property Piper

4 bedroom house for sale in Tuckers Park, Bradworthy, Holsworthy, EX22

Summary - 8 TUCKERS PARK BRADWORTHY HOLSWORTHY EX22 7TL

4 bed 2 bath House

Four double bedrooms, large garden and countryside views in sought-after Bradworthy..
Four double bedrooms including ground-floor bedroom suite
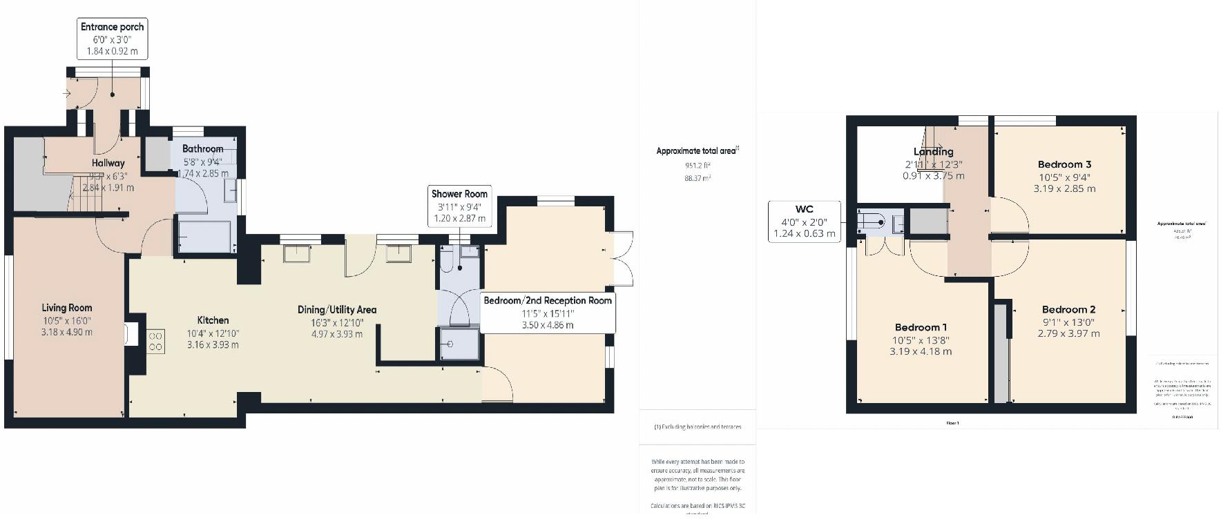
Set on a generous corner plot at the end of a quiet cul-de-sac in Bradworthy, this four-double-bedroom home offers flexible family living and far-reaching views over neighbouring farmland. The property was extended in the mid-20th century and now provides a large ground-floor bedroom suite with separate access, useful for multigenerational living or potential annexe use with minor alterations.

Internally there are two reception rooms, a dining/utility area with open-plan potential, two bathrooms plus a ground-floor cloakroom. Heating is by boiler and radiators with dual fuel (mineral and wood) and the house benefits from double glazing, although install dates are unknown. The plot includes sizable front and rear gardens, a shed and off-street parking.

Practical considerations: broadband speeds are slow, and the local primary school listed requires improvement. The property is freehold and offered with no onward chain, which may suit buyers seeking a quick move. Overall the house will suit growing families, those needing flexible accommodation, or buyers looking to add value through updating and reconfiguration.

Property Details

Brochure Descriptions

Image Descriptions

Floorplan Description

Rooms

Textual Property Features

Target Audience

AI Tags

Detected Visual Features

EPC Details

Nearby Schools

Nearest Bars And Restaurants

,,,,}

Nearest General Shops

,,}

Nearest Grocery shops

,,}

Nearest Supermarkets

,,}

Nearest Religious buildings

,,}

Nearest Medical buildings

,,,}

Nearest Leisure Facilities

,,,,}

Nearest Tourist attractions

,,}

Nearest Train stations

,,,,}

Nearest Bus stations and stops

,,,,}

Nearest Hotels

,,}

Tags

Local Market Stats

AirBnB Data

Similar Properties

Meta

High Res Images

Compatible Images

Low res Images

Thumbnails

Raw Images

High Res Floorplan Images

Compatible Floorplan Images

Low res Floorplan Images

FloorplanImages Thumbnail

Raw Floorplan Images