Blank-canvas commercial space ideal for leisure, medical or office conversion.
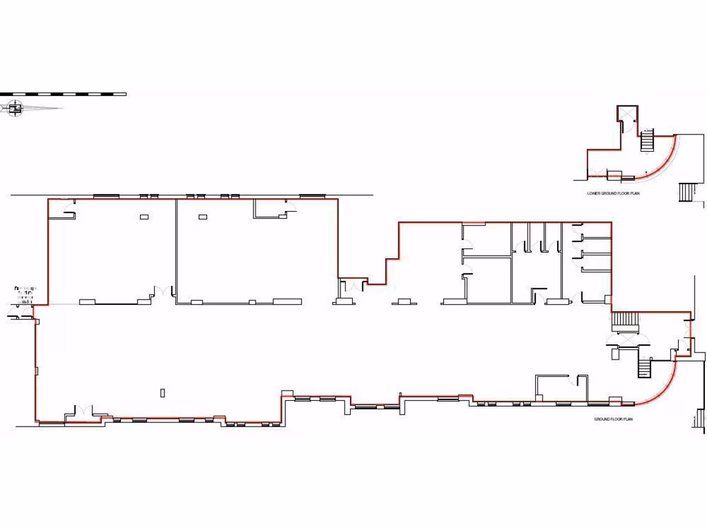
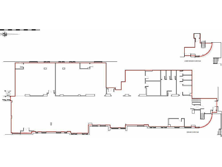
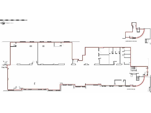
Large open-plan unit: 8,050 sq ft NIA across lower-ground, ground and first-floor reception
Stripped out and ready for tenant fit-out; extensive renovation required to trade
Suitable for Class E uses: leisure, medical, office, retail, indoor recreation
Long leasehold for sale £400,000 or new FR&I lease from £30,000 pa (subject to terms)
Rateable Value c. £39,000; purchasers/tenants must verify rates and VAT
Located between WestQuay and Town Quay; ~1 mile to Southampton Central station
Surrounded by high-density residential schemes and student population (high footfall)
Area classified as very deprived; average crime—consider security and staffing costs
This large lower-ground and ground-floor commercial unit in Southampton’s French Quarter offers a blank-canvas opportunity for a range of Class E uses. At 8,050 sq ft NIA the space is stripped out and ready for a tenant fit-out, with good natural light from its modern glazed frontage and two separate entrance foyers leading to an open-plan first-floor reception and partitioned rooms.
Situated between WestQuay and Town Quay, the property benefits from strong pedestrian catchment, adjacent new residential schemes, and good bus and rail connections (Southampton Central ~1 mile). It suits occupiers seeking leisure, medical, office, retail or mixed commercial uses under Class E, with local amenities and a dense nearby residential population to support customer footfall.
Practical considerations are material: the unit is leasehold, requires fitting-out/renovation, and will be offered either by way of a new full repairing and insuring lease (initial rent quoted at £30,000 pa with a later uplift to £65,000 pa subject to terms) or the long leasehold interest for £400,000. Rateable Value is shown as £39,000; purchasers/tenants should confirm business rates, VAT position and exact permitted uses with the local authority.
The area is described as a multicultural, student-heavy neighbourhood with very deprived local-area indicators and average crime levels. That brings strong local demand but also considerations for operators around security, opening hours, staffing and bespoke fit-out to meet specific trade or clinical standards. For investors or owner-operators prepared to fit the space, this is a prominent, flexible central unit with scope to create an income-producing asset or trading business.
Leisure facility for sale in 30 Carlton Place, Southampton, SO15 2DX, SO15 — £750,000 • 1 bed • 1 bath • 7405 ft²
Light industrial facility for sale in Paget Street, 1, 2 & 3 Paget Street, Southampton, Hampshire, SO14 — £2,500,000 • 1 bed • 1 bath • 22747 ft²
Office for sale in 2 James Street, Southampton, Hampshire, SO14 1PJ, SO14 — £600,000 • 1 bed • 1 bath • 3695 ft²
Office for sale in 9 Carlton Place, Southampton, Hampshire, SO15 2EA, SO15 — £325,000 • 1 bed • 1 bath • 1494 ft²
Office for sale in Seafarer House, 74 St. Annes Road, Southampton, SO19 9FF, SO19 — £800,000 • 1 bed • 1 bath • 4436 ft²
Warehouse for sale in Unit 13, Longbridge Industrial Park, Southampton, SO14 3FL, SO14 — £130,000 • 1 bed • 1 bath • 836 ft²






























