Freehold infill plot with listed conversion potential in affluent Bath fringe.
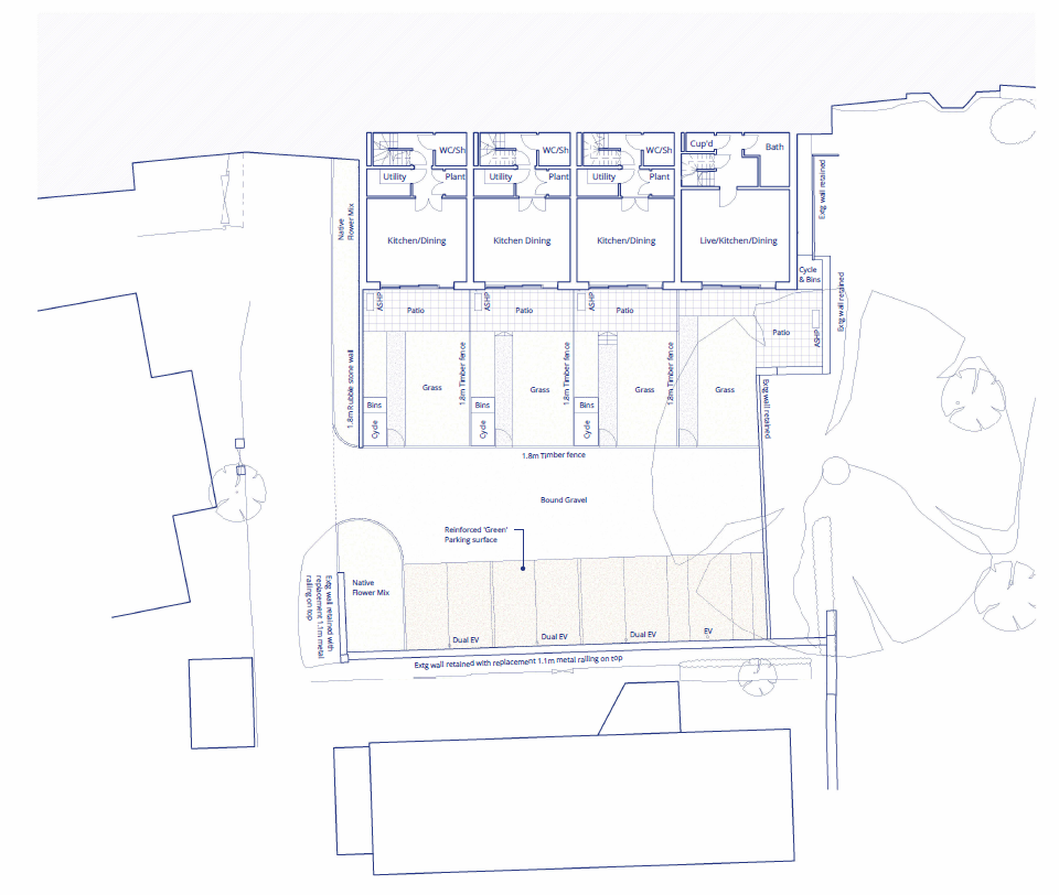
Full planning consent for four dwellings (application 23/03753/FUL)
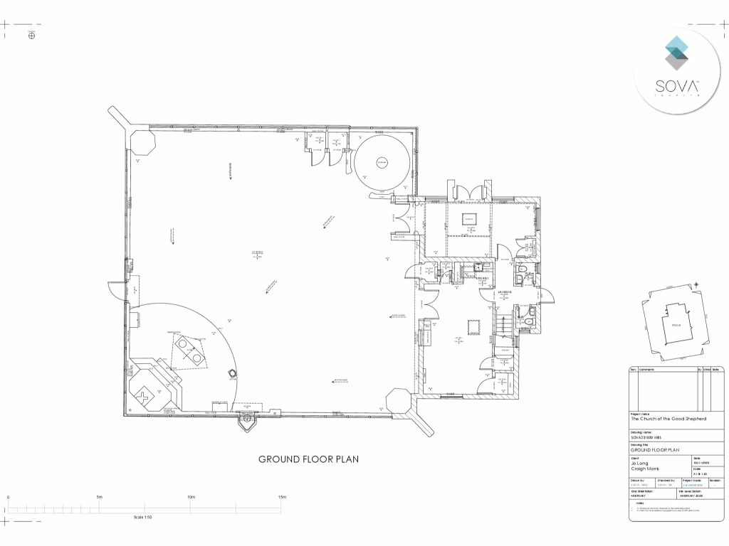
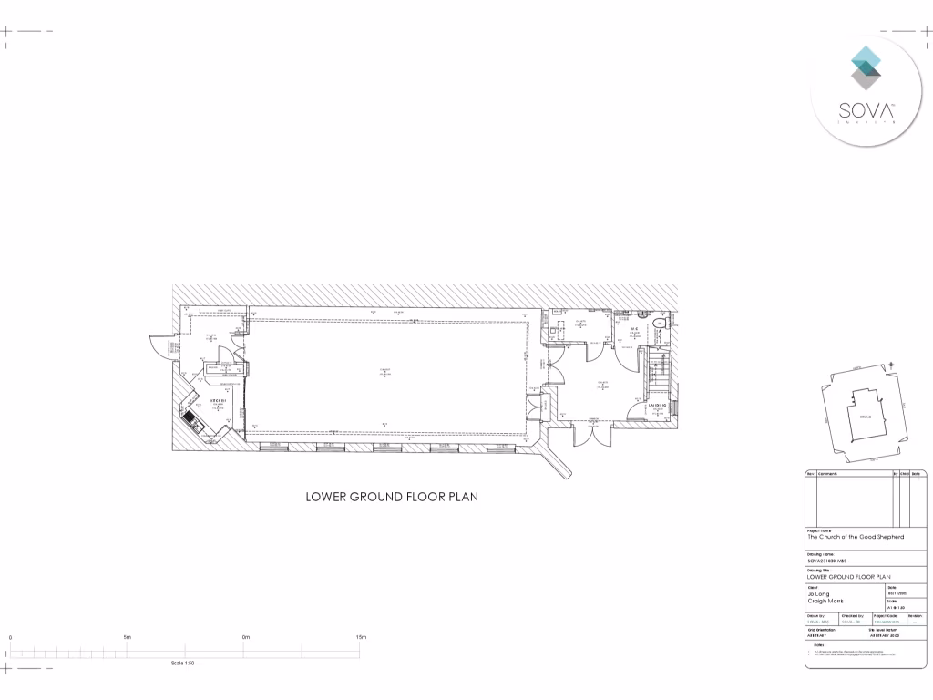
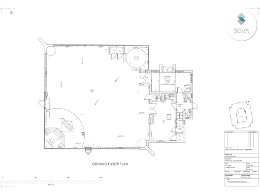
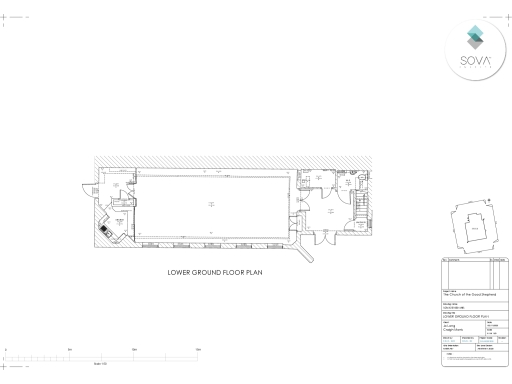
A rare infill development parcel on Brow Hill, Batheaston, offering full planning consent for four new homes alongside a Grade II listed former church currently arranged as two one‑bed apartments. The site extends to approximately 0.12 hectares (0.297 acres) and includes rear parking, private garden space and existing vehicular access via Penthouse Hill. Its location on the north‑eastern edge of Bath places it in an affluent, low‑crime area with convenient road links and local amenities.
The principal value driver is the detailed planning consent (application 23/03753/FUL) for demolition of the existing Mass Centre and erection of four dwellings with landscaping and parking, combined with conversion potential of the listed building. The freehold is offered with vacant possession and is suitable for a small housebuilder, residential investor or renovation specialist targeting the Bath market.
Buyers should note material constraints: the building is Grade II listed, which will restrict alterations and add consenting complexity and potential costs. The consented scheme requires demolition of the Mass Centre and listed‑building considerations will require specialist input. Viewings of the land are strictly by appointment and offers are being invited by informal tender.
Overall, this is a compact but substantial town‑edge redevelopment plot with planning in place, strong local demand drivers and clear delivery considerations for anyone experienced in listed‑building projects and small‑scale residential development.
Plot for sale in Old Fosse Road, Bath, BA2 — £80,000 • 1 bed • 1 bath • 6098 ft²
Plot for sale in Frome Road, Bath, BA2 — £165,000 • 1 bed • 1 bath
4 bedroom detached house for sale in Midford, Bath, BA2 — £600,000 • 4 bed • 1 bath • 1244 ft²
Land for sale in Lower Chatley Lakes, Lower Chatley Farm, Bath, BA2 — £1,000,000 • 1 bed • 1 bath
Land for sale in Siston Common, Bristol, Gloucestershire, BS30 — £1,200,000 • 1 bed • 1 bath • 15500 ft²
Garage for sale in 5 Garages | Planning Granted | BA2 — £95,000 • 3 bed • 3 bath


















































