Ready-permitted plot for five homes close to station and countryside.
- Planning permission granted for five dwellings (ref: 17/05695/FUL)
- CIL paid and initial works have commenced
- Freehold plot within walking distance of station and town centre
- Close to open countryside and long-distance walking routes
- Revised access and drainage arrangements detailed on planning portal
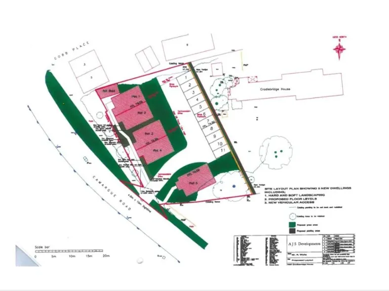
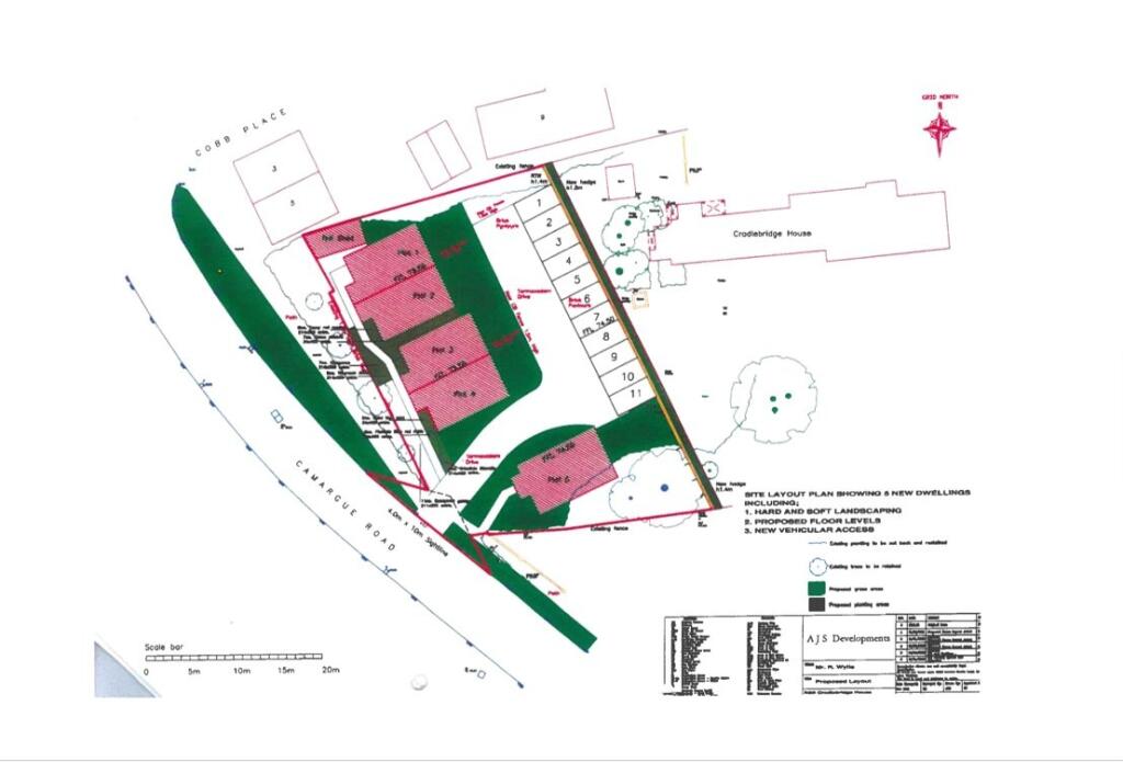
- Small plot size; scheme creates a compact cul-de-sac
- Purchaser responsible for completing remaining groundworks and conditions
- Mixed nearby school Ofsted outcomes; check suitability for family buyers
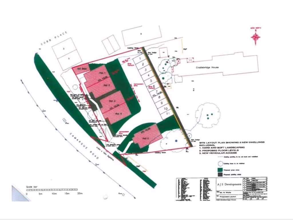
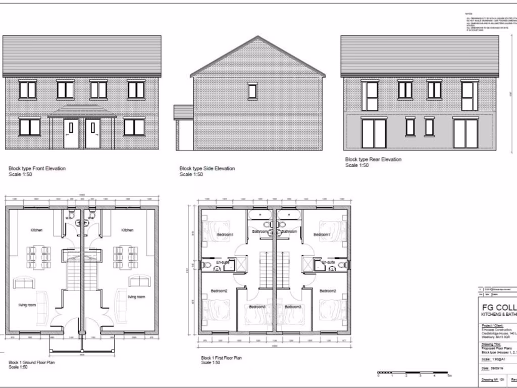
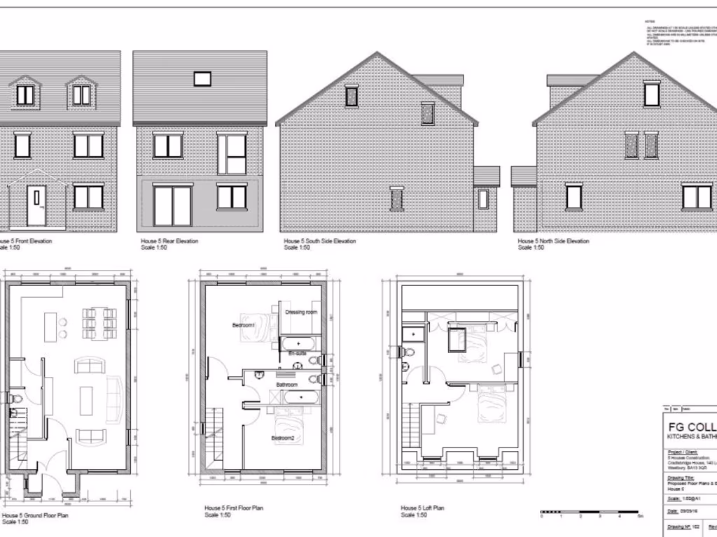
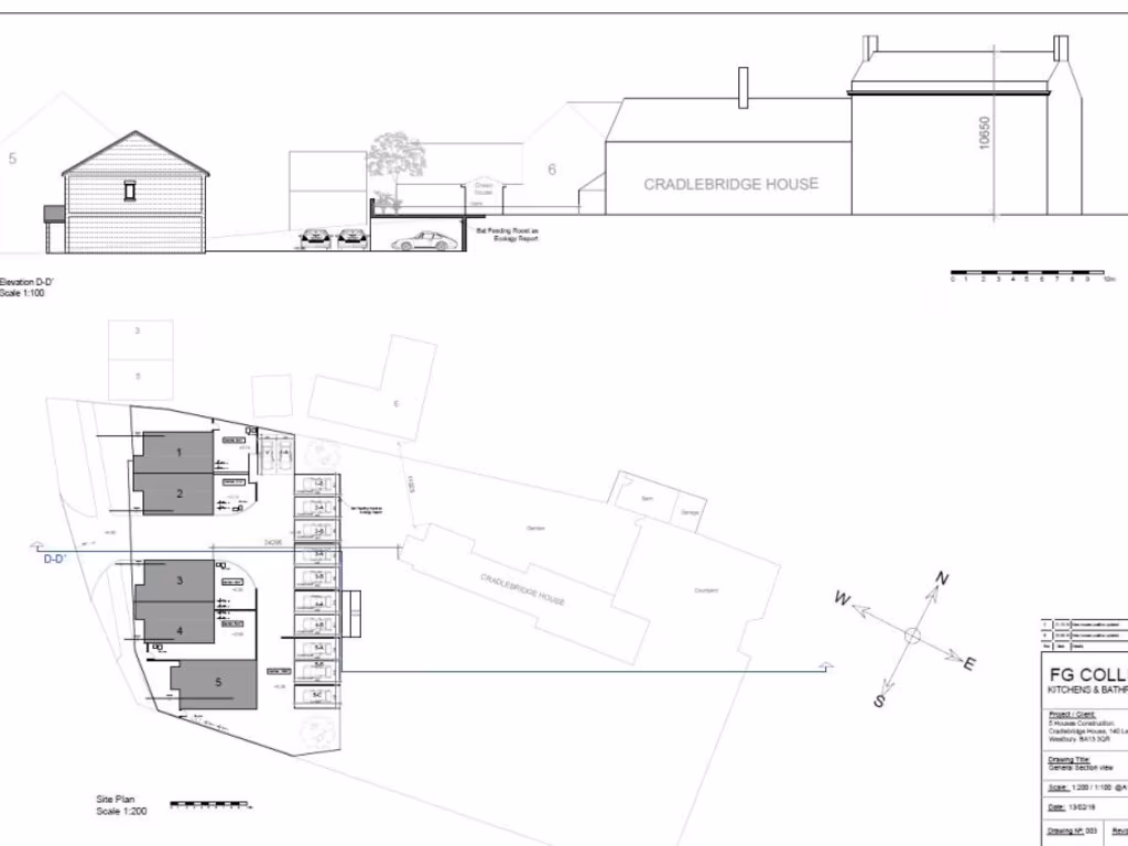
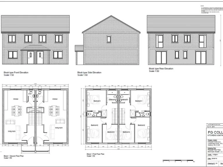
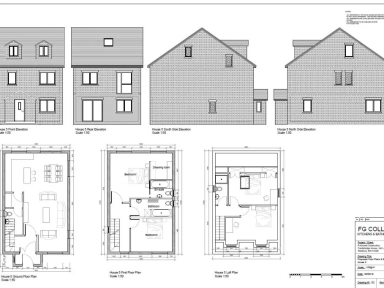
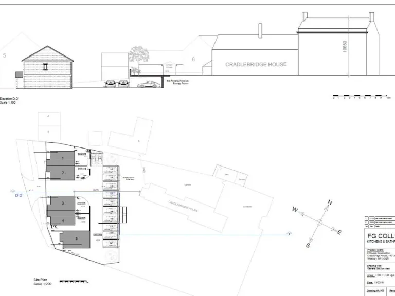
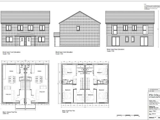
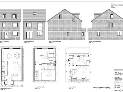
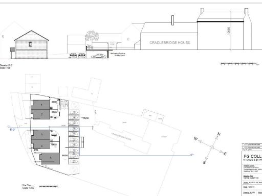
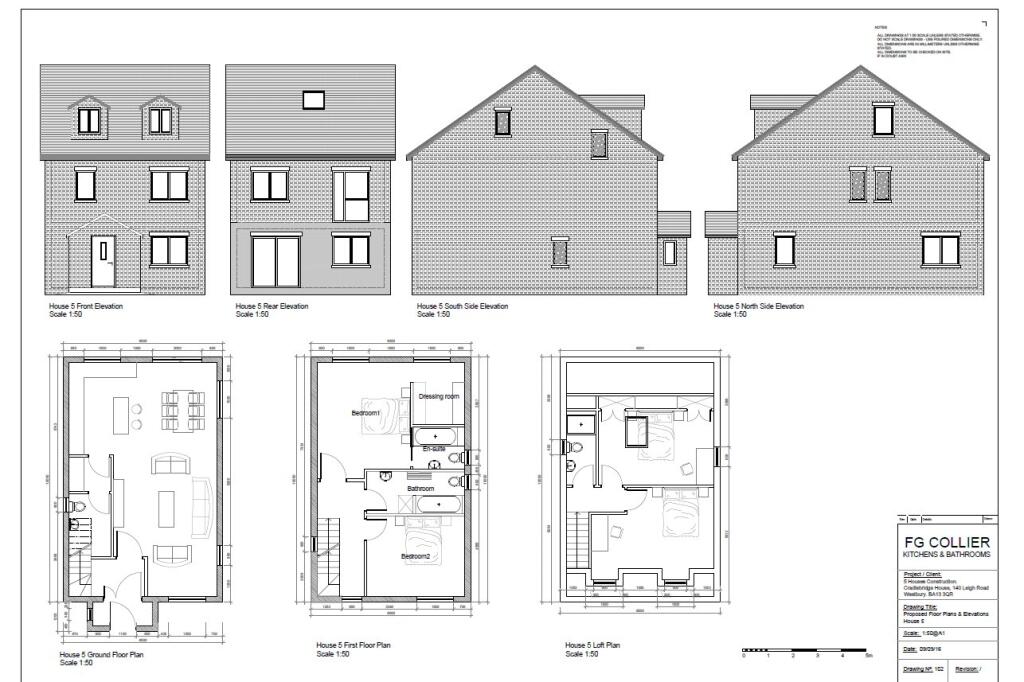
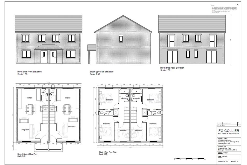
A rare development parcel on the outskirts of Westbury with planning permission granted (ref: 17/05695/FUL) for five homes — four semi-detached and one detached. CIL has been paid and initial works have commenced, so the site is primed for a developer or investor to complete the build and bring houses to market quickly. The plot sits within walking distance of the railway station and town centre yet backs onto open countryside, offering a desirable balance of connectivity and rural outlook.
The planning approval includes revised access and drainage arrangements; the eastern boundary will feature a 1.4m retaining wall and the western wall height has been reduced to 1.2m. The existing septic tank serving a neighbouring property will be removed and foul and surface water will connect to existing manholes at Cobb Place — details are available on Wiltshire Council’s planning portal. The plot is freehold and benefits from no identified flood risk and fast broadband provision.
This is best suited to a small developer, investor or experienced self-builder seeking a compact cul-de-sac scheme with immediate planning security. The town provides good local schools (mixed Ofsted outcomes), supermarkets, leisure facilities and direct rail links to Bath and London, supporting strong rental or sales demand. Note the plot is small and in a non-estate position, and purchasers should satisfy themselves regarding site-level groundworks, detailed costs to implement the approved scheme and any further planning conditions before completion.
Plot for sale in Development at Courtleigh, With full planning, Westbury Leigh, BA13 — £495,000 • 1 bed • 1 bath
Commercial development for sale in Land at Brick Hill Farm, Warminster, BA12 8PF, BA12 — £750,000 • 1 bed • 1 bath
Plot for sale in Development Land, Heron Rise, Westbury, BA13 — £350,000 • 1 bed • 1 bath • 1380 ft²
Land for sale in Penrose Cottage Development , BA13 — £800,000 • 1 bed • 1 bath • 2863 ft²
Plot for sale in Plots with planning behind Lion & Fiddle, Trowbridge Road, Hilperton, Trowbridge, BA14 — £275,000 • 1 bed • 1 bath • 2300 ft²
Land for sale in The Tynings, Westbury, BA13 — £95,000 • 1 bed • 1 bath










































