Chain-free first-floor flat with long lease and easy commuter links.
- Chain free, ready for immediate purchase
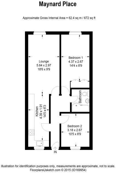
- Two double bedrooms, suitable for sharers or family
- Open-plan living area with modern fitted kitchen
- Long lease around 170 years remaining
- Service charge indicated circa £1,000 (confirm exact figure)
- Ground rent listed at £125 per year
- Average internal size ~672 sq ft, modest room proportions
- Located above shops close to Cuffley station, street-front views
Set above local shops in the heart of Cuffley, this chain-free first-floor apartment offers straightforward, commuter-friendly living. The open-plan living area and modern kitchen create a practical social hub, while two true double bedrooms suit sharers or a small family. A long lease of around 170 years and gas central heating provide ownership security and low immediate maintenance risk.
The building fronts a landscaped communal forecourt with parking and planted beds; windows overlook the street and frontage rather than private gardens. Service charge and ground rent are modestly listed (service charge shown as £1,000 and ground rent £125) — buyers should confirm exact terms and any upcoming costs. Accommodation is average in size at about 672 sq ft, so expect practical room proportions rather than generous volumes.
This flat will suit first-time buyers wanting a low-hassle home near Cuffley station, or investors targeting a steady rental market in an affluent, well-served village. The block dates from the late 1960s/early 1970s with modern double glazing fitted; there is no immediate flooding risk and council tax is described as affordable. Buyers seeking large gardens or high ceilings should look elsewhere.
2 bedroom flat for sale in Maynards Place, Cuffley, EN6 — £299,950 • 2 bed • 1 bath • 624 ft²
2 bedroom flat for sale in Bridge House, Station Road, Cuffley, EN6 — £399,950 • 2 bed • 2 bath • 583 ft²
2 bedroom flat for sale in Lambs Close, Cuffley, Potters Bar, EN6 — £275,000 • 2 bed • 1 bath • 754 ft²
2 bedroom flat for sale in Lambs Close, Cuffley, EN6 — £321,950 • 2 bed • 1 bath • 512 ft²
2 bedroom flat for sale in Tolmers Gardens, Cuffley, Potters Bar, EN6 — £525,000 • 2 bed • 2 bath • 949 ft²
2 bedroom flat for sale in Station Road, Cuffley, EN6 — £499,995 • 2 bed • 2 bath • 668 ft²






































