**Standout Features:**
- Elevation offers expansive, picturesque views.
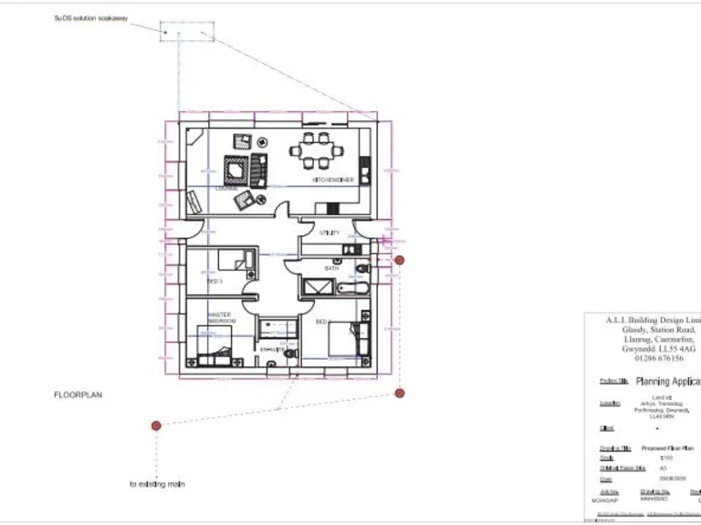
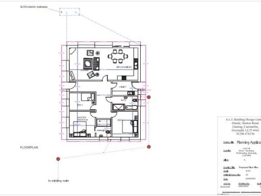
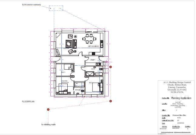
- Approved planning permission for a detached three-bedroom bungalow (reference C20/0683/44/LL).
- Services already in place and a detached garage constructed.
- Generous plot size of approximately 1/4 acre, providing ample outdoor space.
- No occupancy restrictions, allowing flexibility for personal or investment use.
Discover the potential of this prime building plot in Tremadog, Porthmadog, perfectly positioned within walking distance of the village amenities. With approved planning permission for a three-bedroom bungalow, this site invites you to create your ideal family haven surrounded by stunning rural vistas. The plot encompasses about a quarter of an acre, offering plenty of room for gardens, outdoor entertaining, or future expansions.
The already installed services and existing detached garage add significant value, reducing initial development costs. This versatile property allows for creative customization to meet your preferences or lifestyle needs. Coupled with the lack of occupancy restrictions, this plot is an exciting investment opportunity for both first-time homebuyers and investors.
Don’t miss out on your chance to secure this gem in a thriving village community, where tranquility meets convenience. Act quickly to claim your spot in this picturesque locale!
Plot for sale in Cae Gwastad, Harlech, LL46 — £95,000 • 4 bed • 2 bath • 1053 ft²
Plot for sale in Llan Ffestiniog, Blaenau Ffestiniog, LL41 — £49,950 • 1 bed • 1 bath
Plot for sale in Building plot at Chwilog, LL53 — £125,000 • 4 bed • 1 bath • 1293 ft²
Land for sale in Ffordd Manod, Blaenau Ffestiniog, Manod Road, Blaenau Ffestiniog, LL41 — £70,000 • 1 bed • 1 bath
Plot for sale in High Street, Criccieth, Gwynedd, LL52 — £249,000 • 4 bed • 3 bath • 445 ft²
Land for sale in Land Adjacent Moelwyn Motors, High Street, Blaenau Ffestiniog, LL41 — £95,000 • 1 bed • 1 bath






























