**Standout Features:**
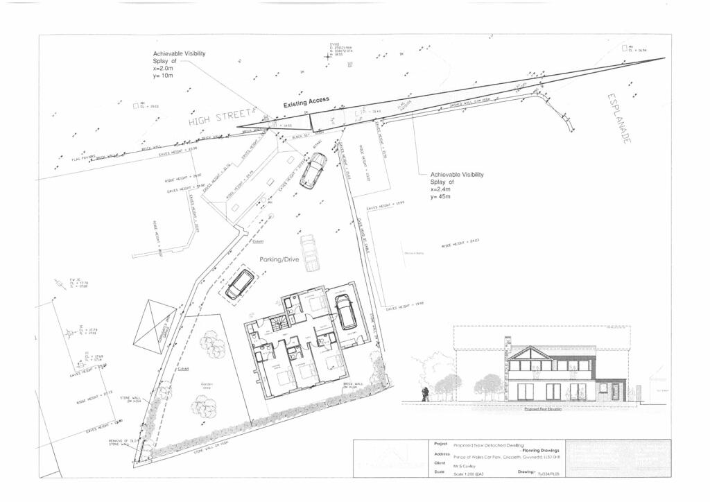
- **Location:** Approved plot with stunning sea and Criccieth Castle views.
- **Size:** Plot suitable for a modern detached house.
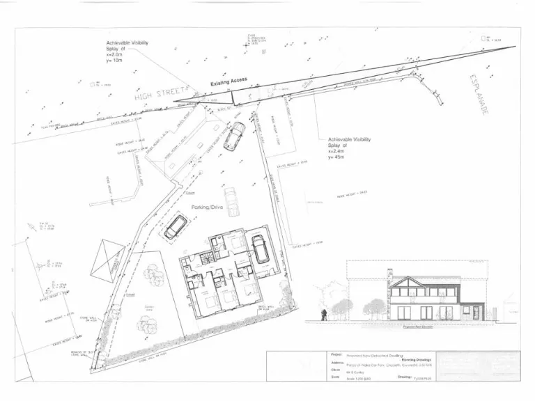
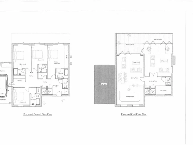
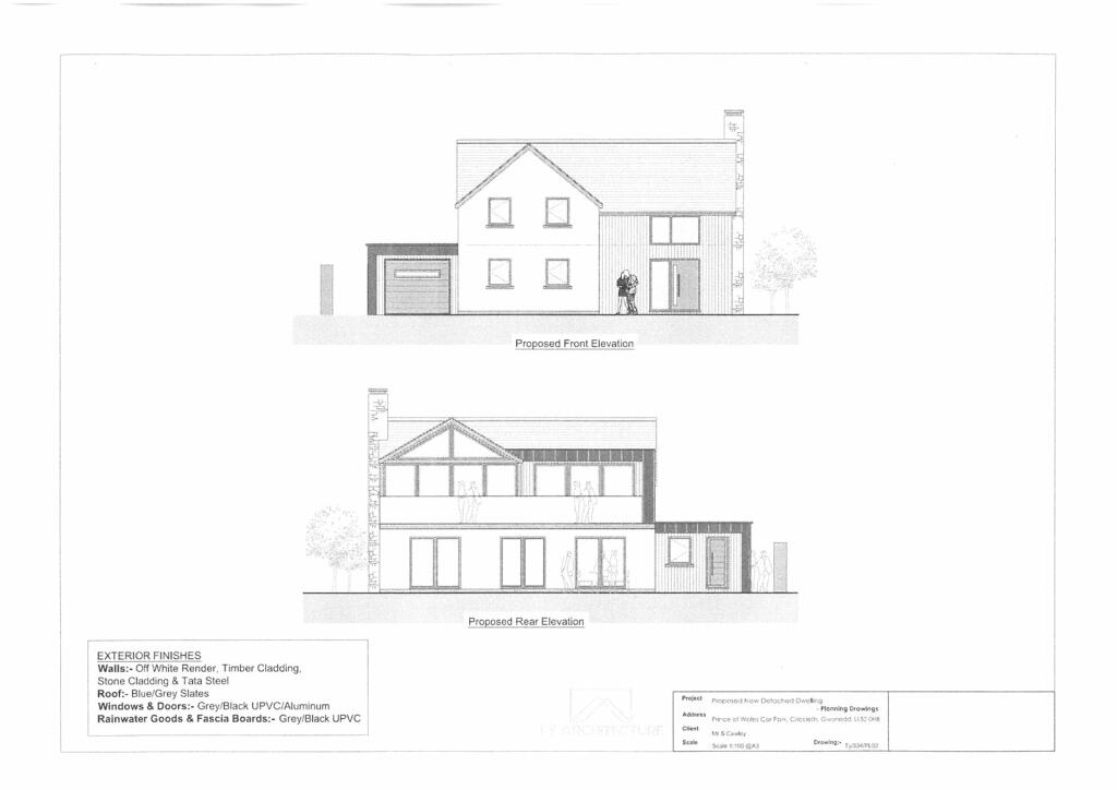
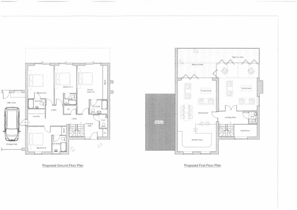
- **Potential:** Planning permission for a 4-bedroom, 3-bathroom property granted (C23/0503/35/LL).
- **Access:** Private gated entrance; parking and garden included.
- **Community:** Close to local amenities including shops, restaurants, and sandy beaches.
- **Outdoor Activities:** Proximity to coastal walks and Snowdonia National Park offers extensive recreational opportunities.
**Summary:**
Seize the rare opportunity to design your ideal home on this prime building plot in Criccieth, North Wales. With planning permission already in place for a modern, two-story detached house featuring four en-suite bedrooms and a spacious first-floor living area with a glass balcony overlooking breathtaking views of Cardigan Bay and Criccieth Castle, this site is perfect for both families and investors alike.
Strategically located within a charming seaside town, the plot is nestled in a tranquil setting just a short walk from local shops and breathtaking beaches, making it ideal for weekend getaways or year-round living. The area boasts a strong sense of community and offers a variety of outdoor activities, from beach walks to mountain biking in Snowdonia.
While the plot occupies a small size, it promises a rewarding project with excellent rental potential or personal enjoyment. However, be mindful of its location in a community classified as very deprived, which could affect future value. Don’t miss this exclusive opportunity to secure your piece of coastal paradise!
Detached house for sale in Plot At Lon Ednyfed, Criccieth, Gwynedd, LL52 — £195,000 • 1 bed • 1 bath
Land for sale in Upper Morannedd, Criccieth, Gwynedd, LL52 — £168,000 • 1 bed • 1 bath • 388 ft²
Plot for sale in Building plot at Chwilog, LL53 — £125,000 • 4 bed • 1 bath • 1293 ft²
Plot for sale in Plot @ Penlleniau, Pwllheli LL53 — £65,000 • 3 bed • 1 bath • 835 ft²
Plot for sale in Cae Gwastad, Harlech, LL46 — £95,000 • 4 bed • 2 bath • 1053 ft²
3 bedroom bungalow for sale in Upper Morannedd, Criccieth, Gwynedd, LL52 — £575,000 • 3 bed • 2 bath • 1384 ft²














































































