Turnkey short-stay opportunity near the seafront for experienced operators.
- Eight bedrooms and six bathrooms, fully furnished and rentable
A newly refurbished eight-bedroom Victorian terraced guest house arranged over multiple floors, offered fully furnished and ready to operate. High ceilings, bay windows and period features combine with modern fittings, double glazing and a new kitchen to create a turnkey short-stay proposition for an experienced operator.
The property is fitted with an automated check-in and digitised room entry system allowing remote management and self-service arrivals. A spacious communal reception and stylish dining area support guest stays; a small garden and off-street parking add practical appeal for visitors.
Projected income has been estimated at around £75,000 per year (subject to consents) — a guide only. Important sale points: this is a freehold sale via unconditional online auction and there are buyer charges (administration fee and buyer’s premium) payable on exchange. Successful bidders must pay deposits and complete in line with auction conditions.
Buyers should note material considerations: the surrounding area records very high crime and significant deprivation, appliances have not been tested, and some original granite walls are assumed uninsulated which may affect heating costs. Prospective purchasers are strongly advised to carry out full due diligence and check required consents for guest-house operation before bidding.
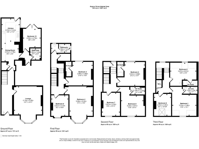
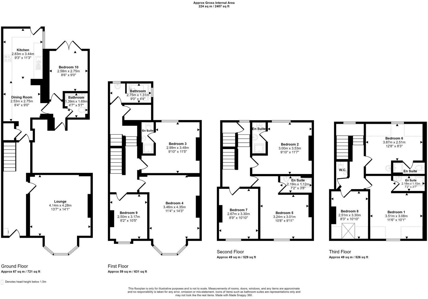
8 bedroom house for sale in 23 Deganwy Avenue, Llandudno, Conwy LL30 2YB, LL30 — £299,000 • 8 bed • 1 bath • 2407 ft²
9 bedroom town house for sale in Arvon Avenue, Llandudno, LL30 — £449,950 • 9 bed • 9 bath • 4028 ft²
10 bedroom terraced house for sale in Arvon Avenue, Llandudno, Conwy, LL30 — £399,950 • 10 bed • 10 bath • 3643 ft²
8 bedroom terraced house for sale in Deganwy Avenue, Llandudno, LL30 — £399,950 • 8 bed • 7 bath • 2266 ft²
Commercial property for sale in Deganwy Avenue, Llandudno, Conwy, LL30 — £325,000 • 9 bed • 1 bath • 2297 ft²
10 bedroom terraced house for sale in Arvon Avenue, Llandudno, Conwy, LL30 — £400,000 • 10 bed • 10 bath • 3964 ft²










































































































































