Turnkey, high-spec short-stay opportunity close to seafront and town centre.
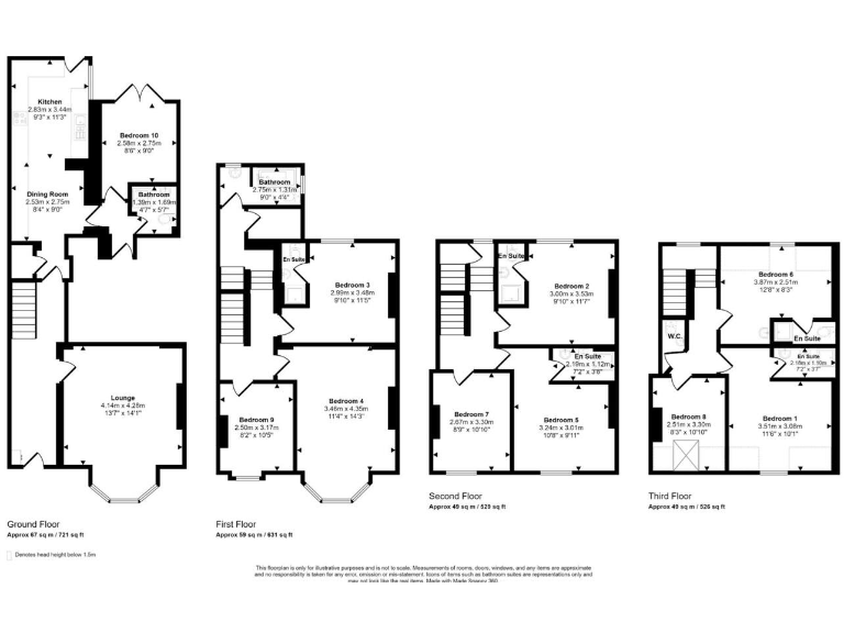
Eight bedrooms fully furnished for guest-house operation
Single bathroom for eight bedrooms — potential operational constraint
Newly renovated with modern kitchen and high-spec finishes
Automated digital check-in and coded room-entry system
Off-street parking and small garden; central seafront proximity
Sold via online unconditional auction; buyer fees apply
Area records very high crime and very high deprivation
Projected income quoted previously is indicative and not guaranteed
This eight-bedroom, fully furnished guest house in central Llandudno is presented as a newly renovated, automated operation ready for immediate turnover. The property sits close to the seafront, shops and attractions and includes off-street parking, a small garden and modern communal spaces designed for guests.
The building has been refurbished to a high standard with a new kitchen, updated reception/dining areas and a digital check‑in and room‑entry system enabling remote management. The vendors and previous marketing reference strong income potential, with professional projections (subject to consents) but this will depend on licences, management and local market conditions.
Buyers should note this lot will be sold at online unconditional auction with buyer fees and an administration premium payable on exchange. The house has eight bedrooms but only one bathroom, which is a material operational constraint for guest-house use and may require additional investment or consents to alter. The area records very high crime and high deprivation statistics — factors to assess for insurance, staffing and pricing decisions.
This lot suits an experienced operator or investor prepared to continue a short‑stay business model, manage compliance and factor immediate running costs and buyer fees into the purchase decision. Conduct full due diligence (legal pack, checks on licences and local planning) before bidding.
8 bedroom terraced house for sale in Deganwy Avenue, Llandudno, LL30 — £275,000 • 8 bed • 6 bath • 2407 ft²
9 bedroom town house for sale in Arvon Avenue, Llandudno, LL30 — £449,950 • 9 bed • 9 bath • 4028 ft²
10 bedroom terraced house for sale in Arvon Avenue, Llandudno, Conwy, LL30 — £399,950 • 10 bed • 10 bath • 3643 ft²
15 bedroom hotel for sale in Oak Alyn Hotel, 2-4 Deganwy Avenue, Llandudno, Gwynedd, LL30 2YB, LL30 — £380,000 • 15 bed • 1 bath • 420 ft²
14 bedroom guest house for sale in South Parade, Llandudno, LL30 — £650,000 • 14 bed • 13 bath • 3522 ft²
8 bedroom terraced house for sale in Deganwy Avenue, Llandudno, LL30 — £399,950 • 8 bed • 7 bath • 2266 ft²






























































































