**Standout Features:**
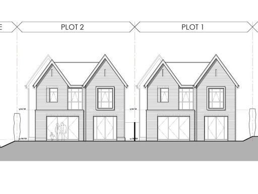
- Approved planning permission for 2 detached houses (2,475 sq ft each).
- Plentiful garden space on a 0.27-acre plot.
- Modern design with approved layouts for open-plan living.
- Gated driveway for enhanced security.
- Located in an affluent area with low crime rates and excellent amenities.
**Potential Concerns:**
- Requires an initial investment of £800,000.
- Development subject to approved planning conditions.
- Only one property currently built on the site.
Discover a unique residential development opportunity nestled in the heart of Tytherington, Macclesfield. This substantial plot of 0.27 acres comes with approved planning permission to construct two modern, detached houses, each offering 2,475 square feet of living space. Envision a spacious, open-plan kitchen and living area, complemented by a master suite with a dressing area, ensuring a luxurious lifestyle in a highly desirable area.
With excellent broadband speeds and a secure, gated entrance, this property is perfect for developers or self-build enthusiasts looking to capitalize on the affluent community. The westerly-facing garden provides ideal outdoor space for family gatherings and relaxation. Local amenities are at your doorstep, including quality schools, parks, and convenience shops, creating an ideal environment for family living. Don’t miss this rare opportunity—planning permission current until 2025 allows for flexibility and creativity in your building vision! Secure your investment in a thriving area with continued potential for growth.
Land for sale in Holmes Chapel Road, Middlewich, CW10 — £200,000 • 1 bed • 1 bath • 7435 ft²
Land for sale in Springfields, Prestbury, SK10 — £895,000 • 1 bed • 1 bath • 2700 ft²
Commercial development for sale in Drive, Manchester, Greater Manchester, M32 — £150,000 • 1 bed • 1 bath
Residential development for sale in The Former Old Rectory Hotel, Meadow Lane, M34 — £300,000 • 1 bed • 1 bath
Land for sale in Woolley Bridge, Hadfield, SK13 — £725,000 • 1 bed • 1 bath • 679 ft²
Plot for sale in Albion Road, Newtown, Newmill, SK22 — £180,000 • 1 bed • 1 bath • 3681 ft²


































