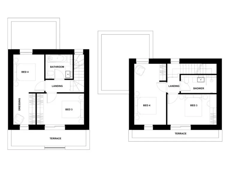
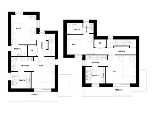
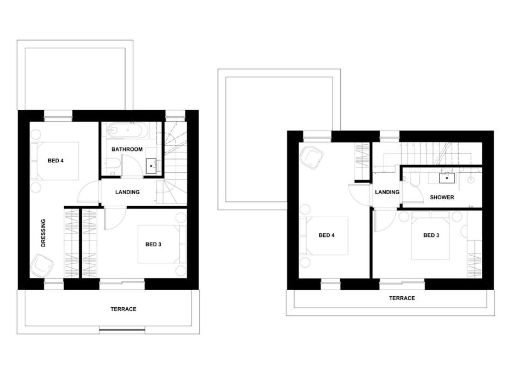
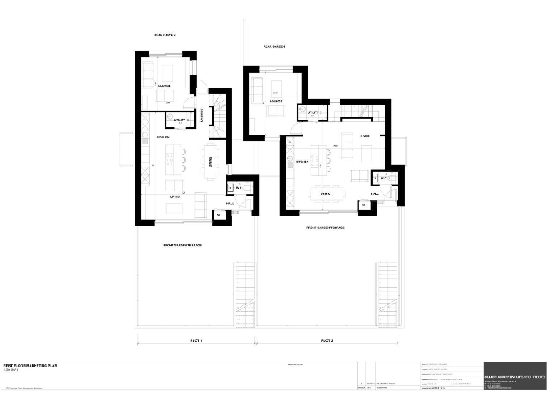
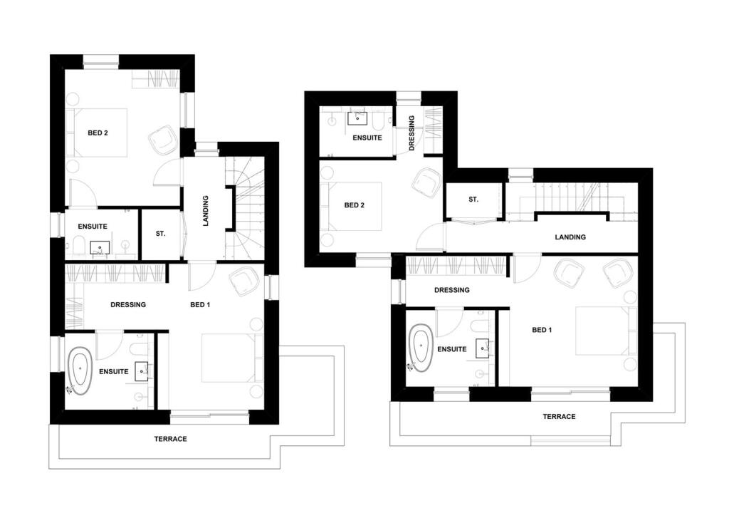
**Standout Features:**
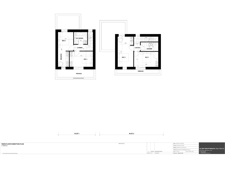
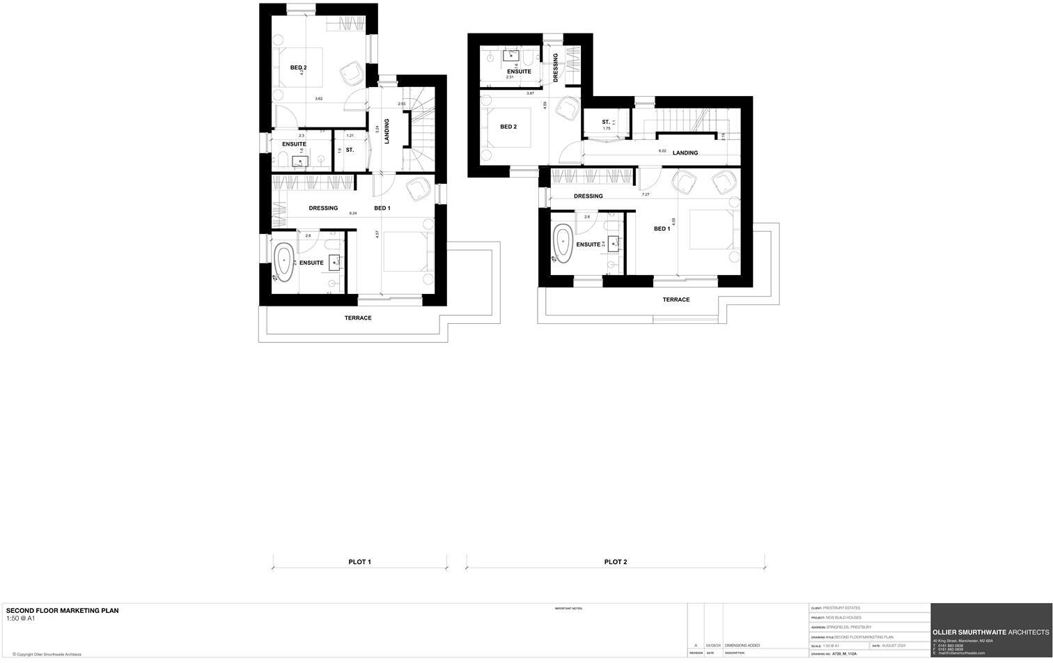
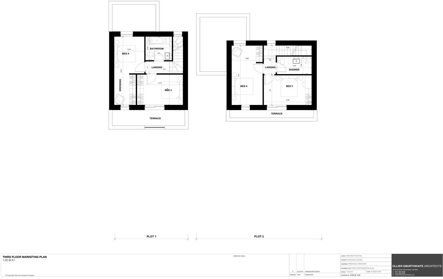
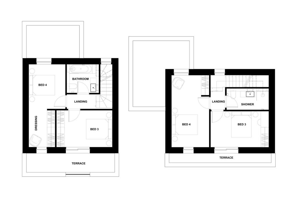
- Development opportunity for two modern 2700 sq ft detached houses
- Planning permission granted (ref: 23/1056M)
- Located in the affluent village of Prestbury
- Large, generously sized gardens and a double garage
- Low crime rate and fast broadband connectivity
- Close proximity to reputable schools and local amenities
**Summary:**
Seize this unique opportunity to develop two contemporary homes in the tranquil, picturesque village of Prestbury. With planning permission already in place for stylish 2700 sq ft detached houses, this freehold land provides a blank canvas for your vision. Each property will feature spacious, open-plan layouts enhanced by ample natural light and modern architectural designs. The generous gardens ensure plenty of outdoor space, perfect for family activities or entertaining.
Prestbury offers an idyllic, affluent lifestyle with low crime rates and a strong community feel. Enjoy the convenience of nearby shops, restaurants, and reputable schools such as Prestbury CofE Primary School and The King's School in Macclesfield. This coveted location promises both comfort and exclusivity. Don't miss out on this rare development chance—properties like this are in high demand and won't last long!
5 bedroom detached house for sale in Private Lane Off Prestbury Road, Over Alderley, Cheshire, SK10 — £1,000,000 • 5 bed • 4 bath • 4265 ft²
5 bedroom detached house for sale in PLOT Collar House Drive, Prestbury, SK10 — £2,575,000 • 5 bed • 1 bath • 9000 ft²
Plot for sale in PLOT Collar House Drive, Prestbury, SK10 — £2,575,000 • 5 bed • 1 bath • 9000 ft²
5 bedroom detached house for sale in Prestbury Road, Wilmslow, Cheshire, SK9 — £1,595,000 • 5 bed • 4 bath • 603 ft²
Residential development for sale in Manchester Road, Macclesfield, SK10 — £800,000 • 1 bed • 1 bath • 2475 ft²
6 bedroom detached house for sale in Butley Hall House, Scott Road, Prestbury, SK10 — £2,575,000 • 6 bed • 4 bath • 4500 ft²






































