**Standout Features:**
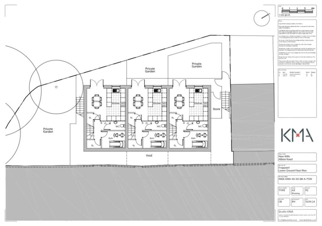
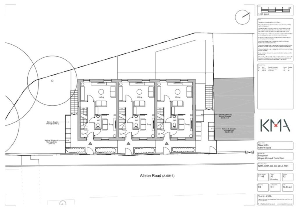
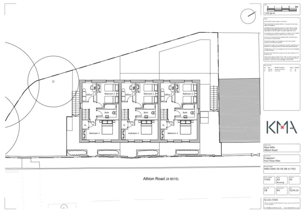
- Full planning permission granted for 3 contemporary three-storey townhouses
- Generous plot size: approximately 395 sqm (4,252 sq ft)
- Prime residential location in a high-demand area
- Significant potential for return on investment (ROI)
- Chain-free and freehold tenure
- Close proximity to several well-rated schools
**Summary:**
Seize this exceptional development opportunity with full planning permission for three modern, architect-designed townhouses in a sought-after residential area of New Mills. Set on a generous plot of approximately 395 square meters, this prime location is poised for excellent returns, appealing to both family living and high-quality rental markets. Each proposed townhouse will feature spacious living areas, multiple bathrooms, and private gardens, creating a desirable lifestyle for future residents.
While the site currently only consists of land, investors can capitalize on the growing demand for contemporary housing in this affluent and community-centered neighborhood. With top-rated schools nearby and a fast broadband connection, this property promises comfort and connectivity for future homeowners. Act quickly—interest in this promising plot is expected to be high, and opportunities like this don’t stay on the market for long!
Land for sale in Land at 210 Albion Road, New Mills, High Peak SK22 3JR, SK22 — £140,000 • 1 bed • 1 bath • 1227 ft²
Land for sale in Woolley Bridge, Hadfield, SK13 — £725,000 • 1 bed • 1 bath • 679 ft²
Land for sale in High Street, New Mills, SK22 — £100,000 • 1 bed • 1 bath • 4941 ft²
Land for sale in Victoria Mill, Woodside Street, New Mills, High Peak, SK22 — £650,000 • 1 bed • 1 bath
Commercial development for sale in Land South Of Hollin Cross Lane, Glossop, Derbyshire , SK13 — POA • 1 bed • 1 bath
Residential development for sale in Manchester Road, Macclesfield, SK10 — £800,000 • 1 bed • 1 bath • 2475 ft²






















































