**Standout Features:**
- Private plot in highly sought-after Cookham village
- Planning consent for a new detached family home (2,500 sqft) approved (Ref. 24/01540/FULL)
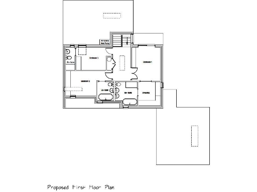
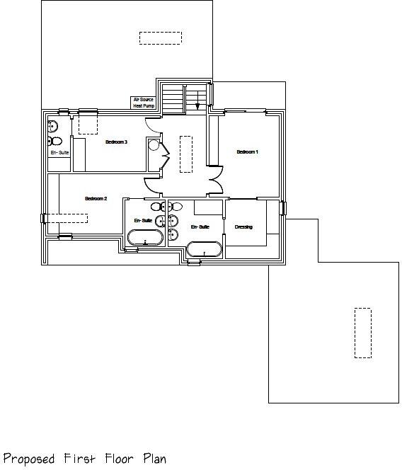
- Unique design: Four bedrooms, all with en-suites; open-plan living areas including kitchen, family room, lounge, and study
- Large double garage; potential for beautiful outdoor living space
- Excellent low-crime area with strong community vibes
- Proximity to scenic walking routes along the Thames, local schools, and amenities
**Overview:**
This exceptional building plot in Cookham presents an incredible opportunity for those looking to create their dream home in an affluent village setting. With planning permission already granted for a contemporary detached dwelling, this plot allows for a spacious design accommodating four bedrooms, each featuring an en-suite, along with inviting communal spaces perfect for family life. The total estimated area of 2,500 sqft offers ample flexibility for personalization and future expansion.
While the property comes with its locality features, such as lower road traffic and close-knit community atmosphere, the area’s charm is further enhanced by its proximity to excellent schools and outdoor leisure activities. For commuters, Cookham station is within walking distance, offering a quick route into London.
Don’t miss this rare chance to invest in a plot that not only promises a luxurious living space but also a lifestyle surrounded by natural beauty and vibrant community engagement. Act now to seize this property opportunity before it goes off the market!
Equestrian facility for sale in Watersplash Lane, Warfield, Bracknell, Berkshire, RG42 — £1,500,000 • 4 bed • 3 bath • 2500 ft²
4 bedroom detached house for sale in Coleshill Lane, Winchmore Hill, Amersham, Buckinghamshire, HP7 — £995,000 • 4 bed • 2 bath • 2350 ft²
Plot for sale in Boundary Road, Taplow, Maidenhead, SL6 — £600,000 • 4 bed • 3 bath • 2024 ft²
Plot for sale in Chorleywood Road, RICKMANSWORTH, WD3 — £480,000 • 4 bed • 1 bath • 2196 ft²
3 bedroom detached house for sale in Cromwell Gardens, Marlow, Buckinghamshire, SL7 — £1,050,000 • 3 bed • 2 bath • 2700 ft²
Plot for sale in Lincoln Hatch Lane, Burnham, Slough, SL1 — £580,000 • 4 bed • 2 bath • 2000 ft²










































