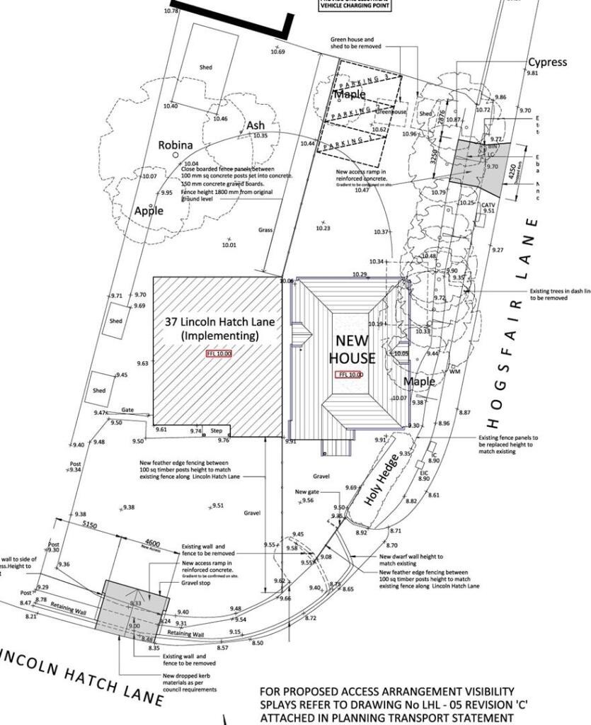
**Standout Features:**
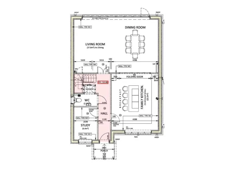
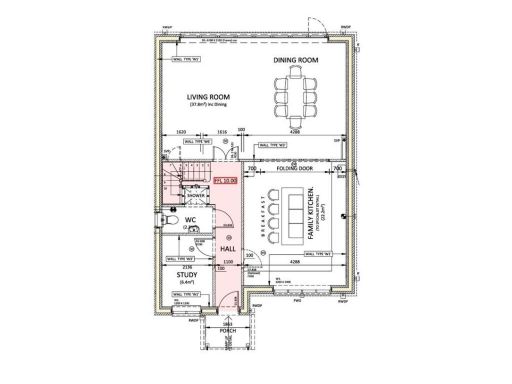
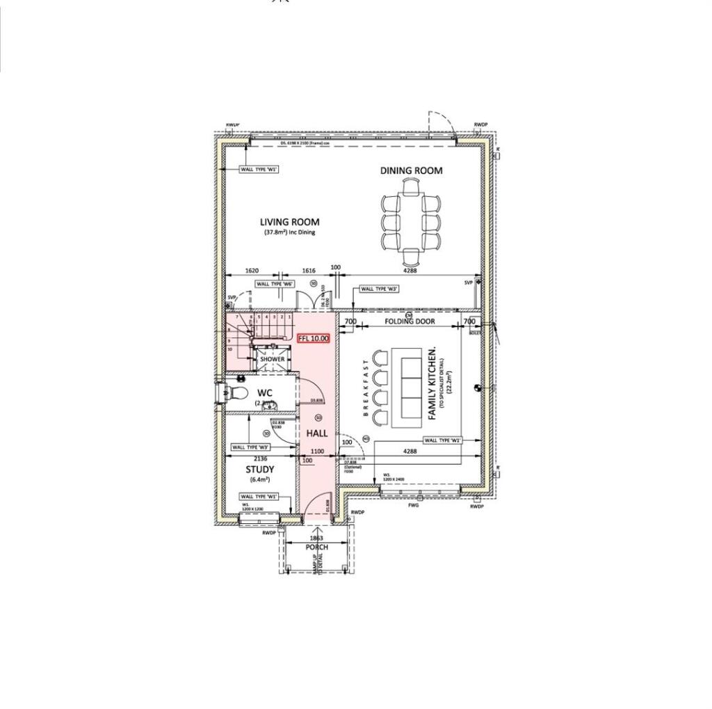
- Freehold plot with planning permission for a 4/5 bedroom detached house.
- Spacious potential of over 2,000 sq. ft. across two levels.
- Off-street parking available; decent plot size.
- Located in a quiet residential area of Burnham Village.
- Walking distance to local High Street and sought-after Burnham Grammar School.
- Strong community with high-quality schools nearby.
**Concerns:**
- Current structure includes an existing wooden garage that will need to be demolished.
- High crime rates in the area may be a consideration for families.
**Summary:**
Seize the opportunity to create your dream home with this freehold plot in affluent Burnham Village! With planning permission already granted for a spacious 4/5 bedroom detached house, you can design your ideal living space tailored to modern family needs. The property spans over 2,000 sq. ft. and includes off-street parking, situated on a generous site with the potential for outdoor lounging and family activities.
Enjoy the benefits of a tranquil suburban lifestyle with easy access to local amenities and top-rated schools, including the highly regarded Burnham Grammar School, all within walking distance. While the existing wooden garage awaits demolition, the potential for a custom-built residence in this desirable area makes this a unique investment. Act quickly—properties like this don’t stay on the market for long!
4 bedroom detached house for sale in Cheveley Gardens, Burnham, Slough, SL1 — £865,000 • 4 bed • 2 bath • 1755 ft²
Land for sale in Hawthorn Lane, Farnham Common, Slough, SL2 — £2,200,000 • 1 bed • 1 bath
4 bedroom detached house for sale in Huntercombe Lane North, Burnham, SL1 — £715,000 • 4 bed • 2 bath • 1980 ft²
Plot for sale in Boundary Road, Taplow, Maidenhead, SL6 — £600,000 • 4 bed • 3 bath • 2024 ft²
3 bedroom terraced house for sale in The Pound, Burnham, SL1 — £475,000 • 3 bed • 2 bath • 898 ft²
5 bedroom detached house for sale in Britwell Road, Burnham, Buckinghamshire, SL1 — £1,350,000 • 5 bed • 3 bath • 3100 ft²














































