**Standout Features:**
- Circa 0.21-acre plot with existing three-bedroom home.
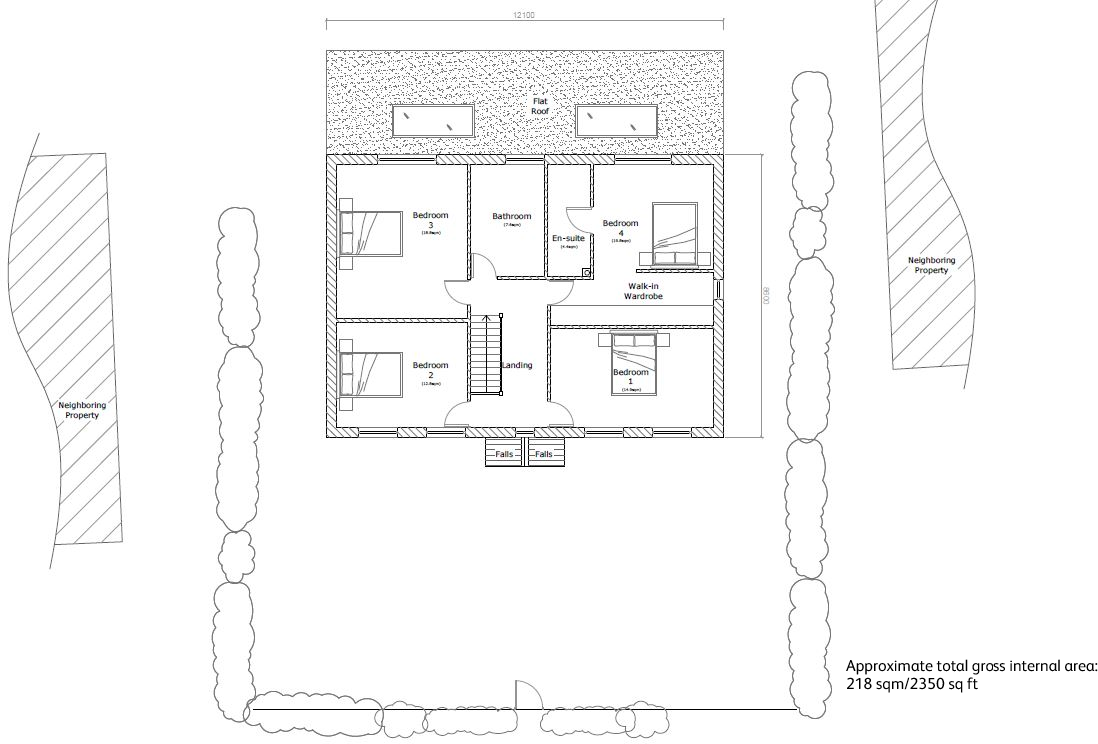
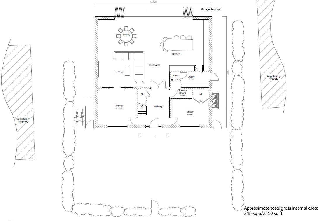
- Planning permission granted for a modern four-bedroom home.
- Large 105ft south-facing garden—ideal for families.
- 2350 sq ft of potential living space in the new build.
- Located in the picturesque village of Winchmore Hill with a low crime rate.
- Close to reputable schools, including outstanding grammar options.
**Concise Property Summary:**
This unique property opportunity in the sought-after village of Winchmore Hill is perfect for those looking to create their dream home. Set on a spacious plot of approximately 0.21 acres, the existing three-bedroom house offers functional living space, including a cozy lounge, conservatory-style reception, and two double bedrooms. However, it currently carries an EPC rating of E and may require updates.
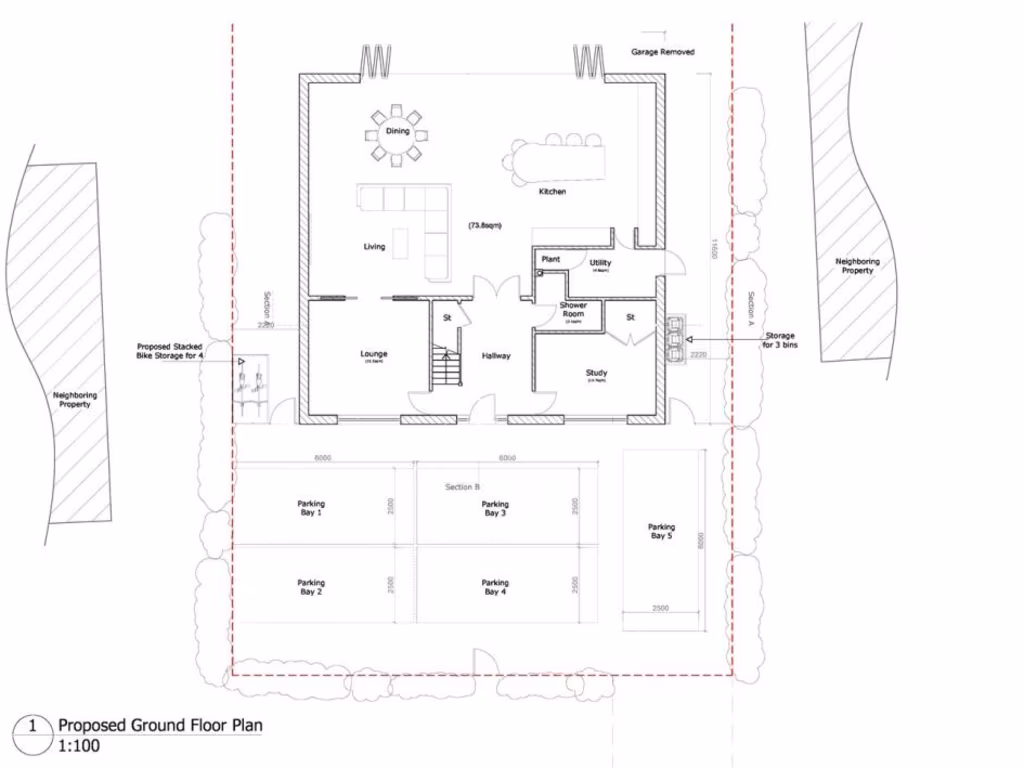
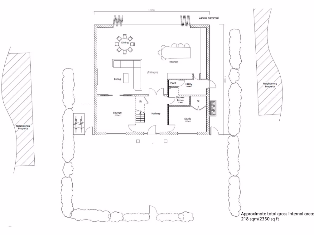
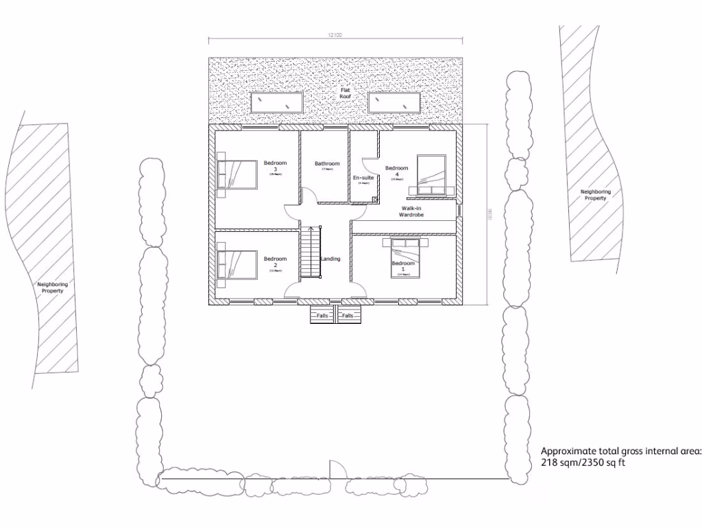
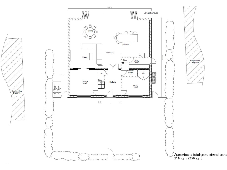
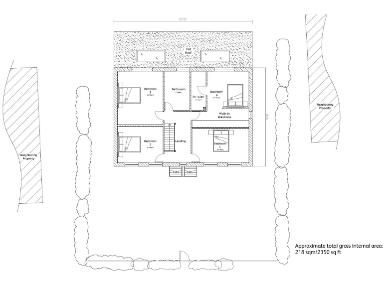
What truly sets this property apart is the granted planning permission for a stunning new-build four-bedroom home with an expansive layout of about 2350 sq ft. Imagine designing a contemporary living space that includes an open-plan kitchen/family room, three bath/shower rooms, and a study, all set against a backdrop of mature hedging in a large garden—perfect for family gatherings or quiet retreats.
Enjoy the tranquility of village life while being conveniently located just 3-4 miles from Beaconsfield and Amersham, with easy access to local amenities and direct rail services into London. This property embodies potential, comfort, and exclusivity, making it a great investment for families or first-time buyers looking to step into a vibrant community with top-rated schools and a welcoming atmosphere. Don't miss out on this rare chance to shape a bright future in a picturesque setting!
Plot for sale in Village Road, Coleshill, Amersham, Buckinghamshire, HP7 — £1,500,000 • 1 bed • 1 bath • 333 ft²
Plot for sale in Kestrel Drive, Hazlemere, High Wycombe, Buckinghamshire, HP15 — £695,000 • 1 bed • 1 bath
3 bedroom house for sale in The Common, Amersham, HP7 — £1,395,000 • 3 bed • 2 bath • 2266 ft²
Village house for sale in Manor Road, Penn, Buckinghamshire, HP10 — £1,100,000 • 1 bed • 1 bath • 5000 ft²
4 bedroom detached house for sale in Whielden Lane, Winchmore Hill, Amersham, Buckinghamshire, HP7 — £1,195,000 • 4 bed • 2 bath • 2479 ft²
5 bedroom detached house for sale in Bicester Road, Long Crendon, Aylesbury, Buckinghamshire, HP18 — £1,250,000 • 5 bed • 5 bath • 4000 ft²


































