**Standout Features:**
- Unique opportunity with planning permission for a high-end 4-bedroom detached home
- Large plot size approaching half an acre in a serene Berkshire village
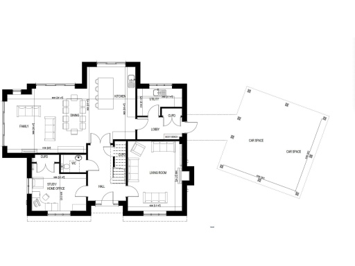
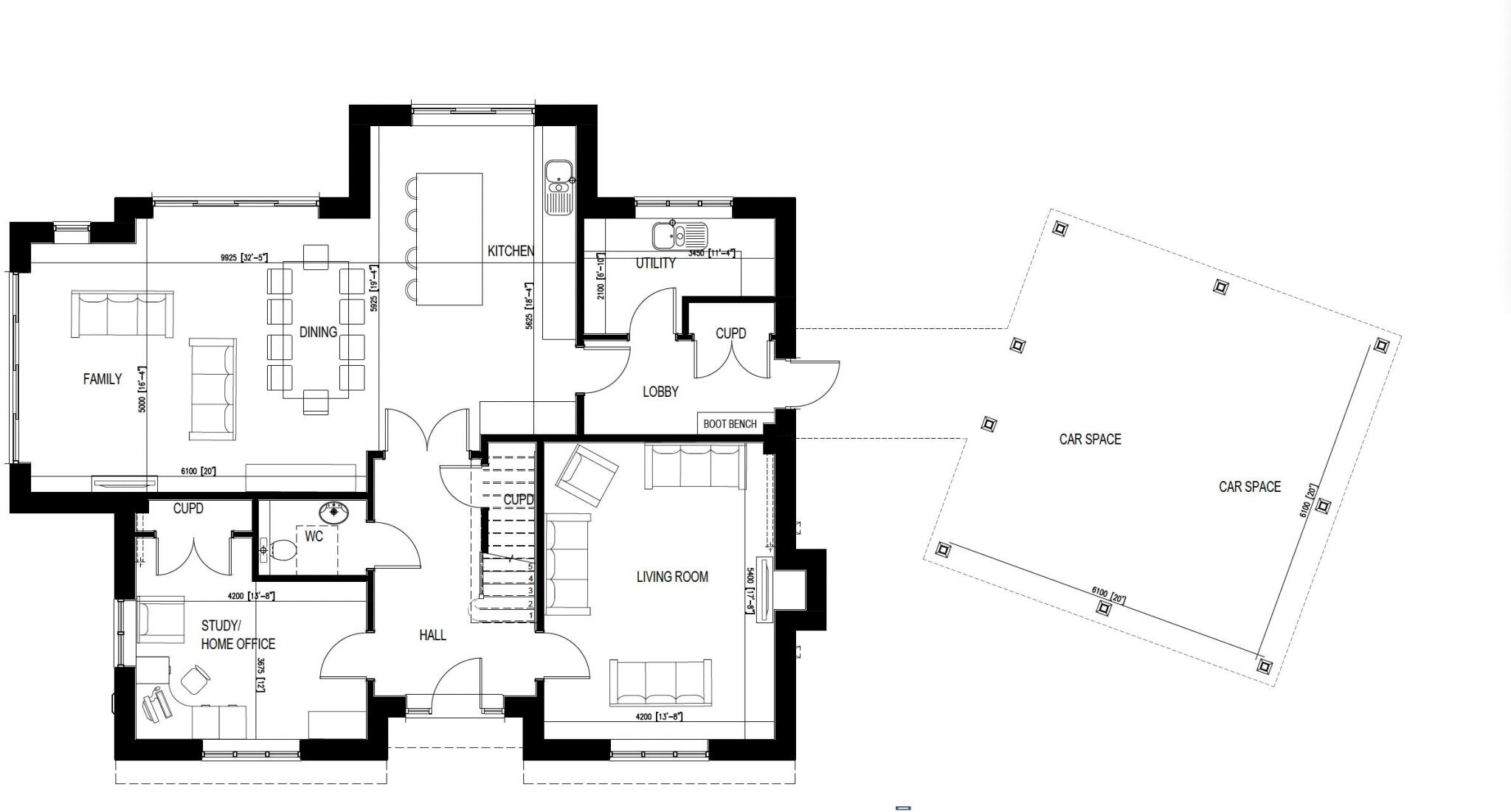
- Spacious layout of 2,500 sq ft featuring a kitchen/diner/family room, utility, study, and double garage
- Option to customize the kitchen, bathrooms, and more
- Very low crime rate and a safe, affluent community
- Excellent mobile signal and average broadband speeds
- Nearby top-rated schools ensure quality education for families
Nestled in the peaceful countryside of Berkshire, this exciting new build opportunity offers an ideal canvas for those seeking to create a bespoke family home. With full planning permission secured for a luxurious four-bedroom property, you have the flexibility to design your perfect living space. The expansive home spans approximately 2,500 square feet and boasts not only comfort and style but also a south-facing garden that promises tranquility and privacy.
Conveniently located close to top-rated schools, charming local shops, and abundant outdoor amenities, this property is perfect for families looking to enjoy a rural lifestyle without sacrificing accessibility. Imagine fulfilling your vision of a dream home with the added incentive of saving £66,000 in Stamp Duty!
Don't miss out on this rare opportunity to build your exclusive sanctuary in one of Berkshire's most desirable areas. Embrace the chance to elevate your way of life in this prosperous countryside setting – it won't be available for long!
4 bedroom detached house for sale in Forest Road, Hayley Green, Warfield, RG42 — £1,750,000 • 4 bed • 4 bath • 3093 ft²
Land for sale in Brimpton Road, Brimpton, Reading, RG7 — £295,000 • 4 bed • 2 bath
5 bedroom detached house for sale in Park Wall Lane, Lower Basildon, Reading, Berkshire, RG8 — £1,500,000 • 5 bed • 3 bath • 2454 ft²
4 bedroom detached house for sale in Heathlands Road, Wokingham, Berkshire, RG40 — £1,495,000 • 4 bed • 3 bath • 2169 ft²
4 bedroom detached house for sale in Locks Ride, Ascot, SL5 — £1,250,000 • 4 bed • 2 bath • 2403 ft²
Plot for sale in Yeomans Lane, Burghclere, Newbury RG20 9BL, RG20 — £500,000 • 1 bed • 1 bath • 3500 ft²














