Large multi-storey unit with parking and refrigeration for food businesses.
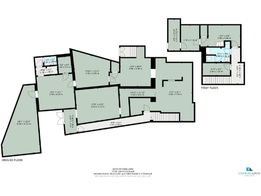
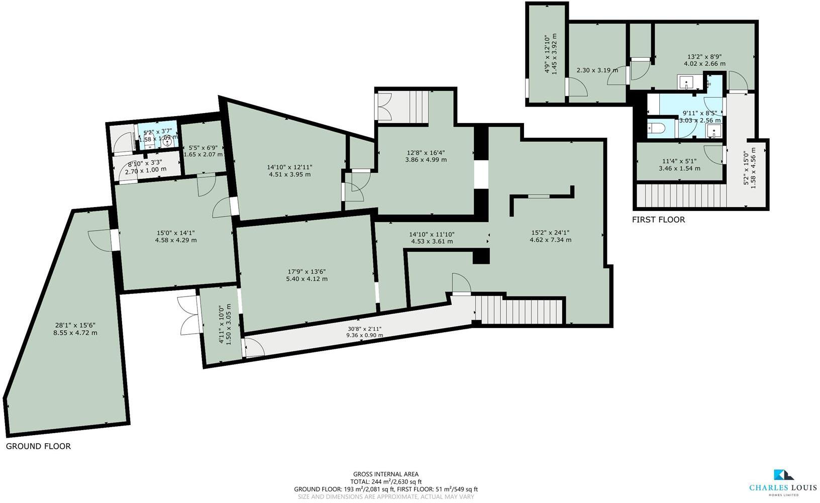
Freehold commercial unit, approximately 2,630 sq ft
A large, well-presented freehold commercial unit in Bacup, arranged over multiple floors with a useful basement store. At roughly 2,630 sq ft the layout combines several private offices with open operational space, a fitted staff kitchen, bathroom facilities and professionally installed refrigeration — ideal for food storage, catering or distribution operations that need cold-chain infrastructure from day one.
Practical features include off-street parking, fast broadband and excellent mobile signal, supporting both customer-facing activity and back-office use. The property is in good condition and ready for immediate occupation, reducing initial downtime for an incoming business or tenant.
Buyers should note the location sits in a largely deprived, blue-collar terrace area. Local indicators show average crime levels and mixed school performance nearby, which may affect staff recruitment and long-term footfall. The multi-storey layout and existing fit-out are strengths but could require accessibility upgrades or targeted marketing to secure higher-value tenants.
Offered freehold at an accessible price point, this unit suits owner-operators in the food sector, occupiers needing cold storage, or investors seeking a versatile asset with clear scope to increase income through re-letting, refurbishment, or reconfiguration.
 Distribution warehouse for sale in Unit 2 Vale Mill, North Street, Whitworth, OL12 8RE, OL12 — £325,000 • 1 bed • 1 bath • 4581 ft²
 Distribution warehouse for sale in Unit 2 Vale Mill, North Street, Whitworth, OL12 8RE, OL12 — £325,000 • 1 bed • 1 bath • 4581 ft² Distribution warehouse for sale in Unit E, The Pavilions, Bridgefold Road, Rochdale, OL11 5BX, OL11 — £450,000 • 1 bed • 1 bath • 3605 ft²
 Distribution warehouse for sale in Unit E, The Pavilions, Bridgefold Road, Rochdale, OL11 5BX, OL11 — £450,000 • 1 bed • 1 bath • 3605 ft² Distribution warehouse for sale in Stockton Street, Littleborough, Rochdale, OL15 8YJ, OL15 — POA • 1 bed • 1 bath • 462 ft²
 Distribution warehouse for sale in Stockton Street, Littleborough, Rochdale, OL15 8YJ, OL15 — POA • 1 bed • 1 bath • 462 ft² 2 bedroom terraced house for sale in Holme Street, Bacup, OL13 — £110,000 • 2 bed • 1 bath • 700 ft²
 2 bedroom terraced house for sale in Holme Street, Bacup, OL13 — £110,000 • 2 bed • 1 bath • 700 ft² Mixed use property for sale in Large Investment Property - 7 Units - Bacup [OL13 0AH], OL13 — £394,995 • 1 bed • 1 bath • 3600 ft²
 Mixed use property for sale in Large Investment Property - 7 Units - Bacup [OL13 0AH], OL13 — £394,995 • 1 bed • 1 bath • 3600 ft² Commercial development for sale in Toll Bar Business Centre, Newchurch Road, Stacksteads, Rossendale, OL13 0NA, OL13 — POA • 1 bed • 1 bath
 Commercial development for sale in Toll Bar Business Centre, Newchurch Road, Stacksteads, Rossendale, OL13 0NA, OL13 — POA • 1 bed • 1 bath






















































































































