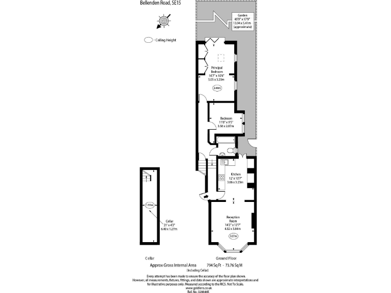
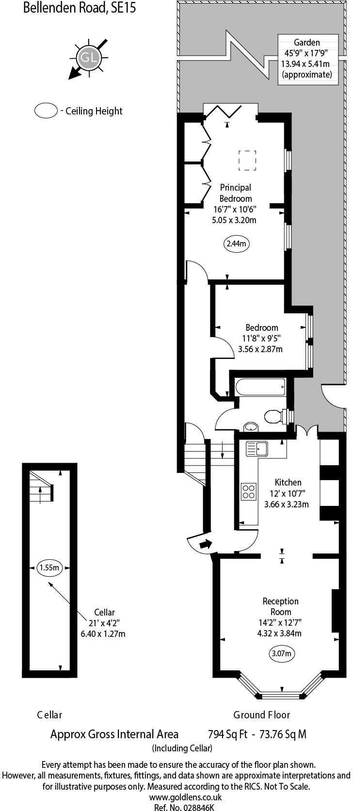
Characterful two-bedroom garden flat with a rare 50ft private garden and long lease..
Victorian period features: high ceilings, ornate cornicing, bay window
Generous private garden — approx. 50ft, direct access from bedroom
Two double bedrooms; one extended with garden doors
Long 995-year share of freehold lease, low council tax band C
Cellar provides additional storage space
EPC D; likely solid brick walls with no insulation
Single bathroom only; some modernisation may be required
Service charge: ad hoc (no fixed service charge information)
A bright, characterful two-bedroom garden flat on Bellenden Road, offering generous ceiling heights and original period detail. Stripped wooden floors, ornate cornicing and a Victorian bay create an immediate sense of space and personality, ideal for buyers who value character and outdoor private space.
The open-plan kitchen and living area faces the front garden and leads directly to an impressive circa 50ft private garden — a rare London asset for entertaining, children or pets. Both bedrooms are doubles; the rear bedroom benefits from large doors opening onto the garden, strengthening indoor–outdoor flow. A useful cellar adds practical storage.
Practical credentials include a very long 995-year share of freehold lease, mains gas central heating, and fast broadband availability. Local transport is strong with East Dulwich and Peckham Rye stations within easy reach, plus a wide range of independent shops, cafes and good primary and secondary schools nearby.
Notable drawbacks are straightforward and factual: the building’s solid brick walls likely lack cavity insulation, the EPC rating is D, and the flat has a single bathroom. Service charges are ad hoc rather than fixed. Buyers seeking a fully modernised, energy-efficient home should budget for insulation and improvement works; however, this flat presents clear potential to increase value while keeping much of its original charm.
2 bedroom flat for sale in Marsden Road, Peckham, SE15 — £799,999 • 2 bed • 1 bath • 872 ft²
2 bedroom flat for sale in Avondale Rise, London, SE15 — £625,000 • 2 bed • 1 bath • 590 ft²
2 bedroom flat for sale in Copleston Road, Peckham, SE15 — £775,000 • 2 bed • 1 bath • 715 ft²
2 bedroom flat for sale in Oxenford Street, London, SE15 — £650,000 • 2 bed • 1 bath • 683 ft²
1 bedroom apartment for sale in Gowlett Road, London, SE15 — £525,000 • 1 bed • 1 bath • 669 ft²
3 bedroom flat for sale in Oglander Road, London, SE15 — £700,000 • 3 bed • 1 bath • 830 ft²










































